






Book your tour. Save an average of $18,473. We'll handle the rest.
We collect exclusive builder offers, book your tours, and support you from start to housewarming.
- Confirmed tours
- Get matched & compare top deals
- Expert help, no pressure
- No added fees
Estimated value based on Jome data, T&C apply





- 4 bd
- 3 ba
- 2,444 sqft
2444W plan in Lakes of Cane Island by Perry Homes
Visit the community to experience this floor plan
Why tour with Jome?
- No pressure toursTour at your own pace with no sales pressure
- Expert guidanceGet insights from our home buying experts
- Exclusive accessSee homes and deals not available elsewhere
Jome is featured in
Plan description
May also be listed on the Perry Homes website
Information last verified by Jome: Yesterday at 6:27 AM (May 16, 2026)
Plan details
- Name:
- 2444W
- Property type:
- Floor plan
- Community:
- Lakes of Cane Island
- Builder:
- Perry Homes
- Collection:
- Lakes of Cane Island 45'
- Lot width (feet):
- 45
- Size:
- 2,444 sqft
- Stories:
- 2
- Beds:
- 4
- Baths:
- 3
- Garage spaces:
- 2
Plan features & finishes
- Garage/Parking:
- GarageAttached Garage
- Interior Features:
- Walk-In ClosetPantry
- Kitchen:
- Kitchen Range
- Laundry facilities:
- Utility/Laundry Room
- Property amenities:
- PatioPorch
- Rooms:
- Primary Bedroom On MainKitchenGame RoomOffice/StudyDining RoomFamily RoomOpen Concept FloorplanPrimary Bedroom Downstairs
- Upgrade Options:
- Game RoomAlternate Primary BathShower in Primary BathMedia RoomSliding DoorsFireplace

Get a consultation with our New Homes Expert
- See how your home builds wealth
- Plan your home-buying roadmap
- Discover hidden gems
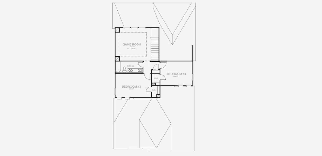
See the full plan layout
Download the floor plan PDF with room dimensions and home design details.

Instant download, no cost

Community details
Lakes of Cane Island at Cane Island
by Perry Homes, Katy, TX
- 20 homes
- 75 plans
- 1,910 - 5,573 sqft
View Lakes of Cane Island details
Want to know more about what's around here?
The 2444W floor plan is part of Lakes of Cane Island, a new home community by Perry Homes, located in Katy, TX. Visit the Lakes of Cane Island community page for full neighborhood insights, including nearby schools, shopping, walk & bike-scores, commuting, air quality & natural hazards.

Homes built from this plan
Available homes in Lakes of Cane Island
- Home at address 1064 Alpine View Ln, Katy, TX 77493

1942W
Lakes of Cane Island 45'
$449,900
- 4 bd
- 3 ba
- 1,942 sqft
1064 Alpine View Ln, Katy, TX 77493
- Home at address 1080 Alpine View Ln, Katy, TX 77493

2169W
Lakes of Cane Island 45'
$474,900
- 4 bd
- 3 ba
- 2,169 sqft
1080 Alpine View Ln, Katy, TX 77493
- Home at address 1044 Alpine View Ln, Katy, TX 77493

2169W
Lakes of Cane Island 45'
$479,900
- 4 bd
- 3 ba
- 2,169 sqft
1044 Alpine View Ln, Katy, TX 77493
- Home at address 1024 Alpine View Ln, Katy, TX 77493

2410W
Lakes of Cane Island 45'
$493,900
- 4 bd
- 3 ba
- 2,410 sqft
1024 Alpine View Ln, Katy, TX 77493
- Home at address 1048 Alpine View Ln, Katy, TX 77493

2662W
Lakes of Cane Island 45'
$499,900
- 4 bd
- 3.5 ba
- 2,662 sqft
1048 Alpine View Ln, Katy, TX 77493
- Home at address 1060 Alpine View Ln, Katy, TX 77493

2442W
Lakes of Cane Island 45'
$511,900
- 4 bd
- 3.5 ba
- 2,488 sqft
1060 Alpine View Ln, Katy, TX 77493
More floor plans in Lakes of Cane Island

Considering this plan?
Our expert will guide your tour, in-person or virtual
Need more information?
Text or call (888) 545-5198
Financials
Estimated monthly payment
Let us help you find your dream home
How many bedrooms are you looking for?

































