














Book your tour. Save an average of $18,473. We'll handle the rest.
We collect exclusive builder offers, book your tours, and support you from start to housewarming.
- Confirmed tours
- Get matched & compare top deals
- Expert help, no pressure
- No added fees
Estimated value based on Jome data, T&C apply

























- 4 bd
- 3 ba
- 2,499 sqft
Bryan plan in Anna Town Square by Windsor Homes
Visit the community to experience this floor plan
Why tour with Jome?
- No pressure toursTour at your own pace with no sales pressure
- Expert guidanceGet insights from our home buying experts
- Exclusive accessSee homes and deals not available elsewhere
Jome is featured in
Plan description
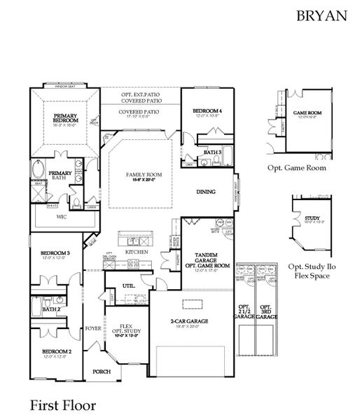
The Bryan is a beautifully designed one-story home offering 2,499 square feet of thoughtfully planned living space with 4 bedrooms, 3 baths, and a 2-car garage with tandem space for additional storage or vehicles. A classic brick and stone exterior welcomes you inside, where open living areas create a comfortable and functional layout.
The family room features a cozy corner fireplace and flows seamlessly into the island kitchen, which includes custom-built cabinetry with upper cabinets, granite countertops, tile backsplash, and a walk-in pantry. Stainless appliances include a free-standing gas range, microwave vented to the outside, and dishwasher. A dining room with a charming window seat provides a bright space for meals and gatherings.
The private owner’s suite offers a window seat and luxurious bath with garden tub, separate tile shower, quartz double vanities, and a large walk-in closet. The flex space can be customized as a home office, playroom, hobby room, or media area. Three additional bedrooms and two full baths, along with a covered porch and patio, complete this inviting home.
May also be listed on the Windsor Homes website
Information last verified by Jome: Today at 11:57 AM (March 17, 2026)
Book your tour. Save an average of $18,473. We'll handle the rest.
We collect exclusive builder offers, book your tours, and support you from start to housewarming.
- Confirmed tours
- Get matched & compare top deals
- Expert help, no pressure
- No added fees
Estimated value based on Jome data, T&C apply
Plan details
- Name:
- Bryan
- Property type:
- Floor plan
- Community:
- Anna Town Square
- Builder:
- Windsor Homes
- Size:
- 2,499 sqft
- Stories:
- 1
- Beds:
- 4
- Baths:
- 3
- Garage spaces:
- 3
Plan features & finishes
- Garage/Parking:
- Garage
- Rooms:
- Primary Bedroom On MainPrimary Bedroom Downstairs

Get a consultation with our New Homes Expert
- See how your home builds wealth
- Plan your home-buying roadmap
- Discover hidden gems

Community details
Anna Town Square
by Windsor Homes, Anna, TX
- 1 home
- 13 plans
- 1,624 - 3,382 sqft
View Anna Town Square details
Want to know more about what's around here?
The Bryan floor plan is part of Anna Town Square, a new home community by Windsor Homes, located in Anna, TX. Visit the Anna Town Square community page for full neighborhood insights, including nearby schools, shopping, walk & bike-scores, commuting, air quality & natural hazards.

Available homes in Anna Town Square
- Home at address 1608 Josiah Dr, Anna, TX 75409

Bryan
Contact for price
- 4 bd
- 3 ba
- 2,718 sqft
1608 Josiah Dr, Anna, TX 75409
More floor plans in Anna Town Square

Considering this plan?
Our expert will guide your tour, in-person or virtual
Need more information?
Text or call (888) 545-5198
Financials
Estimated monthly payment
Let us help you find your dream home
How many bedrooms are you looking for?
Similar homes nearby
Recently added communities in this area
Nearby communities in Anna
New homes in nearby cities
More New Homes in Anna, TX
- Jome
- New homes search
- Texas
- Dallas-Fort Worth Area
- Collin County
- Anna
- Anna Town Square
- 1608 Josiah Dr, Anna, TX 75409



























