







Book your tour. Save an average of $18,473. We'll handle the rest.
We collect exclusive builder offers, book your tours, and support you from start to housewarming.
- Confirmed tours
- Get matched & compare top deals
- Expert help, no pressure
- No added fees
Estimated value based on Jome data, T&C apply

























- 3 bd
- 2 ba
- 1,600 sqft
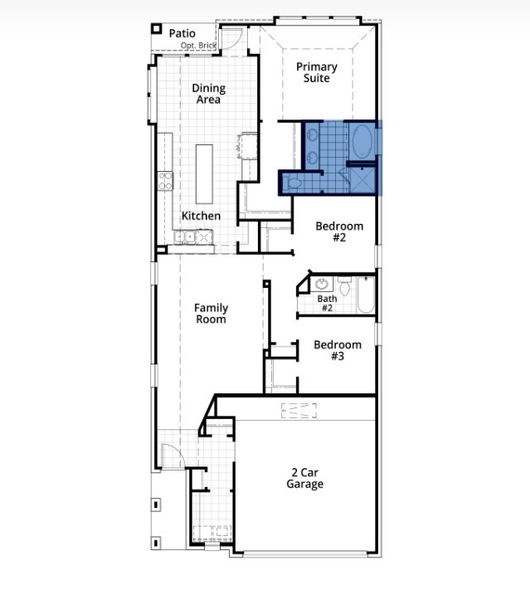
Corby plan in Grange by Highland Homes
Visit the community to experience this floor plan
Why tour with Jome?
- No pressure toursTour at your own pace with no sales pressure
- Expert guidanceGet insights from our home buying experts
- Exclusive accessSee homes and deals not available elsewhere
Jome is featured in
Plan description
May also be listed on the Highland Homes website
Information last verified by Jome: Today at 1:11 AM (April 24, 2026)
Plan details
- Name:
- Corby
- Property type:
- Floor plan
- Community:
- Grange
- Builder:
- Highland Homes
- Collection:
- Grange: 40ft. lots
- Lot width (feet):
- 40
- Size:
- 1,600 sqft
- Stories:
- 1
- Beds:
- 3
- Baths:
- 2
- Garage spaces:
- 2
Plan features & finishes
- Garage/Parking:
- GarageAttached Garage
- Interior Features:
- Walk-In ClosetPantry
- Kitchen:
- Kitchen Island
- Laundry facilities:
- Utility/Laundry Room
- Property amenities:
- Patio
- Rooms:
- Primary Bedroom On MainKitchenDining RoomFamily RoomPrimary Bedroom Downstairs
- Upgrade Options:
- Bay WindowsFreestanding TubExtended Outdoor LivingAlternate Primary BathShower in Primary BathFireplace

Get a consultation with our New Homes Expert
- See how your home builds wealth
- Plan your home-buying roadmap
- Discover hidden gems
See the full plan layout
Download the floor plan PDF with room dimensions and home design details.

Instant download, no cost

Community details
Grange at Grange
by Highland Homes, Katy, TX
- 4 homes
- 24 plans
- 1,582 - 3,979 sqft
View Grange details
Want to know more about what's around here?
The Corby floor plan is part of Grange, a new home community by Highland Homes, located in Katy, TX. Visit the Grange community page for full neighborhood insights, including nearby schools, shopping, walk & bike-scores, commuting, air quality & natural hazards.

Available homes in Grange
- Home at address 441 Soaring Sparrow Trl, Katy, TX 77493

215 Plan
Grange: 60ft. lots
$599,000
- 4 bd
- 3.5 ba
- 3,002 sqft
441 Soaring Sparrow Trl, Katy, TX 77493
- Home at address 457 Prairie Heights Dr, Katy, TX 77493

213 Plan
Grange: 60ft. lots
$599,000
- 4 bd
- 3.5 ba
- 2,862 sqft
457 Prairie Heights Dr, Katy, TX 77493
- Home at address 445 Soaring Sparrow Trl, Katy, TX 77493

218
Grange: 60ft. lots
$650,000
- 4 bd
- 4.5 ba
- 2,938 sqft
445 Soaring Sparrow Trl, Katy, TX 77493
- Home at address 429 Soaring Sparrow Trl, Katy, TX 77493

220
Grange: 60ft. lots
$675,000
- 4 bd
- 5 ba
- 3,450 sqft
429 Soaring Sparrow Trl, Katy, TX 77493
More floor plans in Grange

Considering this plan?
Our expert will guide your tour, in-person or virtual
Need more information?
Text or call (888) 545-5198
Financials
Let us help you find your dream home
How many bedrooms are you looking for?
Similar homes nearby
Recently added communities in this area
Nearby communities in Katy
New homes in nearby cities
More New Homes in Katy, TX
- Jome
- New homes search
- Texas
- Greater Houston Area
- Waller County
- Katy
- Grange
- Grange: 40ft. lots
- 433 Dove Meadow Ln, Katy, TX 77493





























