








Book your tour. Save an average of $18,473. We'll handle the rest.
We collect exclusive builder offers, book your tours, and support you from start to housewarming.
- Confirmed tours
- Get matched & compare top deals
- Expert help, no pressure
- No added fees
Estimated value based on Jome data, T&C apply



























































- 4 bd
- 4 ba
- 2,983 sqft
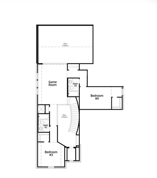
Cambridge plan in Landmark by Highland Homes
Visit the community to experience this floor plan
Why tour with Jome?
- No pressure toursTour at your own pace with no sales pressure
- Expert guidanceGet insights from our home buying experts
- Exclusive accessSee homes and deals not available elsewhere
Jome is featured in
Plan description
May also be listed on the Highland Homes website
Information last verified by Jome: Yesterday at 1:25 AM (April 18, 2026)
Plan details
- Name:
- Cambridge
- Property type:
- Floor plan
- Community:
- Landmark
- Builder:
- Highland Homes
- Size:
- 2,983 sqft
- Stories:
- 2
- Beds from:
- 4
- Beds to:
- 5
- Baths from:
- 4
- Baths to:
- 5
- Half baths to:
- 2
- Garage spaces:
- 2
Plan features & finishes
- Garage/Parking:
- GarageAttached Garage
- Interior Features:
- Walk-In ClosetPantryStorage
- Kitchen:
- Kitchen Island
- Laundry facilities:
- Utility/Laundry Room
- Property amenities:
- Outdoor LivingPatio
- Rooms:
- Primary Bedroom On MainKitchenGame RoomDining RoomFamily RoomOpen Concept FloorplanPrimary Bedroom Downstairs
- Upgrade Options:
- Bay WindowsFreestanding TubExtended Outdoor LivingPowder BathSliding Glass DoorsOptional Multi-Gen SuiteShower in Primary BathExtra BathroomPocket OfficeExtra BedroomFireplace

Get a consultation with our New Homes Expert
- See how your home builds wealth
- Plan your home-buying roadmap
- Discover hidden gems
See the full plan layout
Download the floor plan PDF with room dimensions and home design details.

Instant download, no cost

Community details
Landmark at Landmark
by Highland Homes, Denton, TX
- 10 homes
- 13 plans
- 2,083 - 3,306 sqft
View Landmark details
Want to know more about what's around here?
The Cambridge floor plan is part of Landmark, a new home community by Highland Homes, located in Denton, TX. Visit the Landmark community page for full neighborhood insights, including nearby schools, shopping, walk & bike-scores, commuting, air quality & natural hazards.

Homes built from this plan
Available homes in Landmark
- Home at address 9817 Morning Cloak Dr, Denton, TX 76207

Denton
$538,810
- 4 bd
- 3 ba
- 2,263 sqft
9817 Morning Cloak Dr, Denton, TX 76207
- Home at address 9824 Oak Glade Dr, Denton, TX 76207

Denton
$557,510
- 4 bd
- 3 ba
- 2,263 sqft
9824 Oak Glade Dr, Denton, TX 76207
- Home at address 9809 Oak Glade Dr, Denton, TX 76207

Kingston
$589,035
- 4 bd
- 3 ba
- 2,485 sqft
9809 Oak Glade Dr, Denton, TX 76207
- Home at address 9821 Morning Cloak Dr, Denton, TX 76207

Brent
$590,415
- 4 bd
- 4 ba
- 2,271 sqft
9821 Morning Cloak Dr, Denton, TX 76207
- Home at address 9820 Oak Glade Dr, Denton, TX 76207

Surrey
$604,540
- 4 bd
- 4.5 ba
- 2,573 sqft
9820 Oak Glade Dr, Denton, TX 76207
- Home at address 9905 Morning Cloak Dr, Denton, TX 76207

Layton
$635,480
- 4 bd
- 4.5 ba
- 3,306 sqft
9905 Morning Cloak Dr, Denton, TX 76207
More floor plans in Landmark

Considering this plan?
Our expert will guide your tour, in-person or virtual
Need more information?
Text or call (888) 545-5198
Financials
Estimated monthly payment
Let us help you find your dream home
How many bedrooms are you looking for?






























