







Book your tour. Save an average of $18,473. We'll handle the rest.
We collect exclusive builder offers, book your tours, and support you from start to housewarming.
- Confirmed tours
- Get matched & compare top deals
- Expert help, no pressure
- No added fees
Estimated value based on Jome data, T&C apply











- 5 bd
- 4.5 ba
- 3,798 sqft
3798W plan in Sweetgrass by Perry Homes
Visit the community to experience this floor plan
Why tour with Jome?
- No pressure toursTour at your own pace with no sales pressure
- Expert guidanceGet insights from our home buying experts
- Exclusive accessSee homes and deals not available elsewhere
Jome is featured in
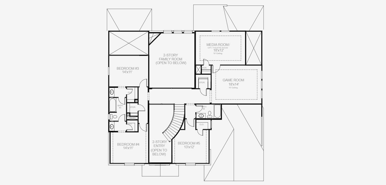
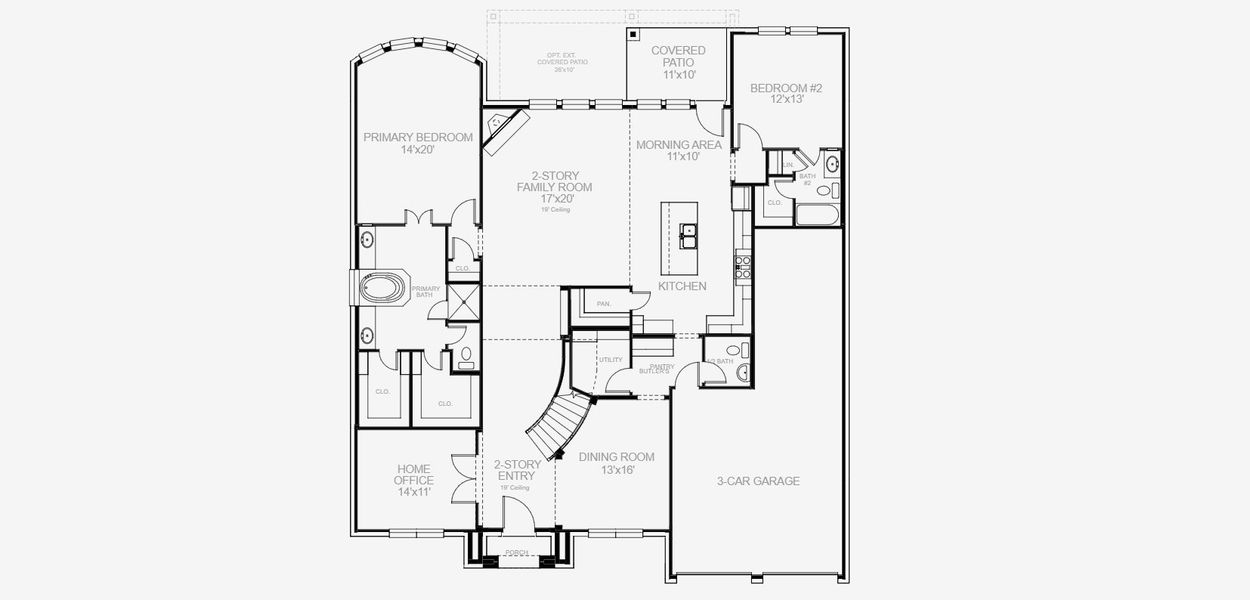
Plan description
May also be listed on the Perry Homes website
Information last verified by Jome: Yesterday at 6:11 AM (April 25, 2026)
Plan details
- Name:
- 3798W
- Property type:
- Floor plan
- Community:
- Sweetgrass
- Builder:
- Perry Homes
- Collection:
- Sweetgrass 80'
- Lot width (feet):
- 80
- Size:
- 3,798 sqft
- Stories:
- 2
- Beds:
- 5
- Baths:
- 4
- Half baths:
- 1
- Garage spaces:
- 3
Plan features & finishes
- Garage/Parking:
- GarageAttached Garage
- Interior Features:
- Walk-In ClosetPantry
- Kitchen:
- Kitchen Island
- Laundry facilities:
- Utility/Laundry Room
- Property amenities:
- Butler's PantryTwo-Story Entry FoyerPatioPorch
- Rooms:
- Primary Bedroom On MainKitchenTwo-Story Great RoomGame RoomMedia RoomOffice/StudyBreakfast AreaOpen Concept FloorplanPrimary Bedroom Downstairs
- Upgrade Options:
- Freestanding TubTheatre RoomAlternate KitchenSliding DoorsExtended Patio

Get a consultation with our New Homes Expert
- See how your home builds wealth
- Plan your home-buying roadmap
- Discover hidden gems
See the full plan layout
Download the floor plan PDF with room dimensions and home design details.

Instant download, no cost

Community details
Sweetgrass
by Perry Homes, Haslet, TX
- 25 homes
- 54 plans
- 2,169 - 4,994 sqft
View Sweetgrass details
Want to know more about what's around here?
The 3798W floor plan is part of Sweetgrass, a new home community by Perry Homes, located in Haslet, TX. Visit the Sweetgrass community page for full neighborhood insights, including nearby schools, shopping, walk & bike-scores, commuting, air quality & natural hazards.

Available homes in Sweetgrass
- Home at address 734 Red Cedar Rd, Haslet, TX 76052

3553W
Sweetgrass 50'
$649,900
- 5 bd
- 4.5 ba
- 3,553 sqft
734 Red Cedar Rd, Haslet, TX 76052
- Home at address 1274 White Pine Dr, Haslet, TX 76052

3553W
Sweetgrass 50'
$680,900
- 5 bd
- 4.5 ba
- 3,553 sqft
1274 White Pine Dr, Haslet, TX 76052
- Home at address 786 White Sage Rd, Haslet, TX 76052

3791W
Sweetgrass 80'
$849,900
- 5 bd
- 4.5 ba
- 3,791 sqft
786 White Sage Rd, Haslet, TX 76052
- Home at address 780 Headwaters Dr, Haslet, TX 76052

4336W
Sweetgrass 80'
$999,900
- 5 bd
- 5.5 ba
- 4,989 sqft
780 Headwaters Dr, Haslet, TX 76052
More floor plans in Sweetgrass

Considering this plan?
Our expert will guide your tour, in-person or virtual
Need more information?
Text or call (888) 545-5198
Financials
Estimated monthly payment
Let us help you find your dream home
How many bedrooms are you looking for?
Similar homes nearby
Recently added communities in this area
Nearby communities in Haslet
New homes in nearby cities
More New Homes in Haslet, TX
- Jome
- New homes search
- Texas
- Dallas-Fort Worth Area
- Tarrant County
- Haslet
- Sweetgrass
- Sweetgrass 80'
- 805 Blue Mound Rd E, Haslet, TX 76052





























