








Book your tour. Save an average of $18,473. We'll handle the rest.
We collect exclusive builder offers, book your tours, and support you from start to housewarming.
- Confirmed tours
- Get matched & compare top deals
- Expert help, no pressure
- No added fees
Estimated value based on Jome data, T&C apply



- 5 bd
- 4.5 ba
- 4,320 sqft
4320W plan in Legacy Prairie at Katy Court by Perry Homes
Visit the community to experience this floor plan
Why tour with Jome?
- No pressure toursTour at your own pace with no sales pressure
- Expert guidanceGet insights from our home buying experts
- Exclusive accessSee homes and deals not available elsewhere
Jome is featured in
Plan description
May also be listed on the Perry Homes website
Information last verified by Jome: Yesterday at 6:02 AM (April 21, 2026)
Plan details
- Name:
- 4320W
- Property type:
- Floor plan
- Community:
- Legacy Prairie at Katy Court
- Builder:
- Perry Homes
- Collection:
- Legacy Prairie At Katy Court 70'
- Lot width (feet):
- 70
- Size:
- 4,320 sqft
- Stories:
- 2
- Beds:
- 5
- Baths:
- 4
- Half baths:
- 1
- Garage spaces:
- 3
Plan features & finishes
- Garage/Parking:
- GarageAttached Garage
- Interior Features:
- Walk-In ClosetPantryStorage
- Kitchen:
- Kitchen Island
- Laundry facilities:
- Utility/Laundry Room
- Property amenities:
- PatioPorch
- Rooms:
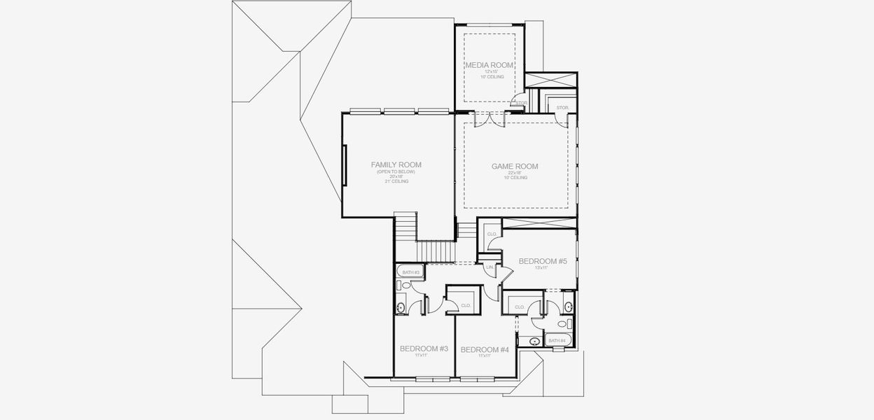
- Primary Bedroom On MainKitchenGame RoomMedia RoomOffice/StudyDining RoomFamily RoomBreakfast AreaOpen Concept FloorplanPrimary Bedroom Downstairs
- Upgrade Options:
- Freestanding TubVanity at Halt BathExtra Half BathMedia RoomSliding Doors

Get a consultation with our New Homes Expert
- See how your home builds wealth
- Plan your home-buying roadmap
- Discover hidden gems
See the full plan layout
Download the floor plan PDF with room dimensions and home design details.

Instant download, no cost

Community details
Legacy Prairie at Katy Court
by Perry Homes, Katy, TX
- 12 homes
- 30 plans
- 2,850 - 4,320 sqft
View Legacy Prairie at Katy Court details
Want to know more about what's around here?
The 4320W floor plan is part of Legacy Prairie at Katy Court, a new home community by Perry Homes, located in Katy, TX. Visit the Legacy Prairie at Katy Court community page for full neighborhood insights, including nearby schools, shopping, walk & bike-scores, commuting, air quality & natural hazards.

Available homes in Legacy Prairie at Katy Court
- Home at address 25431 Schmidt Dr, Katy, TX 77493

3546W
Legacy Prairie At Katy Court 65'
$624,900
- 5 bd
- 4.5 ba
- 3,546 sqft
25431 Schmidt Dr, Katy, TX 77493
- Home at address 25531 Hastings Dr, Katy, TX 77493

3546W
Legacy Prairie At Katy Court 65'
$710,900
- 5 bd
- 4.5 ba
- 3,546 sqft
25531 Hastings Dr, Katy, TX 77493
- Home at address 3814 Desert Willow Wy, Katy, TX 77493

4054W
Legacy Prairie At Katy Court 70'
$749,900
- 5 bd
- 4.5 ba
- 4,054 sqft
3814 Desert Willow Wy, Katy, TX 77493
- Home at address 3810 Desert Willow Wy, Katy, TX 77493

4098W
Legacy Prairie At Katy Court 70'
$749,900
- 5 bd
- 4.5 ba
- 4,098 sqft
3810 Desert Willow Wy, Katy, TX 77493
- Home at address 25626 Hughes Dr, Katy, TX 77493

3791W
Legacy Prairie At Katy Court 70'
$772,900
- 5 bd
- 4.5 ba
- 3,791 sqft
25626 Hughes Dr, Katy, TX 77493
- Home at address 25634 Hughes Dr, Katy, TX 77493

4140W
Legacy Prairie At Katy Court 70'
$774,900
- 5 bd
- 5 ba
- 4,140 sqft
25634 Hughes Dr, Katy, TX 77493
More floor plans in Legacy Prairie at Katy Court

Considering this plan?
Our expert will guide your tour, in-person or virtual
Need more information?
Text or call (888) 545-5198
Financials
Estimated monthly payment
Let us help you find your dream home
How many bedrooms are you looking for?
Similar homes nearby
Recently added communities in this area
Nearby communities in Katy
New homes in nearby cities
More New Homes in Katy, TX
- Jome
- New homes search
- Texas
- Greater Houston Area
- Harris County
- Katy
- Legacy Prairie at Katy Court
- Legacy Prairie At Katy Court 70'
- 3810 Hermitage Dr, Katy, TX 77493






























