






Book your tour. Save an average of $18,473. We'll handle the rest.
We collect exclusive builder offers, book your tours, and support you from start to housewarming.
- Confirmed tours
- Get matched & compare top deals
- Expert help, no pressure
- No added fees
Estimated value based on Jome data, T&C apply



- 5 bd
- 4.5 ba
- 3,658 sqft
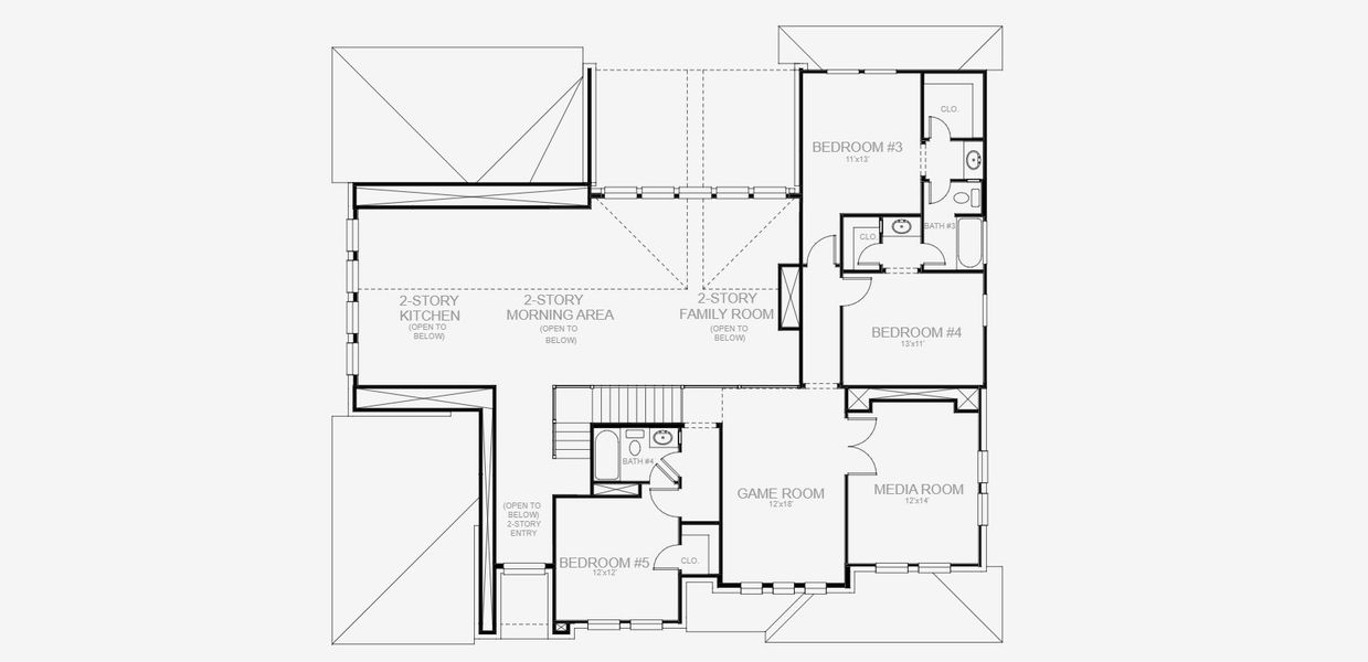
3658W plan in Jubilee by Perry Homes
Visit the community to experience this floor plan
Why tour with Jome?
- No pressure toursTour at your own pace with no sales pressure
- Expert guidanceGet insights from our home buying experts
- Exclusive accessSee homes and deals not available elsewhere
Jome is featured in
Plan description
May also be listed on the Perry Homes website
Information last verified by Jome: Yesterday at 6:11 AM (April 23, 2026)
Plan details
- Name:
- 3658W
- Property type:
- Floor plan
- Community:
- Jubilee
- Builder:
- Perry Homes
- Collection:
- Jubilee 80'
- Lot width (feet):
- 80
- Size:
- 3,658 sqft
- Stories:
- 2
- Beds:
- 5
- Baths:
- 4
- Half baths:
- 1
- Garage spaces:
- 3
Plan features & finishes
- Garage/Parking:
- GarageAttached Garage
- Interior Features:
- Walk-In ClosetPantry
- Kitchen:
- Kitchen Island
- Laundry facilities:
- Utility/Laundry Room
- Property amenities:
- Two-Story Entry FoyerPatioPorch
- Rooms:
- Primary Bedroom On MainKitchenTwo-Story Great RoomOffice/StudyDining RoomOpen Concept FloorplanPrimary Bedroom DownstairsPrimary Bedroom Upstairs
- Upgrade Options:
- Freestanding TubLaundry SinkSliding DoorsExtended Patio

Get a consultation with our New Homes Expert
- See how your home builds wealth
- Plan your home-buying roadmap
- Discover hidden gems
See the full plan layout
Download the floor plan PDF with room dimensions and home design details.

Instant download, no cost

Community details
Jubilee at Jubilee
by Perry Homes, Hockley, TX
- 9 homes
- 57 plans
- 2,737 - 5,573 sqft
View Jubilee details
Want to know more about what's around here?
The 3658W floor plan is part of Jubilee, a new home community by Perry Homes, located in Hockley, TX. Visit the Jubilee community page for full neighborhood insights, including nearby schools, shopping, walk & bike-scores, commuting, air quality & natural hazards.

Available homes in Jubilee
- Home at address 16514 Harmony Lea Ln, Hockley, TX 77447

3546W
Jubilee 60'
$599,900
- 5 bd
- 4 ba
- 3,546 sqft
16514 Harmony Lea Ln, Hockley, TX 77447
- Home at address 16518 Blissful Fields St, Hockley, TX 77447

3593W
Jubilee 60'
$624,900
- 5 bd
- 4.5 ba
- 3,794 sqft
16518 Blissful Fields St, Hockley, TX 77447
- Home at address 16518 Blissful Day Wy, Hockley, TX 77447

3800W
Jubilee 60'
$706,900
- 5 bd
- 4.5 ba
- 3,800 sqft
16518 Blissful Day Wy, Hockley, TX 77447
- Home at address 16519 Blissful Day Wy, Hockley, TX 77447

4016W
Jubilee 60'
$720,900
- 5 bd
- 4 ba
- 4,016 sqft
16519 Blissful Day Wy, Hockley, TX 77447
More floor plans in Jubilee

Considering this plan?
Our expert will guide your tour, in-person or virtual
Need more information?
Text or call (888) 545-5198
Financials
Estimated monthly payment
Let us help you find your dream home
How many bedrooms are you looking for?
Similar homes nearby
Recently added communities in this area
Nearby communities in Hockley
New homes in nearby cities
More New Homes in Hockley, TX
- Jome
- New homes search
- Texas
- Greater Houston Area
- Harris County
- Hockley
- Jubilee
- Jubilee 80'
- 26110 Happy Home St, Hockley, TX 77447






























