








Book your tour. Save an average of $18,473. We'll handle the rest.
We collect exclusive builder offers, book your tours, and support you from start to housewarming.
- Confirmed tours
- Get matched & compare top deals
- Expert help, no pressure
- No added fees
Estimated value based on Jome data, T&C apply











- 3 bd
- 2 ba
- 2,127 sqft
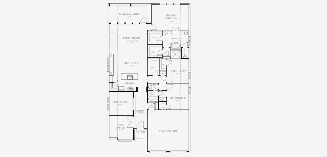
2127W plan in Briggs Ranch by Perry Homes
Visit the community to experience this floor plan
Why tour with Jome?
- No pressure toursTour at your own pace with no sales pressure
- Expert guidanceGet insights from our home buying experts
- Exclusive accessSee homes and deals not available elsewhere
Jome is featured in
Plan description
May also be listed on the Perry Homes website
Information last verified by Jome: Yesterday at 6:22 AM (April 1, 2026)
Plan details
- Name:
- 2127W
- Property type:
- Floor plan
- Community:
- Briggs Ranch
- Builder:
- Perry Homes
- Collection:
- Briggs Ranch 50'
- Lot width (feet):
- 50
- Size:
- 2,127 sqft
- Stories:
- 1
- Beds:
- 3
- Baths:
- 2
- Garage spaces:
- 2
Plan features & finishes
- Garage/Parking:
- GarageAttached Garage
- Interior Features:
- Walk-In ClosetPantry
- Kitchen:
- Kitchen Island
- Laundry facilities:
- Utility/Laundry Room
- Property amenities:
- PatioPorch
- Rooms:
- Primary Bedroom On MainKitchenEntry HallGame RoomOffice/StudyDining RoomFamily RoomPrimary Bedroom Downstairs
- Upgrade Options:
- Sliding DoorsExtra BedroomFireplace

Get a consultation with our New Homes Expert
- See how your home builds wealth
- Plan your home-buying roadmap
- Discover hidden gems
See the full plan layout
Download the floor plan PDF with room dimensions and home design details.

Instant download, no cost

Community details
Briggs Ranch at Briggs Ranch
by Perry Homes, San Antonio, TX
- 12 homes
- 33 plans
- 1,910 - 3,553 sqft
View Briggs Ranch details
Want to know more about what's around here?
The 2127W floor plan is part of Briggs Ranch, a new home community by Perry Homes, located in San Antonio, TX. Visit the Briggs Ranch community page for full neighborhood insights, including nearby schools, shopping, walk & bike-scores, commuting, air quality & natural hazards.

Homes built from this plan
Available homes in Briggs Ranch
- Home at address 13246 Hanging Willow, San Antonio, TX 78245

1942W
Briggs Ranch 45'
$449,900
- 4 bd
- 3 ba
- 1,942 sqft
13246 Hanging Willow, San Antonio, TX 78245
- Home at address 13228 Hanging Willow, San Antonio, TX 78245

1984W
Briggs Ranch 45'
$459,900
- 3 bd
- 2 ba
- 1,984 sqft
13228 Hanging Willow, San Antonio, TX 78245
- Home at address 13218 Hanging Willow, San Antonio, TX 78245

2169W
Briggs Ranch 45'
$479,900
- 4 bd
- 3 ba
- 2,169 sqft
13218 Hanging Willow, San Antonio, TX 78245
- Home at address 4108 Mountain Ash, San Antonio, TX 78245

2594W
SavingsBriggs Ranch 45'
$489,900
- 4 bd
- 3.5 ba
- 2,594 sqft
4108 Mountain Ash, San Antonio, TX 78245
- Home at address 4210 Mountain Ash, San Antonio, TX 78245

2594W
Briggs Ranch 45'
$489,900
- 4 bd
- 3.5 ba
- 2,594 sqft
4210 Mountain Ash, San Antonio, TX 78245
- Home at address 4120 Mountain Ash, San Antonio, TX 78245

2593W
Briggs Ranch 45'
$509,900
- 4 bd
- 3 ba
- 2,593 sqft
4120 Mountain Ash, San Antonio, TX 78245
More floor plans in Briggs Ranch

Considering this plan?
Our expert will guide your tour, in-person or virtual
Need more information?
Text or call (888) 545-5198
Financials
Estimated monthly payment
Let us help you find your dream home
How many bedrooms are you looking for?


































