









Book your tour. Save an average of $18,473. We'll handle the rest.
- Confirmed tours
- Get matched & compare top deals
- Expert help, no pressure
- No added fees
Estimated value based on Jome data, T&C apply
- 4 bd
- 2.5 ba
- 2,712 sqft
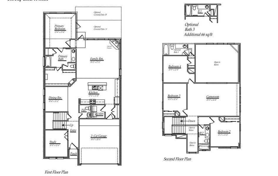
254 plan in Sunterra Lakes by Long Lake Ltd.
Visit the community to experience this floor plan
Why tour with Jome?
- No pressure toursTour at your own pace with no sales pressure
- Expert guidanceGet insights from our home buying experts
- Exclusive accessSee homes and deals not available elsewhere
Jome is featured in
Plan description
May also be listed on the Long Lake Ltd. website
Information last verified by Jome: Today at 4:21 AM (January 14, 2026)
Plan details
- Name:
- 254
- Property status:
- Floor plan
- Price from:
- $358,990
- Price to:
- $503,580
- Size:
- 2,712 sqft
- Stories:
- 2
- Beds:
- 4
- Baths:
- 2.5
- Garage spaces:
- 2
Plan features & finishes
- Garage/Parking:
- GarageAttached Garage
- Interior Features:
- Walk-In Closet
- Laundry facilities:
- Utility/Laundry Room
- Property amenities:
- Porch
- Rooms:
- KitchenPowder RoomGame RoomOffice/StudyDining RoomFamily RoomOpen Concept FloorplanPrimary Bedroom Downstairs
- Upgrade Options:
- Covered PatioExtra Bathroom

Get a consultation with our New Homes Expert
- See how your home builds wealth
- Plan your home-buying roadmap
- Discover hidden gems
See the full plan layout
Download the floor plan PDF with room dimensions and home design details.

Instant download, no cost

Community details
Sunterra Lakes at Sunterra
by Long Lake Ltd., Brookshire, TX
- 8 homes
- 24 plans
- 1,531 - 4,041 sqft
View Sunterra Lakes details
Want to know more about what's around here?
The 254 floor plan is part of Sunterra Lakes, a new home community by Long Lake Ltd., located in Fulshear, TX. Visit the Sunterra Lakes community page for full neighborhood insights, including nearby schools, shopping, walk & bike-scores, commuting, air quality & natural hazards.

Homes built from this plan
Available homes in Sunterra Lakes
- Home at address 2113 Sunflower View St, Fulshear, TX 77423

Images coming soon
218
$411,690
- 4 bd
- 3 ba
- 1,876 sqft
2113 Sunflower View St, Fulshear, TX 77423
- Home at address 4017 Sun Burst Ln, Fulshear, TX 77423

265
$432,540
- 4 bd
- 3.5 ba
- 2,782 sqft
4017 Sun Burst Ln, Fulshear, TX 77423
- Home at address 4037 Sun Burst Ln, Fulshear, TX 77423

269
$450,990
- 4 bd
- 3.5 ba
- 2,837 sqft
4037 Sun Burst Ln, Fulshear, TX 77423
- Home at address 2109 Sunflower View St, Fulshear, TX 77423

Images coming soon
269
$468,240
- 4 bd
- 3.5 ba
- 2,837 sqft
2109 Sunflower View St, Fulshear, TX 77423
- Home at address 2125 Sunflower View St, Fulshear, TX 77423

Images coming soon
269
$470,440
- 5 bd
- 3.5 ba
- 2,837 sqft
2125 Sunflower View St, Fulshear, TX 77423
More floor plans in Sunterra Lakes

Considering this plan?
Our expert will guide your tour, in-person or virtual
Need more information?
Text or call (888) 486-2818
Financials
Estimated monthly payment
Let us help you find your dream home
How many bedrooms are you looking for?






































