














Book your tour. Save an average of $18,473. We'll handle the rest.
- Confirmed tours
- Get matched & compare top deals
- Expert help, no pressure
- No added fees
Estimated value based on Jome data, T&C apply















- 4 bd
- 4 ba
- 3,096 sqft
Brookshire - Single Family Homes plan in Parmer Ranch by Coventry Homes
Visit the community to experience this floor plan
Why tour with Jome?
- No pressure toursTour at your own pace with no sales pressure
- Expert guidanceGet insights from our home buying experts
- Exclusive accessSee homes and deals not available elsewhere
Jome is featured in
Plan description
May also be listed on the Coventry Homes website
Information last verified by Jome: Monday at 2:27 AM (November 10, 2025)
Plan highlights
Plan details
- Name:
- Brookshire - Single Family Homes
- Property status:
- Floor plan
- Size:
- 3,096 sqft
- Stories:
- 2
- Beds:
- 4
- Baths:
- 4
- Garage spaces:
- 2
Plan features & finishes
- Garage/Parking:
- GarageAttached Garage
- Interior Features:
- Walk-In ClosetFoyerPantry
- Kitchen:
- Kitchen Island
- Laundry facilities:
- Utility/Laundry Room
- Property amenities:
- Butler's PantryPatio
- Rooms:
- Primary Bedroom On MainKitchenGame RoomOffice/StudyDining RoomFamily RoomOpen Concept FloorplanPrimary Bedroom Downstairs
- Upgrade Options:
- Freestanding TubExtended GaragePowder RoomMedia RoomGarage BayTech CenterExtra BathroomSliding DoorsDouble DoorsExtra BedroomShowerFireplaceExtended Patio
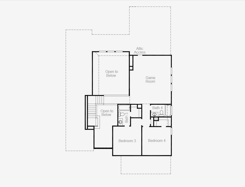
See the full plan layout
Download the floor plan PDF with room dimensions and home design details.

Instant download, no cost

Community details
Parmer Ranch at Parmer Ranch
by Coventry Homes, Georgetown, TX
- 20 homes
- 15 plans
- 1,992 - 3,645 sqft
View Parmer Ranch details
Want to know more about what's around here?
The Brookshire - Single Family Homes floor plan is part of Parmer Ranch, a new home community by Coventry Homes, located in Georgetown, TX. Visit the Parmer Ranch community page for full neighborhood insights, including nearby schools, shopping, walk & bike-scores, commuting, air quality & natural hazards.

Homes built from this plan
Available homes in Parmer Ranch
More floor plans in Parmer Ranch

Considering this plan?
Our expert will guide your tour, in-person or virtual
Need more information?
Text or call (888) 486-2818
Financials
Estimated monthly payment
Similar homes nearby
Recently added communities in this area
Nearby communities in Georgetown
New homes in nearby cities
More New Homes in Georgetown, TX
- Home
- New homes
- Texas
- Greater Austin Area
- Williamson County
- Georgetown
- Parmer Ranch
- Georgetown, TX 78633










































