










Book your tour. Save an average of $18,473. We'll handle the rest.
- Confirmed tours
- Get matched & compare top deals
- Expert help, no pressure
- No added fees
Estimated value based on Jome data, T&C apply



















































- 3 bd
- 2 ba
- 2,360 sqft
Everleigh Plan plan in Prominence by Highland Homes
Visit the community to experience this floor plan
Why tour with Jome?
- No pressure toursTour at your own pace with no sales pressure
- Expert guidanceGet insights from our home buying experts
- Exclusive accessSee homes and deals not available elsewhere
Jome is featured in
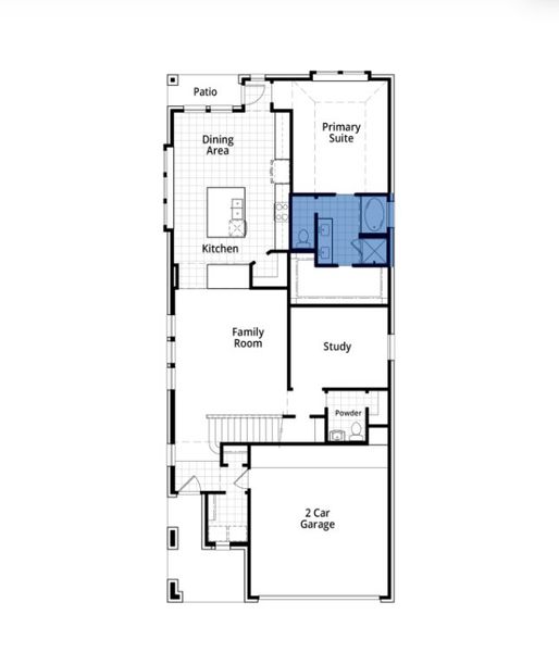
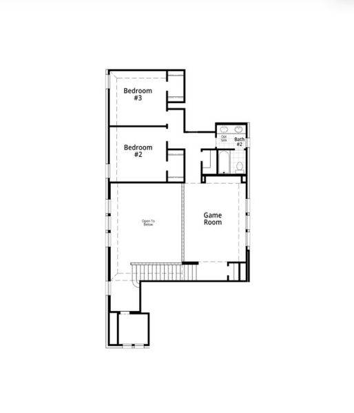
Plan description
May also be listed on the Highland Homes website
Information last verified by Jome: Today at 12:50 AM (December 7, 2025)
Plan highlights
Plan details
- Name:
- Everleigh Plan
- Property status:
- Floor plan
- Size:
- 2,360 sqft
- Stories:
- 2
- Beds from:
- 3
- Beds to:
- 4
- Baths from:
- 2
- Baths to:
- 3
- Half baths to:
- 1
- Garage spaces:
- 2
Plan features & finishes
- Garage/Parking:
- GarageAttached Garage
- Interior Features:
- Walk-In ClosetPantry
- Kitchen:
- Kitchen Island
- Laundry facilities:
- Utility/Laundry Room
- Property amenities:
- Patio
- Rooms:
- Primary Bedroom On MainKitchenGame RoomOffice/StudyDining RoomFamily RoomPrimary Bedroom Downstairs
- Upgrade Options:
- Bay WindowsFreestanding TubExtended Outdoor LivingShower in Primary BathExtra BathroomExtra BedroomShowerFireplace
See the full plan layout
Download the floor plan PDF with room dimensions and home design details.

Instant download, no cost

Community details
Prominence
by Highland Homes, San Antonio, TX
- 3 homes
- 17 plans
- 1,584 - 2,874 sqft
View Prominence details
Want to know more about what's around here?
The Everleigh Plan floor plan is part of Prominence, a new home community by Highland Homes, located in San Antonio, TX. Visit the Prominence community page for full neighborhood insights, including nearby schools, shopping, walk & bike-scores, commuting, air quality & natural hazards.

Available homes in Prominence
More floor plans in Prominence

Considering this plan?
Our expert will guide your tour, in-person or virtual
Need more information?
Text or call (888) 486-2818
Financials
Estimated monthly payment
Similar homes nearby
Recently added communities in this area
Nearby communities in San Antonio
New homes in nearby cities
More New Homes in San Antonio, TX
- Home
- New homes
- Texas
- Greater San Antonio
- Bexar County
- San Antonio
- Prominence
- San Antonio, TX 78245






































