









Book your tour. Save an average of $18,473. We'll handle the rest.
We collect exclusive builder offers, book your tours, and support you from start to housewarming.
- Confirmed tours
- Get matched & compare top deals
- Expert help, no pressure
- No added fees
Estimated value based on Jome data, T&C apply






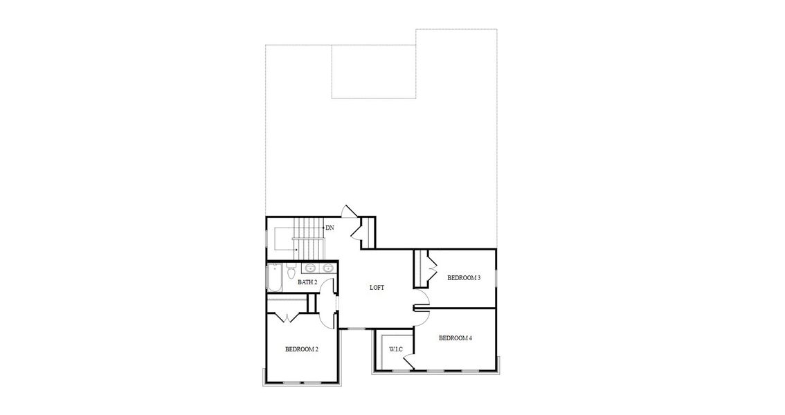
- 4 bd
- 2.5 ba
- 2,449 sqft
Miller plan in Oakberry Trails by Risewell Homes
Visit the community to experience this floor plan
Why tour with Jome?
- No pressure toursTour at your own pace with no sales pressure
- Expert guidanceGet insights from our home buying experts
- Exclusive accessSee homes and deals not available elsewhere
Jome is featured in
Plan description
May also be listed on the Risewell Homes website
Information last verified by Jome: Yesterday at 5:47 PM (May 30, 2026)
Plan details
- Name:
- Miller
- Property type:
- Floor plan
- Community:
- Oakberry Trails
- Builder:
- Risewell Homes
- Collection:
- The Residences Collection at Oakberry Trails
- Size:
- 2,449 sqft
- Stories:
- 2
- Beds:
- 4
- Baths:
- 2.5
- Garage spaces:
- 2
Plan features & finishes
- Garage/Parking:
- GarageAttached Garage
- Interior Features:
- Walk-In ClosetFoyerPantryLoft
- Kitchen:
- Kitchen Island
- Laundry facilities:
- Utility/Laundry Room
- Property amenities:
- Covered PatioPatioPorch
- Rooms:
- Flex RoomPrimary Bedroom On MainKitchenPowder RoomDining RoomFamily RoomOpen Concept FloorplanPrimary Bedroom Downstairs

Get a consultation with our New Homes Expert
- See how your home builds wealth
- Plan your home-buying roadmap
- Discover hidden gems
See the full plan layout
Download the floor plan PDF with room dimensions and home design details.

Instant download, no cost

Community details
Oakberry Trails at Oakberry Trails
by Risewell Homes, Waller, TX
- 10 homes
- 13 plans
- 1,616 - 2,731 sqft
View Oakberry Trails details
Want to know more about what's around here?
The Miller floor plan is part of Oakberry Trails, a new home community by Risewell Homes, located in Waller, TX. Visit the Oakberry Trails community page for full neighborhood insights, including nearby schools, shopping, walk & bike-scores, commuting, air quality & natural hazards.

Homes built from this plan
Available homes in Oakberry Trails
- Home at address 29414 Meadowcreek Hill Dr, Waller, TX 77484

Wyatt
The Residences Collection at Oakberry Trails
$305,460
- 4 bd
- 3 ba
- 1,715 sqft
29414 Meadowcreek Hill Dr, Waller, TX 77484
- Home at address 29542 Pondview Dr, Waller, TX 77484

Home
$318,990
- 4 bd
- 3.5 ba
- 2,238 sqft
29542 Pondview Dr, Waller, TX 77484
- Home at address 29422 Meadowcreek Hill Dr, Waller, TX 77484

Home
The Residences Collection at Oakberry Trails
$324,000
- 4 bd
- 3 ba
- 2,104 sqft
29422 Meadowcreek Hill Dr, Waller, TX 77484
- Home at address 29422 Suncreek Ranch Ct, Waller, TX 77484

Kennedy
The Residences Collection at Oakberry Trails
$329,990
- 4 bd
- 2.5 ba
- 2,351 sqft
29422 Suncreek Ranch Ct, Waller, TX 77484
More floor plans in Oakberry Trails
- View details for Ailynn

Ailynn
The Cottages Collection at Oakberry Trails
$311,990+- 4 bd
- 3.5 ba
- 2,238 sqft
- View details for Ella Grace

Ella Grace
The Cottages Collection at Oakberry Trails
$315,990+- 4 bd
- 3.5 ba
- 2,339 sqft

Considering this plan?
Our expert will guide your tour, in-person or virtual
Need more information?
Text or call (888) 545-5198
Financials
Estimated monthly payment
Let us help you find your dream home
How many bedrooms are you looking for?
Similar homes nearby
Recently added communities in this area
Nearby communities in Waller
New homes in nearby cities
More New Homes in Waller, TX
- Jome
- New homes search
- Texas
- Greater Houston Area
- Harris County
- Waller
- Oakberry Trails
- The Residences Collection at Oakberry Trails
- 21523 Vineyard View Dr, Waller, TX 77484































