









Book your tour. Save an average of $18,473. We'll handle the rest.
We collect exclusive builder offers, book your tours, and support you from start to housewarming.
- Confirmed tours
- Get matched & compare top deals
- Expert help, no pressure
- No added fees
Estimated value based on Jome data, T&C apply
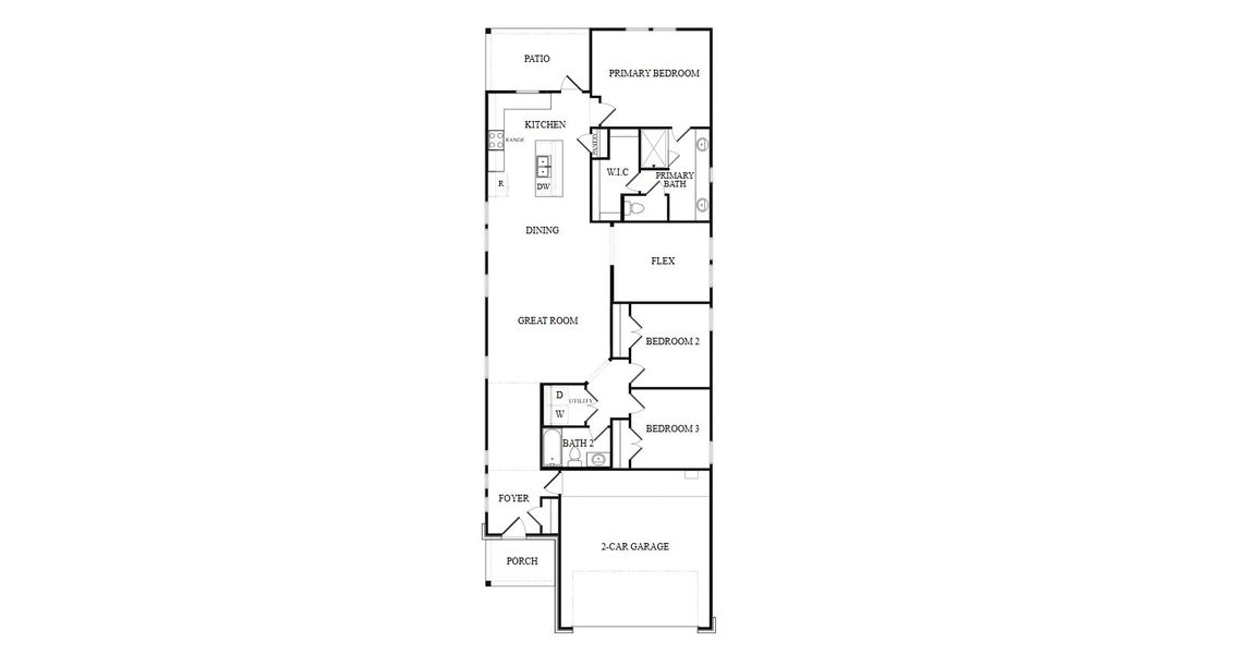
- 3 bd
- 2 ba
- 1,621 sqft
Isabella plan in Oakberry Trails by Risewell Homes
Visit the community to experience this floor plan
Why tour with Jome?
- No pressure toursTour at your own pace with no sales pressure
- Expert guidanceGet insights from our home buying experts
- Exclusive accessSee homes and deals not available elsewhere
Jome is featured in
Plan description
May also be listed on the Risewell Homes website
Information last verified by Jome: Today at 2:03 AM (February 15, 2026)
Plan details
- Name:
- Isabella
- Property status:
- Floor plan
- Collection:
- The Cottages Collection at Oakberry Trails
- Size:
- 1,621 sqft
- Stories:
- 1
- Beds:
- 3
- Baths:
- 2
- Garage spaces:
- 2
Plan features & finishes
- Garage/Parking:
- GarageAttached Garage
- Interior Features:
- Walk-In ClosetFoyerPantry
- Kitchen:
- Kitchen Island
- Laundry facilities:
- Utility/Laundry Room
- Property amenities:
- PatioPorch
- Rooms:
- Flex RoomPrimary Bedroom On MainKitchenDining RoomFamily RoomOpen Concept FloorplanPrimary Bedroom Downstairs
- Upgrade Options:
- FireplaceExtended Patio

Get a consultation with our New Homes Expert
- See how your home builds wealth
- Plan your home-buying roadmap
- Discover hidden gems
See the full plan layout
Download the floor plan PDF with room dimensions and home design details.

Instant download, no cost

Community details
Oakberry Trails at Oakberry Trails
by Risewell Homes, Waller, TX
- 12 homes
- 13 plans
- 1,616 - 2,731 sqft
View Oakberry Trails details
Want to know more about what's around here?
The Isabella floor plan is part of Oakberry Trails, a new home community by Risewell Homes, located in Waller, TX. Visit the Oakberry Trails community page for full neighborhood insights, including nearby schools, shopping, walk & bike-scores, commuting, air quality & natural hazards.

Homes built from this plan
Available homes in Oakberry Trails
- Home at address 21514 Berry Crest Ln, Waller, TX 77484

Baylee
The Cottages Collection at Oakberry Trails
$299,990
- 3 bd
- 2.5 ba
- 2,023 sqft
21514 Berry Crest Ln, Waller, TX 77484
- Home at address 29422 Suncreek Ranch Ct, Waller, TX 77484

Kennedy
The Residences Collection at Oakberry Trails
$329,990
- 4 bd
- 2.5 ba
- 2,351 sqft
29422 Suncreek Ranch Ct, Waller, TX 77484
- Home at address 29331 Meadowcreek Hill Dr, Waller, TX 77484

Hoyt
The Residences Collection at Oakberry Trails
$337,950
- 4 bd
- 3 ba
- 2,104 sqft
29331 Meadowcreek Hill Dr, Waller, TX 77484
- Home at address 21603 Berry Crest Ln, Waller, TX 77484

Baylee
The Cottages Collection at Oakberry Trails
$339,990
- 3 bd
- 2.5 ba
- 2,023 sqft
21603 Berry Crest Ln, Waller, TX 77484
- Home at address 29303 Meadowcreek Hill Dr, Waller, TX 77484

Miller
The Residences Collection at Oakberry Trails
$359,990
- 5 bd
- 4 ba
- 2,452 sqft
29303 Meadowcreek Hill Dr, Waller, TX 77484
- Home at address 29311 Meadowcreek Hill Dr, Waller, TX 77484

Kennedy
The Residences Collection at Oakberry Trails
$364,080
- 3 bd
- 2.5 ba
- 2,351 sqft
29311 Meadowcreek Hill Dr, Waller, TX 77484
More floor plans in Oakberry Trails
- View details for Makenna

Makenna
The Cottages Collection at Oakberry Trails
$314,990+- 3 bd
- 2 ba
- 1,703 sqft
- View details for Baylee

Baylee
The Cottages Collection at Oakberry Trails
$333,990+- 3 bd
- 2.5 ba
- 2,028 sqft

Considering this plan?
Our expert will guide your tour, in-person or virtual
Need more information?
Text or call (888) 486-2818
Financials
Estimated monthly payment
Let us help you find your dream home
How many bedrooms are you looking for?
Similar homes nearby
Recently added communities in this area
Nearby communities in Waller
New homes in nearby cities
More New Homes in Waller, TX
- Jome
- New homes search
- Texas
- Greater Houston Area
- Harris County
- Waller
- Oakberry Trails
- The Cottages Collection at Oakberry Trails
- 21523 Vineyard View Dr, Waller, TX 77484
































