









Book your tour. Save an average of $18,473. We'll handle the rest.
We collect exclusive builder offers, book your tours, and support you from start to housewarming.
- Confirmed tours
- Get matched & compare top deals
- Expert help, no pressure
- No added fees
Estimated value based on Jome data, T&C apply
- 4 bd
- 3 ba
- 2,292 sqft
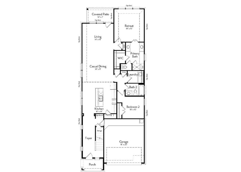
Childress plan in Aldeana - Tejas Collection by Autograph Homes
Visit the community to experience this floor plan
Why tour with Jome?
- No pressure toursTour at your own pace with no sales pressure
- Expert guidanceGet insights from our home buying experts
- Exclusive accessSee homes and deals not available elsewhere
Jome is featured in
Plan description
May also be listed on the Autograph Homes website
Information last verified by Jome: Today at 3:49 AM (February 27, 2026)
Plan details
- Name:
- Childress
- Property status:
- Floor plan
- Size:
- 2,292 sqft
- Stories:
- 2
- Beds:
- 4
- Baths:
- 3
- Garage spaces:
- 2
Plan features & finishes
- Garage/Parking:
- GarageAttached Garage
- Interior Features:
- Walk-In ClosetFoyerPantry
- Kitchen:
- Kitchen Island
- Laundry facilities:
- Utility/Laundry Room
- Property amenities:
- PatioPorch
- Rooms:
- Primary Bedroom On MainKitchenDining RoomLiving RoomOpen Concept FloorplanPrimary Bedroom Downstairs
- Upgrade Options:
- Extended GarageSliding Glass DoorsAlternate Primary BathOutdoor KitchenVaulted CeilingExtra BedroomFireplace

Get a consultation with our New Homes Expert
- See how your home builds wealth
- Plan your home-buying roadmap
- Discover hidden gems
See the full plan layout
Download the floor plan PDF with room dimensions and home design details.

Instant download, no cost

Community details
Aldeana - Tejas Collection at Aldeana
by Autograph Homes, Bonney, TX
- 4 homes
- 8 plans
- 1,537 - 2,317 sqft
View Aldeana - Tejas Collection details
Want to know more about what's around here?
The Childress floor plan is part of Aldeana - Tejas Collection, a new home community by Autograph Homes, located in Bonney, TX. Visit the Aldeana - Tejas Collection community page for full neighborhood insights, including nearby schools, shopping, walk & bike-scores, commuting, air quality & natural hazards.

Homes built from this plan
Available homes in Aldeana - Tejas Collection
- Home at address 21115 Autumn Heights Dr, Bonney, TX 77583

Williamson
$309,307
- 4 bd
- 2 ba
- 1,693 sqft
21115 Autumn Heights Dr, Bonney, TX 77583
More floor plans in Aldeana - Tejas Collection

Considering this plan?
Our expert will guide your tour, in-person or virtual
Need more information?
Text or call (888) 488-9243
Financials
Estimated monthly payment
Let us help you find your dream home
How many bedrooms are you looking for?
Similar homes nearby
Recently added communities in this area
Nearby communities in Bonney
New homes in nearby cities
More New Homes in Bonney, TX
- Jome
- New homes search
- Texas
- Greater Houston Area
- Brazoria County
- Bonney
- Aldeana - Tejas Collection
- 835 Evergreen Forest Ln, Bonney, TX 77583






























