




Book your tour. Save an average of $18,473. We'll handle the rest.
We collect exclusive builder offers, book your tours, and support you from start to housewarming.
- Confirmed tours
- Get matched & compare top deals
- Expert help, no pressure
- No added fees
Estimated value based on Jome data, T&C apply
- 3 bd
- 2 ba
- 1,505 sqft
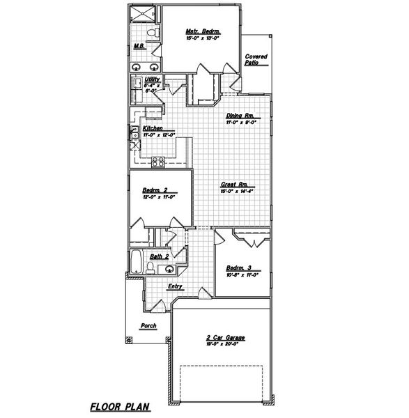
Plan 1505 plan in La Segarra by Cyrene Homes
Visit the community to experience this floor plan
Why tour with Jome?
- No pressure toursTour at your own pace with no sales pressure
- Expert guidanceGet insights from our home buying experts
- Exclusive accessSee homes and deals not available elsewhere
Jome is featured in
Plan description
May also be listed on the Cyrene Homes website
Information last verified by Jome: Friday at 12:12 PM (January 16, 2026)
Plan details
- Name:
- Plan 1505
- Property status:
- Floor plan
- Size:
- 1,505 sqft
- Stories:
- 1
- Beds:
- 3
- Baths:
- 2
- Garage spaces:
- 2
Plan features & finishes
- Garage/Parking:
- GarageAttached Garage
- Interior Features:
- Walk-In ClosetPantry
- Kitchen:
- Kitchen Range
- Laundry facilities:
- Utility/Laundry Room
- Property amenities:
- PatioPorch
- Rooms:
- Primary Bedroom On MainKitchenDining RoomFamily RoomOpen Concept FloorplanPrimary Bedroom Downstairs

Get a consultation with our New Homes Expert
- See how your home builds wealth
- Plan your home-buying roadmap
- Discover hidden gems
See the full plan layout
Download the floor plan PDF with room dimensions and home design details.

Instant download, no cost

Community details
La Segarra at La Segarra
by Cyrene Homes, Brookshire, TX
- 6 homes
- 8 plans
- 1,378 - 2,360 sqft
View La Segarra details
Want to know more about what's around here?
The Plan 1505 floor plan is part of La Segarra, a new home community by Cyrene Homes, located in Brookshire, TX. Visit the La Segarra community page for full neighborhood insights, including nearby schools, shopping, walk & bike-scores, commuting, air quality & natural hazards.

Homes built from this plan
Available homes in La Segarra
- Home at address 364 Palero Path, Brookshire, TX 77423

Plan 1378
$254,990
- 3 bd
- 2 ba
- 1,378 sqft
364 Palero Path, Brookshire, TX 77423
- Home at address 448 Stone Placa, Brookshire, TX 77423

Home
$282,990
- 4 bd
- 2 ba
- 1,616 sqft
448 Stone Placa, Brookshire, TX 77423
- Home at address 323 Palero Path, Brookshire, TX 77423

Plan 1988
$309,990
- 3 bd
- 2.5 ba
- 1,988 sqft
323 Palero Path, Brookshire, TX 77423
- Home at address 304 Palero Path, Brookshire, TX 77423

Plan 2102
$319,990
- 4 bd
- 3 ba
- 2,102 sqft
304 Palero Path, Brookshire, TX 77423
- Home at address 473 Stone Placa Trl, Brookshire, TX 77423

Home
$324,990
- 4 bd
- 3 ba
- 2,102 sqft
473 Stone Placa Trl, Brookshire, TX 77423
- Home at address 328 Palero Path, Brookshire, TX 77423

Plan 2360
$329,990
- 4 bd
- 3.5 ba
- 2,360 sqft
328 Palero Path, Brookshire, TX 77423
More floor plans in La Segarra

Considering this plan?
Our expert will guide your tour, in-person or virtual
Need more information?
Text or call (888) 488-9243
Financials
Estimated monthly payment
Let us help you find your dream home
How many bedrooms are you looking for?
Similar homes nearby
Recently added communities in this area
Nearby communities in Brookshire
New homes in nearby cities
More New Homes in Brookshire, TX
- Jome
- New homes search
- Texas
- Greater Houston Area
- Waller County
- Brookshire
- La Segarra
- 368 Stone Placa Trl, Brookshire, TX 77423
































