








Book your tour. Save an average of $18,473. We'll handle the rest.
We collect exclusive builder offers, book your tours, and support you from start to housewarming.
- Confirmed tours
- Get matched & compare top deals
- Expert help, no pressure
- No added fees
Estimated value based on Jome data, T&C apply






















































- 4 bd
- 3.5 ba
- 3,492 sqft
Foxleigh plan in Goodland by Highland Homes
Visit the community to experience this floor plan
Why tour with Jome?
- No pressure toursTour at your own pace with no sales pressure
- Expert guidanceGet insights from our home buying experts
- Exclusive accessSee homes and deals not available elsewhere
Jome is featured in
Plan description
May also be listed on the Highland Homes website
Information last verified by Jome: Yesterday at 1:02 AM (April 21, 2026)
Plan details
- Name:
- Foxleigh
- Property type:
- Floor plan
- Community:
- Goodland
- Builder:
- Highland Homes
- Collection:
- Goodland: 60ft. lots
- Lot width (feet):
- 60
- Size:
- 3,492 sqft
- Stories:
- 2
- Beds from:
- 4
- Beds to:
- 5
- Baths from:
- 3
- Baths to:
- 4
- Half baths from:
- 1
- Half baths to:
- 2
- Garage spaces:
- 3
Plan features & finishes
- Garage/Parking:
- GarageAttached Garage
- Interior Features:
- Walk-In ClosetPantryStorage
- Kitchen:
- Kitchen Island
- Laundry facilities:
- Utility/Laundry Room
- Property amenities:
- Patio
- Rooms:
- Primary Bedroom On MainKitchenGame RoomOffice/StudyDining RoomFamily RoomPrimary Bedroom Downstairs
- Upgrade Options:
- Bay WindowsFreestanding TubExtended Outdoor LivingPowder BathSliding Glass DoorsExtra BathroomExtra BedroomShower

Get a consultation with our New Homes Expert
- See how your home builds wealth
- Plan your home-buying roadmap
- Discover hidden gems
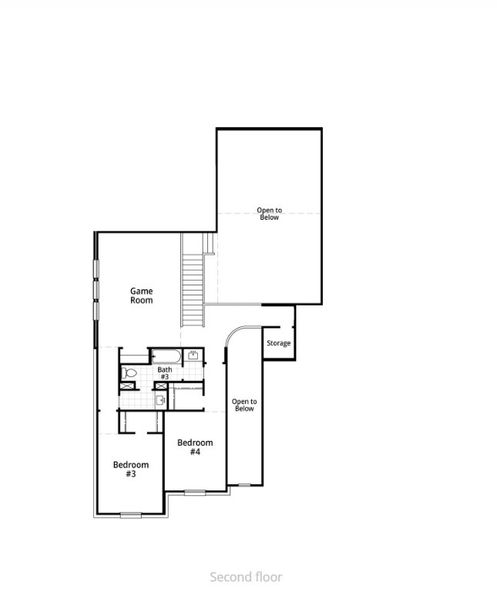
See the full plan layout
Download the floor plan PDF with room dimensions and home design details.

Instant download, no cost

Community details
Goodland at GoodLand
by Highland Homes, Venus, TX
- 18 homes
- 44 plans
- 1,612 - 3,799 sqft
View Goodland details
Want to know more about what's around here?
The Foxleigh floor plan is part of Goodland, a new home community by Highland Homes, located in Venus, TX. Visit the Goodland community page for full neighborhood insights, including nearby schools, shopping, walk & bike-scores, commuting, air quality & natural hazards.

Available homes in Goodland
- Home at address 7558 Epiphany Wy, Midlothian, TX 76084

Lynnwood
Goodland: 40ft. lots
$450,605
- 4 bd
- 3 ba
- 2,273 sqft
7558 Epiphany Wy, Midlothian, TX 76084
- Home at address 7562 Anastasia St, Midlothian, TX 76084

Warrenton
Goodland: 40ft. lots
$474,900
- 4 bd
- 3 ba
- 2,349 sqft
7562 Anastasia St, Midlothian, TX 76084
- Home at address 7542 Anastasia St, Midlothian, TX 76084

Lynnwood
Goodland: 40ft. lots
$483,855
- 4 bd
- 3 ba
- 2,273 sqft
7542 Anastasia St, Midlothian, TX 76084
- Home at address 7566 Anastasia St, Midlothian, TX 76084

Worthington
Goodland: 40ft. lots
$488,583
- 4 bd
- 3 ba
- 2,333 sqft
7566 Anastasia St, Midlothian, TX 76084
- Home at address 7526 Epiphany Wy, Midlothian, TX 76084

London
Goodland: 40ft. lots
$491,140
- 4 bd
- 3 ba
- 2,458 sqft
7526 Epiphany Wy, Midlothian, TX 76084
- Home at address 3743 Long Stem St, Midlothian, TX 76084

Kingston
Goodland: 53ft. lots
$551,380
- 4 bd
- 3 ba
- 2,530 sqft
3743 Long Stem St, Midlothian, TX 76084
More floor plans in Goodland

Considering this plan?
Our expert will guide your tour, in-person or virtual
Need more information?
Text or call (888) 545-5198
Financials
Estimated monthly payment
Let us help you find your dream home
How many bedrooms are you looking for?
Similar homes nearby
Recently added communities in this area
Nearby communities in Venus
New homes in nearby cities
More New Homes in Venus, TX
- Jome
- New homes search
- Texas
- Dallas-Fort Worth Area
- Ellis County
- Venus
- Goodland
- Goodland: 60ft. lots
- 3761 Long Stem St, Venus, TX 76084
































