





Book your tour. Save an average of $18,473. We'll handle the rest.
- Confirmed tours
- Get matched & compare top deals
- Expert help, no pressure
- No added fees
Estimated value based on Jome data, T&C apply
- 4 bd
- 3 ba
- 2,078 sqft
The Jason plan in Hickory Hill by Lillian Custom Homes
Visit the community to experience this floor plan
Why tour with Jome?
- No pressure toursTour at your own pace with no sales pressure
- Expert guidanceGet insights from our home buying experts
- Exclusive accessSee homes and deals not available elsewhere
Jome is featured in
Plan description
May also be listed on the Lillian Custom Homes website
Information last verified by Jome: Friday at 11:26 AM (October 17, 2025)
Plan highlights
Plan details
- Name:
- The Jason
- Property status:
- Floor plan
- Size:
- 2,078 sqft
- Stories:
- 1
- Beds:
- 4
- Baths:
- 3
- Garage spaces:
- 2
Plan features & finishes
- Garage/Parking:
- GarageAttached Garage
- Interior Features:
- Walk-In ClosetFoyerPantry
- Kitchen:
- Kitchen Island
- Laundry facilities:
- Utility/Laundry Room
- Property amenities:
- PatioPorch
- Rooms:
- Primary Bedroom On MainKitchenDining RoomFamily RoomPrimary Bedroom Downstairs
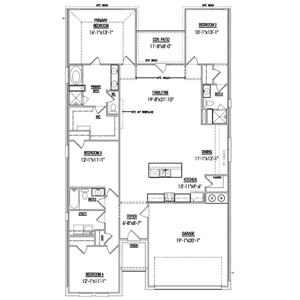
See the full plan layout
Download the floor plan PDF with room dimensions and home design details.

Instant download, no cost

Community details
Hickory Hill
by Lillian Custom Homes, Sherman, TX
- 3 homes
- 9 plans
- 1,486 - 2,282 sqft
View Hickory Hill details
Want to know more about what's around here?
The The Jason floor plan is part of Hickory Hill, a new home community by Lillian Custom Homes, located in Sherman, TX. Visit the Hickory Hill community page for full neighborhood insights, including nearby schools, shopping, walk & bike-scores, commuting, air quality & natural hazards.

Available homes in Hickory Hill
More floor plans in Hickory Hill

Considering this plan?
Our expert will guide your tour, in-person or virtual
Need more information?
Text or call (888) 486-2818
Financials
Estimated monthly payment
Similar homes nearby
Recently added communities in this area
Nearby communities in Sherman
New homes in nearby cities
More New Homes in Sherman, TX
- Home
- New homes
- Texas
- Dallas-Fort Worth Area
- Grayson County
- Sherman
- Hickory Hill
- 4219 Pigeon Dr, Sherman, TX 75092




























