

- 3 bd
- 2 ba
- 1,695 sqft
Bailey Plan plan in Goodland: 40ft. lots by Highland Homes
New Homes for Sale Near Venus, TX 76084
About this Plan
Discover the Bailey Plan floor plan in Goodland: 40ft. lots, an outstanding community designed by Highland Homes in the city of Venus. This plan uses high-quality materials and finishes to create a luxurious ambiance you'll love coming home to for years.
Located at Venus, TX 76084 in the prestigious Goodland: 40ft. lots, you'll find a collection of other new construction homes created with various layouts, along with a welcoming community of neighbors and a variety of amenities to enrich your lifestyle.
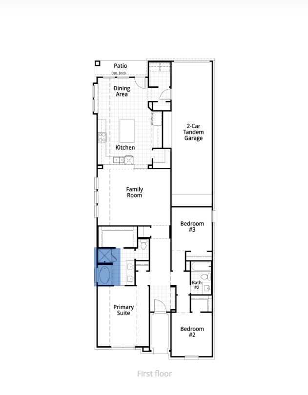
The Bailey Plan is a beautiful 1-story floor plan with 3 spacious bedrooms, and 2 modern bathrooms spread over 1,695 square feet. This plan also includes a garage with 2 spaces for parking vehicles, extra storage, or hobby essentials.
You'll love the convenience of being close to fantastic shopping, top-notch dining options, entertainment, and opportunities for outdoor adventures. Plus, Goodland: 40ft. lots is zoned to the reputable Midlothian Independent School District, providing easy access to the best schools in the area.
Does Bailey Plan sound like your dream floor plan? Work with Jome to make it a reality. Contact a New Construction Specialist to take the first step towards a lifestyle of convenience and luxury in your future home.
May also be listed on the Highland Homes website
Information last verified by Jome: Tuesday at 7:11 PM (October 7, 2025)
Plan details
- Name:
- Bailey Plan
- Property status:
- Sold
- Lot width (feet):
- 40
- Size:
- 1,695 sqft
- Stories:
- 1
- Beds:
- 3
- Baths:
- 2
- Garage spaces:
- 2
Plan features & finishes
- Garage/Parking:
- GarageAttached GarageTandem Parking
- Interior Features:
- Walk-In ClosetPantry
- Kitchen:
- Kitchen Island
- Laundry facilities:
- Utility/Laundry Room
- Property amenities:
- Patio
- Rooms:
- Primary Bedroom On MainKitchenDining RoomFamily RoomPrimary Bedroom Downstairs
- Upgrade Options:
- Freestanding TubExtended Outdoor LivingSeparate Shower and TubShowerFireplace
See the full plan layout
Download the floor plan PDF with room dimensions and home design details.

Instant download, no cost

Community details
Goodland: 40ft. lots at GoodLand
by Highland Homes, Midlothian, TX
- 7 homes
- 10 plans
- 1,612 - 2,454 sqft
View Goodland: 40ft. lots details
Want to know more about what's around here?
The Bailey Plan floor plan is part of Goodland: 40ft. lots, a new home community by Highland Homes, located in Venus, TX. Visit the Goodland: 40ft. lots community page for full neighborhood insights, including nearby schools, shopping, walk & bike-scores, commuting, air quality & natural hazards.

Available homes in Goodland: 40ft. lots
- Home at address 7559 Epiphany Wy, Midlothian, TX 76084

$381,540
Under construction- 3 bd
- 2 ba
- 1,612 sqft
7559 Epiphany Wy, Midlothian, TX 76084
- Home at address 3594 Redbud Flower Trl, Midlothian, TX 76084

$384,340
Under construction- 3 bd
- 2 ba
- 1,612 sqft
3594 Redbud Flower Trl, Midlothian, TX 76084
- Home at address 7562 Anastasia St, Midlothian, TX 76084

$443,905
Under construction- 4 bd
- 3 ba
- 2,349 sqft
7562 Anastasia St, Midlothian, TX 76084
- Home at address 3766 Long Stem St, Midlothian, TX 76084

$448,335
Under construction- 4 bd
- 3 ba
- 2,273 sqft
3766 Long Stem St, Midlothian, TX 76084
- Home at address 7542 Anastasia St, Midlothian, TX 76084

$449,690
Under construction- 4 bd
- 3 ba
- 2,273 sqft
7542 Anastasia St, Midlothian, TX 76084
- Home at address 7566 Anastasia St, Midlothian, TX 76084

$453,935
Under construction- 4 bd
- 3 ba
- 2,333 sqft
7566 Anastasia St, Midlothian, TX 76084






































































