









Book your tour. Save an average of $18,473. We'll handle the rest.
We collect exclusive builder offers, book your tours, and support you from start to housewarming.
- Confirmed tours
- Get matched & compare top deals
- Expert help, no pressure
- No added fees
Estimated value based on Jome data, T&C apply






- 5 bd
- 3 ba
- 3,306 sqft
Eagle Mountain plan in Cambridge Crossing by Coventry Homes
Visit the community to experience this floor plan
Why tour with Jome?
- No pressure toursTour at your own pace with no sales pressure
- Expert guidanceGet insights from our home buying experts
- Exclusive accessSee homes and deals not available elsewhere
Jome is featured in
Plan description
May also be listed on the Coventry Homes website
Information last verified by Jome: Today at 2:43 AM (May 30, 2026)
Plan details
- Name:
- Eagle Mountain
- Property type:
- Floor plan
- Community:
- Cambridge Crossing
- Builder:
- Coventry Homes
- Collection:
- Cambridge Crossing 60'
- Lot width (feet):
- 60
- Size:
- 3,306 sqft
- Stories:
- 2
- Beds:
- 5
- Baths:
- 3
- Garage spaces:
- 2
Plan features & finishes
- Garage/Parking:
- GarageAttached Garage
- Interior Features:
- Walk-In ClosetFoyerPantry
- Kitchen:
- Kitchen Island
- Laundry facilities:
- Utility/Laundry Room
- Property amenities:
- Butler's PantryPatioPorch
- Rooms:
- Primary Bedroom On MainKitchenGame RoomOffice/StudyDining RoomFamily RoomPrimary Bedroom Downstairs
- Upgrade Options:
- Bay WindowsExtended GarageOutdoor KitchenMedia RoomGarage BayExtra BathroomFireplaceGarage Storage

Get a consultation with our New Homes Expert
- See how your home builds wealth
- Plan your home-buying roadmap
- Discover hidden gems
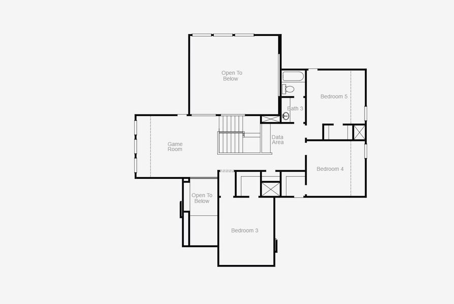
See the full plan layout
Download the floor plan PDF with room dimensions and home design details.

Instant download, no cost

Community details
Cambridge Crossing at Cambridge Crossing
by Coventry Homes, Celina, TX
- 12 homes
- 9 plans
- 2,352 - 4,105 sqft
View Cambridge Crossing details
Want to know more about what's around here?
The Eagle Mountain floor plan is part of Cambridge Crossing, a new home community by Coventry Homes, located in Celina, TX. Visit the Cambridge Crossing community page for full neighborhood insights, including nearby schools, shopping, walk & bike-scores, commuting, air quality & natural hazards.

Available homes in Cambridge Crossing
- Home at address 2853 Holland Ct, Celina, TX 75009

Kenedy
Cambridge Crossing 40'
$549,990
- 5 bd
- 4.5 ba
- 2,994 sqft
2853 Holland Ct, Celina, TX 75009
- Home at address 2713 Paddington Dr, Celina, TX 75009

Lockhart - 60 Homesites
SavingsCambridge Crossing 60'
$789,990
- 5 bd
- 4.5 ba
- 4,105 sqft
2713 Paddington Dr, Celina, TX 75009
- Home at address 2708 Paddington Dr, Celina, TX 75009

Home
Cambridge Crossing 60'
$817,323
- 5 bd
- 4.5 ba
- 4,007 sqft
2708 Paddington Dr, Celina, TX 75009
- Home at address 2821 Paddington Dr, Celina, TX 75009

Lockhart
SavingsCambridge Crossing 60'
$837,888
- 5 bd
- 4.5 ba
- 4,088 sqft
2821 Paddington Dr, Celina, TX 75009
- Home at address 2702 Burnely Ct, Celina, TX 75009

Garza
Cambridge Crossing 60'
$866,318
- 5 bd
- 4.5 ba
- 4,007 sqft
2702 Burnely Ct, Celina, TX 75009
- Home at address 2233 Pinner Ct, Celina, TX 75009

Humble - 60 Homesites
Cambridge Crossing 60'
$890,000
- 5 bd
- 4.5 ba
- 4,033 sqft
2233 Pinner Ct, Celina, TX 75009
More floor plans in Cambridge Crossing

Considering this plan?
Our expert will guide your tour, in-person or virtual
Need more information?
Text or call (888) 545-5198
Financials
Estimated monthly payment
Let us help you find your dream home
How many bedrooms are you looking for?
Similar homes nearby
Recently added communities in this area
Nearby communities in Celina
New homes in nearby cities
More New Homes in Celina, TX
- Jome
- New homes search
- Texas
- Dallas-Fort Worth Area
- Collin County
- Celina
- Cambridge Crossing
- Cambridge Crossing 60'
- 2233 Pinner Ct, Celina, TX 75009




























