








Book your tour. Save an average of $18,473. We'll handle the rest.
We collect exclusive builder offers, book your tours, and support you from start to housewarming.
- Confirmed tours
- Get matched & compare top deals
- Expert help, no pressure
- No added fees
Estimated value based on Jome data, T&C apply
































- 4 bd
- 4 ba
- 2,995 sqft
The Grayson plan in Oakmont by Reece Homes
Visit the community to experience this floor plan
Why tour with Jome?
- No pressure toursTour at your own pace with no sales pressure
- Expert guidanceGet insights from our home buying experts
- Exclusive accessSee homes and deals not available elsewhere
Jome is featured in
Plan description
May also be listed on the Reece Homes website
Information last verified by Jome: Today at 12:00 AM (April 20, 2026)
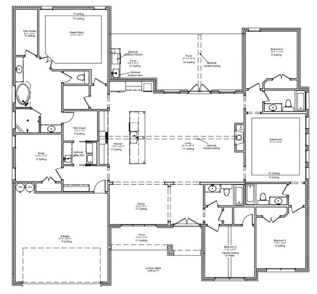
Plan details
- Name:
- The Grayson
- Property type:
- Floor plan
- Community:
- Oakmont
- Builder:
- Reece Homes
- Size:
- 2,995 sqft
- Stories:
- 1
- Beds:
- 4
- Baths:
- 4
- Garage spaces:
- 2
Plan features & finishes
- Flooring:
- Wood Flooring
- Garage/Parking:
- GarageAttached Garage
- Interior Features:
- Ceiling-VaultedWalk-In ClosetPantryGarden Tub
- Kitchen:
- Quartz countertopKitchen Island
- Laundry facilities:
- Utility/Laundry Room
- Property amenities:
- FireplacePorch
- Rooms:
- Primary Bedroom On MainKitchenOffice/StudyDining RoomLiving RoomPrimary Bedroom Downstairs
- Upgrade Options:
- Vaulted Ceiling

Get a consultation with our New Homes Expert
- See how your home builds wealth
- Plan your home-buying roadmap
- Discover hidden gems
See the full plan layout
Download the floor plan PDF with room dimensions and home design details.

Instant download, no cost

Community details
Oakmont
by Reece Homes, Bryan, TX
- 2 homes
- 13 plans
- 2,155 - 2,995 sqft
View Oakmont details
Want to know more about what's around here?
The The Grayson floor plan is part of Oakmont, a new home community by Reece Homes, located in Bryan, TX. Visit the Oakmont community page for full neighborhood insights, including nearby schools, shopping, walk & bike-scores, commuting, air quality & natural hazards.

Available homes in Oakmont
- Home at address 4019 Pacific Crest Wy, Bryan, TX 77802

The Emily
$549,900
- 4 bd
- 3 ba
- 2,410 sqft
4019 Pacific Crest Wy, Bryan, TX 77802
More floor plans in Oakmont

Considering this plan?
Our expert will guide your tour, in-person or virtual
Need more information?
Text or call (888) 545-5198
Financials
Estimated monthly payment
Let us help you find your dream home
How many bedrooms are you looking for?
Similar homes nearby
Recently added communities in this area
Nearby communities in Bryan
New homes in nearby cities
More New Homes in Bryan, TX
- Jome
- New homes search
- Texas
- Brazos County
- Bryan
- Oakmont
- 4246 Harding Wy, Bryan, TX 77802






















