








Book your tour. Save an average of $18,473. We'll handle the rest.
We collect exclusive builder offers, book your tours, and support you from start to housewarming.
- Confirmed tours
- Get matched & compare top deals
- Expert help, no pressure
- No added fees
Estimated value based on Jome data, T&C apply









- 3 bd
- 3 ba
- 3,000 sqft
The Landry plan in Traditions by Reece Homes
Visit the community to experience this floor plan
Why tour with Jome?
- No pressure toursTour at your own pace with no sales pressure
- Expert guidanceGet insights from our home buying experts
- Exclusive accessSee homes and deals not available elsewhere
Jome is featured in
Plan description
May also be listed on the Reece Homes website
Information last verified by Jome: Today at 12:02 AM (April 20, 2026)
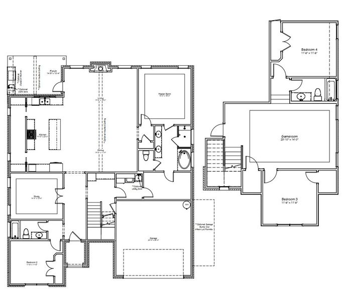
Plan details
- Name:
- The Landry
- Property type:
- Floor plan
- Community:
- Traditions
- Builder:
- Reece Homes
- Size:
- 3,000 sqft
- Stories:
- 2
- Beds from:
- 3
- Beds to:
- 5
- Baths:
- 3
- Garage spaces:
- 2
Plan features & finishes
- Garage/Parking:
- GarageAttached Garage
- Interior Features:
- Walk-In ClosetPantryGarden Tub
- Kitchen:
- Kitchen Island
- Laundry facilities:
- Utility/Laundry Room
- Property amenities:
- Porch
- Rooms:
- Primary Bedroom On MainKitchenGame RoomOffice/StudyDining RoomLiving RoomPrimary Bedroom Downstairs

Get a consultation with our New Homes Expert
- See how your home builds wealth
- Plan your home-buying roadmap
- Discover hidden gems
See the full plan layout
Download the floor plan PDF with room dimensions and home design details.

Instant download, no cost

Community details
Traditions
by Reece Homes, Bryan, TX
- 16 plans
- 2,155 - 3,510 sqft
View Traditions details
Want to know more about what's around here?
The The Landry floor plan is part of Traditions, a new home community by Reece Homes, located in Bryan, TX. Visit the Traditions community page for full neighborhood insights, including nearby schools, shopping, walk & bike-scores, commuting, air quality & natural hazards.

More floor plans in Traditions

Considering this plan?
Our expert will guide your tour, in-person or virtual
Need more information?
Text or call (888) 545-5198
Financials
Let us help you find your dream home
How many bedrooms are you looking for?
Similar homes nearby
Recently added communities in this area
Nearby communities in Bryan
New homes in nearby cities
More New Homes in Bryan, TX
- Jome
- New homes search
- Texas
- Brazos County
- Bryan
- Traditions
- Bryan, TX 77807































