











Book your tour. Save an average of $18,473. We'll handle the rest.
- Confirmed tours
- Get matched & compare top deals
- Expert help, no pressure
- No added fees
Estimated value based on Jome data, T&C apply
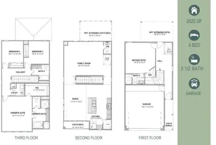
- 4 bd
- 3 ba
- 2,619 sqft
2619W plan in Legacy 50' by Perry Homes
Visit the community to experience this floor plan
Why tour with Jome?
- No pressure toursTour at your own pace with no sales pressure
- Expert guidanceGet insights from our home buying experts
- Exclusive accessSee homes and deals not available elsewhere
Jome is featured in
Plan description
May also be listed on the Perry Homes website
Information last verified by Jome: Today at 6:26 AM (December 5, 2025)
Plan highlights
Plan details
- Name:
- 2619W
- Property status:
- Floor plan
- Lot width (feet):
- 50
- Size:
- 2,619 sqft
- Stories:
- 1
- Beds:
- 4
- Baths:
- 3
- Garage spaces:
- 2
Plan features & finishes
- Garage/Parking:
- GarageAttached Garage
- Interior Features:
- Walk-In ClosetPantry
- Kitchen:
- Kitchen Island
- Laundry facilities:
- Utility/Laundry Room
- Property amenities:
- PatioPorch
- Rooms:
- Primary Bedroom On MainKitchenGame RoomOffice/StudyDining RoomFamily RoomOpen Concept FloorplanPrimary Bedroom Downstairs
- Upgrade Options:
- Freestanding TubCovered PatioExtra Half BathSliding DoorsFireplaceExtended Patio
See the full plan layout
Download the floor plan PDF with room dimensions and home design details.

Instant download, no cost

Community details
Legacy 50' at Legacy
by Perry Homes, League City, TX
- 8 homes
- 22 plans
- 2,127 - 3,241 sqft
View Legacy 50' details
Want to know more about what's around here?
The 2619W floor plan is part of Legacy 50', a new home community by Perry Homes, located in Arcola, TX. Visit the Legacy 50' community page for full neighborhood insights, including nearby schools, shopping, walk & bike-scores, commuting, air quality & natural hazards.

Available homes in Legacy 50'
More floor plans in Legacy 50'

Considering this plan?
Our expert will guide your tour, in-person or virtual
Need more information?
Text or call (888) 486-2818








































