



Book your tour. Save an average of $18,473. We'll handle the rest.
We collect exclusive builder offers, book your tours, and support you from start to housewarming.
- Confirmed tours
- Get matched & compare top deals
- Expert help, no pressure
- No added fees
Estimated value based on Jome data, T&C apply


- 5 bd
- 3.5 ba
- 2,575 sqft
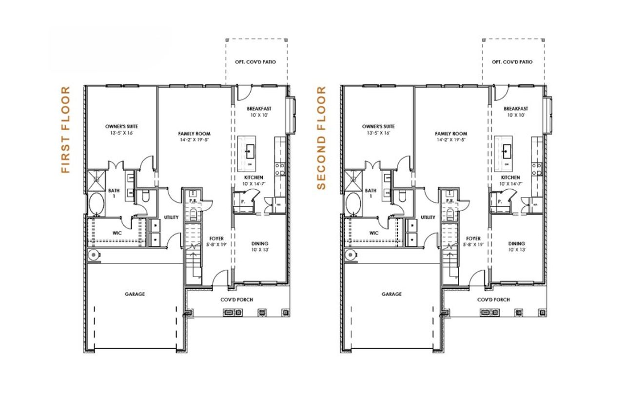
Lennox 2575HC plan in Harmony Cove by Saratoga Homes
Visit the community to experience this floor plan
Why tour with Jome?
- No pressure toursTour at your own pace with no sales pressure
- Expert guidanceGet insights from our home buying experts
- Exclusive accessSee homes and deals not available elsewhere
Jome is featured in
Plan description
May also be listed on the Saratoga Homes website
Information last verified by Jome: Tuesday at 10:19 AM (November 25, 2025)
Plan details
- Name:
- Lennox 2575HC
- Property type:
- Floor plan
- Community:
- Harmony Cove
- Builder:
- Saratoga Homes
- Size:
- 2,575 sqft
- Stories:
- 2
- Beds:
- 5
- Baths:
- 3.5
- Garage spaces:
- 2
Plan features & finishes
- Garage/Parking:
- GarageAttached Garage
- Interior Features:
- Walk-In ClosetFoyerPantry
- Kitchen:
- Kitchen Island
- Laundry facilities:
- Utility/Laundry Room
- Property amenities:
- PatioPorch
- Rooms:
- Primary Bedroom On MainKitchenPowder RoomGame RoomDining RoomFamily RoomBreakfast AreaPrimary Bedroom Downstairs
- Upgrade Options:
- Covered Patio

Get a consultation with our New Homes Expert
- See how your home builds wealth
- Plan your home-buying roadmap
- Discover hidden gems
See the full plan layout
Download the floor plan PDF with room dimensions and home design details.

Instant download, no cost

Community details
Harmony Cove
by Saratoga Homes, Humble, TX
- 2 homes
- 6 plans
- 1,860 - 2,850 sqft
View Harmony Cove details
Want to know more about what's around here?
The Lennox 2575HC floor plan is part of Harmony Cove, a new home community by Saratoga Homes, located in Humble, TX. Visit the Harmony Cove community page for full neighborhood insights, including nearby schools, shopping, walk & bike-scores, commuting, air quality & natural hazards.

Available homes in Harmony Cove
- Home at address 1903 Archwood Dr, Humble, TX 77338

Home
$387,400
- 3 bd
- 3 ba
- 2,454 sqft
1903 Archwood Dr, Humble, TX 77338
- Home at address 1911 Archwood Dr, Humble, TX 77338

Home
$404,900
- 4 bd
- 3.5 ba
- 2,510 sqft
1911 Archwood Dr, Humble, TX 77338
More floor plans in Harmony Cove

Considering this plan?
Our expert will guide your tour, in-person or virtual
Need more information?
Text or call (888) 545-5198
Financials
Estimated monthly payment
Let us help you find your dream home
How many bedrooms are you looking for?



























