






Book your tour. Save an average of $18,473. We'll handle the rest.
We collect exclusive builder offers, book your tours, and support you from start to housewarming.
- Confirmed tours
- Get matched & compare top deals
- Expert help, no pressure
- No added fees
Estimated value based on Jome data, T&C apply



- 4 bd
- 3.5 ba
- 2,407 sqft
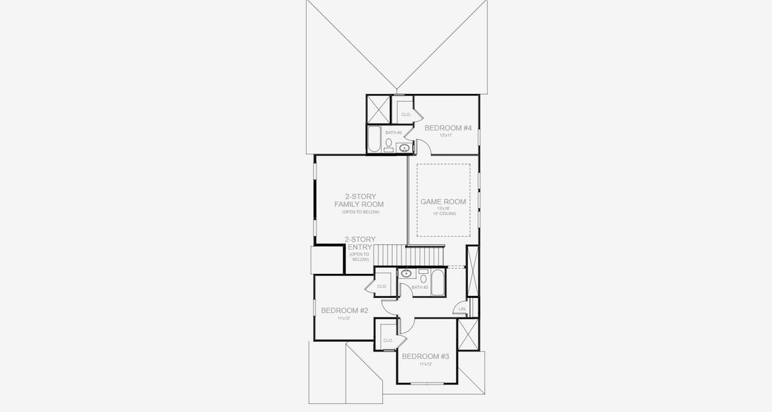
2407E plan in Legacy at Lake Dunlap by Perry Homes
Visit the community to experience this floor plan
Why tour with Jome?
- No pressure toursTour at your own pace with no sales pressure
- Expert guidanceGet insights from our home buying experts
- Exclusive accessSee homes and deals not available elsewhere
Jome is featured in
Plan description
May also be listed on the Perry Homes website
Information last verified by Jome: Today at 6:10 AM (April 15, 2026)
Plan details
- Name:
- 2407E
- Property type:
- Floor plan
- Community:
- Legacy at Lake Dunlap
- Builder:
- Perry Homes
- Collection:
- Legacy At Lake Dunlap 40'
- Lot width (feet):
- 40
- Size:
- 2,407 sqft
- Stories:
- 2
- Beds:
- 4
- Baths:
- 3
- Half baths:
- 1
- Garage spaces:
- 2
Plan features & finishes
- Garage/Parking:
- GarageAttached Garage
- Interior Features:
- Walk-In ClosetPantry
- Kitchen:
- Kitchen Island
- Laundry facilities:
- Utility/Laundry Room
- Property amenities:
- PatioPorch
- Rooms:
- Primary Bedroom On MainKitchenTwo-Story Great RoomGame RoomOffice/StudyDining RoomPrimary Bedroom Downstairs

Get a consultation with our New Homes Expert
- See how your home builds wealth
- Plan your home-buying roadmap
- Discover hidden gems
See the full plan layout
Download the floor plan PDF with room dimensions and home design details.

Instant download, no cost

Community details
Legacy at Lake Dunlap
by Perry Homes, New Braunfels, TX
- 19 homes
- 40 plans
- 1,593 - 3,553 sqft
View Legacy at Lake Dunlap details
Want to know more about what's around here?
The 2407E floor plan is part of Legacy at Lake Dunlap, a new home community by Perry Homes, located in New Braunfels, TX. Visit the Legacy at Lake Dunlap community page for full neighborhood insights, including nearby schools, shopping, walk & bike-scores, commuting, air quality & natural hazards.

Homes built from this plan
Available homes in Legacy at Lake Dunlap
- Home at address 335 Alpine, New Braunfels, TX 78130

Home
$470,000
- 4 bd
- 3 ba
- 2,443 sqft
335 Alpine, New Braunfels, TX 78130
- Home at address 813 Water Lndg, New Braunfels, TX 78130

2370W
Legacy At Lake Dunlap 40'
$478,900
- 4 bd
- 3.5 ba
- 2,370 sqft
813 Water Lndg, New Braunfels, TX 78130
- Home at address 840 Water Lndg, New Braunfels, TX 78130

2370W
Legacy At Lake Dunlap 40'
$484,900
- 4 bd
- 3.5 ba
- 2,370 sqft
840 Water Lndg, New Braunfels, TX 78130
- Home at address 909 Woodland Lks, New Braunfels, TX 78130

2392W
Legacy At Lake Dunlap 40'
$497,900
- 4 bd
- 3.5 ba
- 2,392 sqft
909 Woodland Lks, New Braunfels, TX 78130
- Home at address 816 Water Lndg, New Braunfels, TX 78130

2392W
Legacy At Lake Dunlap 40'
$507,900
- 4 bd
- 3.5 ba
- 2,392 sqft
816 Water Lndg, New Braunfels, TX 78130
- Home at address 829 Woodland Lks, New Braunfels, TX 78130

2585W
Legacy At Lake Dunlap 40'
$539,900
- 5 bd
- 4 ba
- 2,585 sqft
829 Woodland Lks, New Braunfels, TX 78130
More floor plans in Legacy at Lake Dunlap

Considering this plan?
Our expert will guide your tour, in-person or virtual
Need more information?
Text or call (888) 545-5198
Financials
Estimated monthly payment
Let us help you find your dream home
How many bedrooms are you looking for?
Similar homes nearby
Recently added communities in this area
Nearby communities in New Braunfels
New homes in nearby cities
More New Homes in New Braunfels, TX
- Jome
- New homes search
- Texas
- Greater San Antonio
- Guadalupe County
- New Braunfels
- Legacy at Lake Dunlap
- Legacy At Lake Dunlap 40'
- 101 Lake Como Pt, New Braunfels, TX 78130
































