







Book your tour. Save an average of $18,473. We'll handle the rest.
We collect exclusive builder offers, book your tours, and support you from start to housewarming.
- Confirmed tours
- Get matched & compare top deals
- Expert help, no pressure
- No added fees
Estimated value based on Jome data, T&C apply



















































































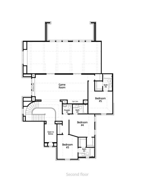
- 5 bd
- 5.5 ba
- 4,425 sqft
Varese plan in Cambridge Crossing by Highland Homes
Visit the community to experience this floor plan
Why tour with Jome?
- No pressure toursTour at your own pace with no sales pressure
- Expert guidanceGet insights from our home buying experts
- Exclusive accessSee homes and deals not available elsewhere
Jome is featured in
Plan description
May also be listed on the Highland Homes website
Information last verified by Jome: Today at 1:47 AM (May 18, 2026)
Plan details
- Name:
- Varese
- Property type:
- Floor plan
- Community:
- Cambridge Crossing
- Builder:
- Highland Homes
- Collection:
- Cambridge Crossing: 74ft. lots
- Lot width (feet):
- 74
- Size:
- 4,425 sqft
- Stories:
- 2
- Beds from:
- 5
- Beds to:
- 6
- Baths from:
- 5
- Baths to:
- 6
- Half baths:
- 3
- Garage spaces:
- 3
Plan features & finishes
- Garage/Parking:
- GarageAttached Garage
- Interior Features:
- Walk-In ClosetPantry
- Kitchen:
- Kitchen Island
- Laundry facilities:
- Utility/Laundry Room
- Property amenities:
- Outdoor Living
- Rooms:
- Primary Bedroom On MainKitchenPowder RoomGame RoomOffice/StudyDining RoomFamily RoomBreakfast AreaPrimary Bedroom Downstairs
- Upgrade Options:
- Extended Outdoor LivingSliding Glass DoorsExtended Primary BedroomExtra BathroomOutdoor FireplaceExtra BedroomFireplacePool Bath

Get a consultation with our New Homes Expert
- See how your home builds wealth
- Plan your home-buying roadmap
- Discover hidden gems
See the full plan layout
Download the floor plan PDF with room dimensions and home design details.

Instant download, no cost

Community details
Cambridge Crossing at Cambridge Crossing
by Highland Homes, Celina, TX
- 22 homes
- 42 plans
- 2,106 - 4,789 sqft
View Cambridge Crossing details
Want to know more about what's around here?
The Varese floor plan is part of Cambridge Crossing, a new home community by Highland Homes, located in Celina, TX. Visit the Cambridge Crossing community page for full neighborhood insights, including nearby schools, shopping, walk & bike-scores, commuting, air quality & natural hazards.

Homes built from this plan
Available homes in Cambridge Crossing
- Home at address 2628 Buckingham Ln, Celina, TX 75009

Fordham
Cambridge Crossing: 50ft. lots
$696,425
- 5 bd
- 5 ba
- 3,043 sqft
2628 Buckingham Ln, Celina, TX 75009
- Home at address 2800 Buckingham Ln, Celina, TX 75009

Kent
Cambridge Crossing: 50ft. lots
$718,140
- 5 bd
- 5.5 ba
- 3,477 sqft
2800 Buckingham Ln, Celina, TX 75009
- Home at address 2720 Buckingham Ln, Celina, TX 75009

Kent
Cambridge Crossing: 50ft. lots
$724,900
- 5 bd
- 5.5 ba
- 3,477 sqft
2720 Buckingham Ln, Celina, TX 75009
- Home at address 2716 Norfolk Dr, Celina, TX 75009

Kent
Cambridge Crossing: 50ft. lots
$724,900
- 5 bd
- 5.5 ba
- 3,468 sqft
2716 Norfolk Dr, Celina, TX 75009
- Home at address 2921 Thatcher St, Celina, TX 75009

224
Cambridge Crossing: 74ft. lots
$1,100,875
- 5 bd
- 5.5 ba
- 4,356 sqft
2921 Thatcher St, Celina, TX 75009
- Home at address 2917 Thatcher St, Celina, TX 75009

Siena
Cambridge Crossing: 74ft. lots
$1,132,800
- 5 bd
- 5.5 ba
- 4,428 sqft
2917 Thatcher St, Celina, TX 75009
More floor plans in Cambridge Crossing

Considering this plan?
Our expert will guide your tour, in-person or virtual
Need more information?
Text or call (888) 545-5198
Financials
Estimated monthly payment
Let us help you find your dream home
How many bedrooms are you looking for?
Similar homes nearby
Recently added communities in this area
Nearby communities in Celina
New homes in nearby cities
More New Homes in Celina, TX
- Jome
- New homes search
- Texas
- Dallas-Fort Worth Area
- Collin County
- Celina
- Cambridge Crossing
- Cambridge Crossing: 74ft. lots
- 2237 Pinner Ct, Celina, TX 75009


























