



Book your tour. Save an average of $18,473. We'll handle the rest.
We collect exclusive builder offers, book your tours, and support you from start to housewarming.
- Confirmed tours
- Get matched & compare top deals
- Expert help, no pressure
- No added fees
Estimated value based on Jome data, T&C apply
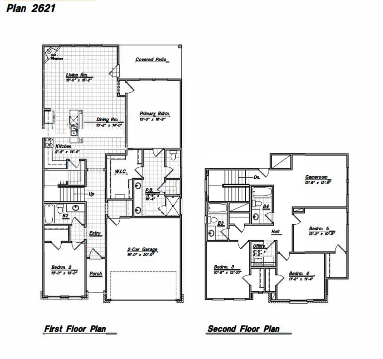
- 5 bd
- 4 ba
- 2,621 sqft
Llano plan in Morgan Meadows by Bellaire Homes
Visit the community to experience this floor plan
Why tour with Jome?
- No pressure toursTour at your own pace with no sales pressure
- Expert guidanceGet insights from our home buying experts
- Exclusive accessSee homes and deals not available elsewhere
Jome is featured in
Plan description
May also be listed on the Bellaire Homes website
Information last verified by Jome: Sunday at 10:50 PM (February 15, 2026)
Plan details
- Name:
- Llano
- Property status:
- Floor plan
- Size:
- 2,621 sqft
- Stories:
- 2
- Beds:
- 5
- Baths:
- 4
- Garage spaces:
- 2
Plan features & finishes
- Garage/Parking:
- GarageAttached Garage
- Interior Features:
- Walk-In Closet
- Laundry facilities:
- Utility/Laundry Room
- Property amenities:
- PatioPorch
- Rooms:
- KitchenGame RoomDining RoomLiving RoomPrimary Bedroom Downstairs

Get a consultation with our New Homes Expert
- See how your home builds wealth
- Plan your home-buying roadmap
- Discover hidden gems
See the full plan layout
Download the floor plan PDF with room dimensions and home design details.

Instant download, no cost

Community details
Morgan Meadows at Morgan Meadow
by Bellaire Homes, San Antonio, TX
- 6 homes
- 7 plans
- 1,773 - 2,621 sqft
View Morgan Meadows details
Want to know more about what's around here?
The Llano floor plan is part of Morgan Meadows, a new home community by Bellaire Homes, located in San Antonio, TX. Visit the Morgan Meadows community page for full neighborhood insights, including nearby schools, shopping, walk & bike-scores, commuting, air quality & natural hazards.

Available homes in Morgan Meadows
- Home at address 6739 Velma Path, San Antonio, TX 78253

Catarina
$359,929
- 3 bd
- 2 ba
- 1,773 sqft
6739 Velma Path, San Antonio, TX 78253
- Home at address 6743 Velma Path, San Antonio, TX 78253

Victoria
$368,870
- 3 bd
- 2.5 ba
- 2,093 sqft
6743 Velma Path, San Antonio, TX 78253
- Home at address 6535 Scooby Acres, San Antonio, TX 78253

Sabinal
$369,990
- 3 bd
- 2.5 ba
- 2,093 sqft
6535 Scooby Acres, San Antonio, TX 78253
- Home at address 6623 Velma Path, San Antonio, TX 78253

Premont
$398,980
- 3 bd
- 3.5 ba
- 2,093 sqft
6623 Velma Path, San Antonio, TX 78253
- Home at address 6538 Scooby Acres, San Antonio, TX 78253

Roma
$399,830
- 4 bd
- 3.5 ba
- 2,450 sqft
6538 Scooby Acres, San Antonio, TX 78253
- Home at address 14302 Mystery Path, San Antonio, TX 78108

Premont
$433,445
- 4 bd
- 3.5 ba
- 2,447 sqft
14302 Mystery Path, San Antonio, TX 78108
More floor plans in Morgan Meadows

Considering this plan?
Our expert will guide your tour, in-person or virtual
Need more information?
Text or call (888) 488-9243
Financials
Estimated monthly payment
Let us help you find your dream home
How many bedrooms are you looking for?
Similar homes nearby
Recently added communities in this area
Nearby communities in San Antonio
New homes in nearby cities
More New Homes in San Antonio, TX
- Jome
- New homes search
- Texas
- Greater San Antonio
- Bexar County
- San Antonio
- Morgan Meadows
- 6746 Velma Path, San Antonio, TX 78253

































