








Book your tour. Save an average of $18,473. We'll handle the rest.
We collect exclusive builder offers, book your tours, and support you from start to housewarming.
- Confirmed tours
- Get matched & compare top deals
- Expert help, no pressure
- No added fees
Estimated value based on Jome data, T&C apply





- 3 bd
- 3 ba
- 2,404 sqft
Emory Peak View plan in Weltner Farms 60’s by View Homes
Visit the community to experience this floor plan
Why tour with Jome?
- No pressure toursTour at your own pace with no sales pressure
- Expert guidanceGet insights from our home buying experts
- Exclusive accessSee homes and deals not available elsewhere
Jome is featured in
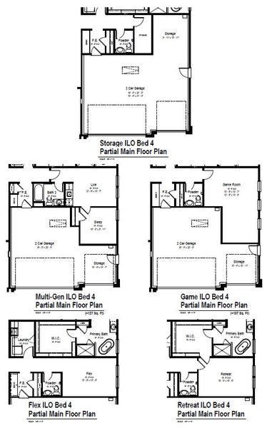
Plan description
May also be listed on the View Homes website
Information last verified by Jome: Today at 4:07 PM (April 18, 2026)
Plan details
- Name:
- Emory Peak View
- Property type:
- Floor plan
- Community:
- Weltner Farms 60’s
- Builder:
- View Homes
- Lot width (feet):
- 60
- Size:
- 2,404 sqft
- Stories:
- 1
- Beds:
- 3
- Baths:
- 3
- Garage spaces:
- 3
Plan features & finishes
- Garage/Parking:
- GarageAttached Garage
- Interior Features:
- Walk-In ClosetFoyerPantry
- Kitchen:
- Kitchen Island
- Laundry facilities:
- Utility/Laundry Room
- Property amenities:
- PatioPorch
- Rooms:
- Flex RoomPrimary Bedroom On MainKitchenDining RoomFamily RoomPrimary Bedroom Downstairs
- Upgrade Options:
- Super ShowerWet Bar

Get a consultation with our New Homes Expert
- See how your home builds wealth
- Plan your home-buying roadmap
- Discover hidden gems
See the full plan layout
Download the floor plan PDF with room dimensions and home design details.

Instant download, no cost

Community details
Weltner Farms 60’s
by View Homes, New Braunfels, TX
- 4 homes
- 5 plans
- 2,404 - 3,111 sqft
View Weltner Farms 60’s details
Want to know more about what's around here?
The Emory Peak View floor plan is part of Weltner Farms 60’s, a new home community by View Homes, located in New Braunfels, TX. Visit the Weltner Farms 60’s community page for full neighborhood insights, including nearby schools, shopping, walk & bike-scores, commuting, air quality & natural hazards.

Homes built from this plan
Available homes in Weltner Farms 60’s
- Home at address 1637 Saddleback Run, New Braunfels, TX 78130

Mariscal Canyon View
$520,990
- 4 bd
- 3.5 ba
- 2,698 sqft
1637 Saddleback Run, New Braunfels, TX 78130
- Home at address 1634 Saddleback Run, New Braunfels, TX 78130

Basin Trail View
$540,450
- 4 bd
- 3.5 ba
- 2,600 sqft
1634 Saddleback Run, New Braunfels, TX 78130
More floor plans in Weltner Farms 60’s

Considering this plan?
Our expert will guide your tour, in-person or virtual
Need more information?
Text or call (888) 545-5198
Financials
Estimated monthly payment
Let us help you find your dream home
How many bedrooms are you looking for?
Similar homes nearby
Recently added communities in this area
Nearby communities in New Braunfels
New homes in nearby cities
More New Homes in New Braunfels, TX
- Jome
- New homes search
- Texas
- Greater San Antonio
- Guadalupe County
- New Braunfels
- Weltner Farms 60’s
- 1607 Barlett Sq, New Braunfels, TX 78130
































