














Book your tour. Save an average of $18,473. We'll handle the rest.
- Confirmed tours
- Get matched & compare top deals
- Expert help, no pressure
- No added fees
Estimated value based on Jome data, T&C apply




























- 4 bd
- 3 ba
- 2,190 sqft
Elgin plan in The Crossvine by Scott Felder Homes
Visit the community to experience this floor plan
Why tour with Jome?
- No pressure toursTour at your own pace with no sales pressure
- Expert guidanceGet insights from our home buying experts
- Exclusive accessSee homes and deals not available elsewhere
Jome is featured in
Plan description
May also be listed on the Scott Felder Homes website
Information last verified by Jome: Yesterday at 1:51 PM (December 6, 2025)
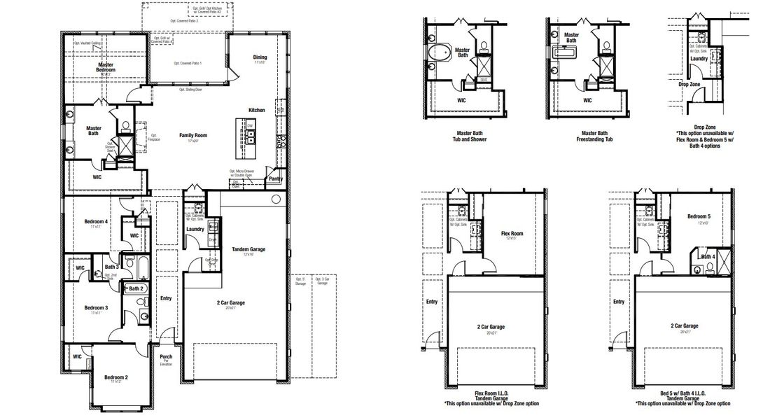
Plan highlights
Plan details
- Name:
- Elgin
- Property status:
- Floor plan
- Size:
- 2,190 sqft
- Stories:
- 1
- Beds from:
- 4
- Beds to:
- 5
- Baths from:
- 3
- Baths to:
- 4
- Garage spaces:
- 3
Plan features & finishes
- Garage/Parking:
- GarageAttached Garage
- Interior Features:
- Walk-In ClosetFoyerPantry
- Laundry facilities:
- Utility/Laundry Room
- Property amenities:
- Porch
- Rooms:
- Primary Bedroom On MainKitchenDining RoomFamily RoomOpen Concept FloorplanPrimary Bedroom Downstairs
See the full plan layout
Download the floor plan PDF with room dimensions and home design details.

Instant download, no cost

Community details
The Crossvine at The Crossvine
by Scott Felder Homes, Schertz, TX
- 6 homes
- 18 plans
- 1,507 - 3,463 sqft
View The Crossvine details
Want to know more about what's around here?
The Elgin floor plan is part of The Crossvine, a new home community by Scott Felder Homes, located in Schertz, TX. Visit the The Crossvine community page for full neighborhood insights, including nearby schools, shopping, walk & bike-scores, commuting, air quality & natural hazards.

Homes built from this plan
Available homes in The Crossvine
More floor plans in The Crossvine

Considering this plan?
Our expert will guide your tour, in-person or virtual
Need more information?
Text or call (888) 486-2818
Financials
Estimated monthly payment
Similar homes nearby
Recently added communities in this area
Nearby communities in Schertz
New homes in nearby cities
More New Homes in Schertz, TX
- Home
- New homes
- Texas
- Greater San Antonio
- Bexar County
- Schertz
- The Crossvine
- 12372 Lost Petal, Schertz, TX 78154











































