








Book your tour. Save an average of $18,473. We'll handle the rest.
We collect exclusive builder offers, book your tours, and support you from start to housewarming.
- Confirmed tours
- Get matched & compare top deals
- Expert help, no pressure
- No added fees
Estimated value based on Jome data, T&C apply











- 5 bd
- 5.5 ba
- 4,587 sqft
Dimmitt plan in Valencia by Coventry Homes
Visit the community to experience this floor plan
Why tour with Jome?
- No pressure toursTour at your own pace with no sales pressure
- Expert guidanceGet insights from our home buying experts
- Exclusive accessSee homes and deals not available elsewhere
Jome is featured in
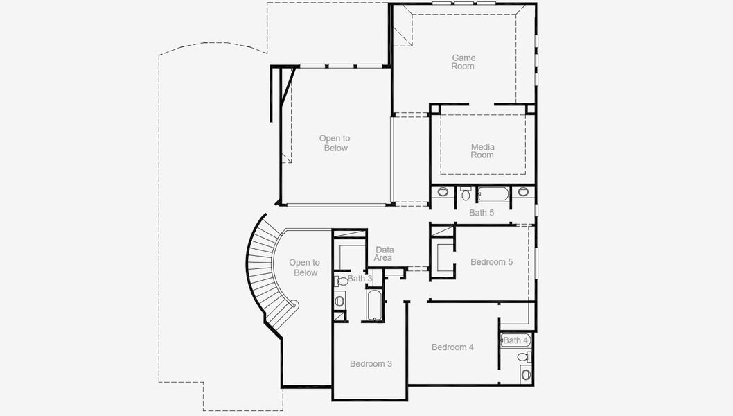
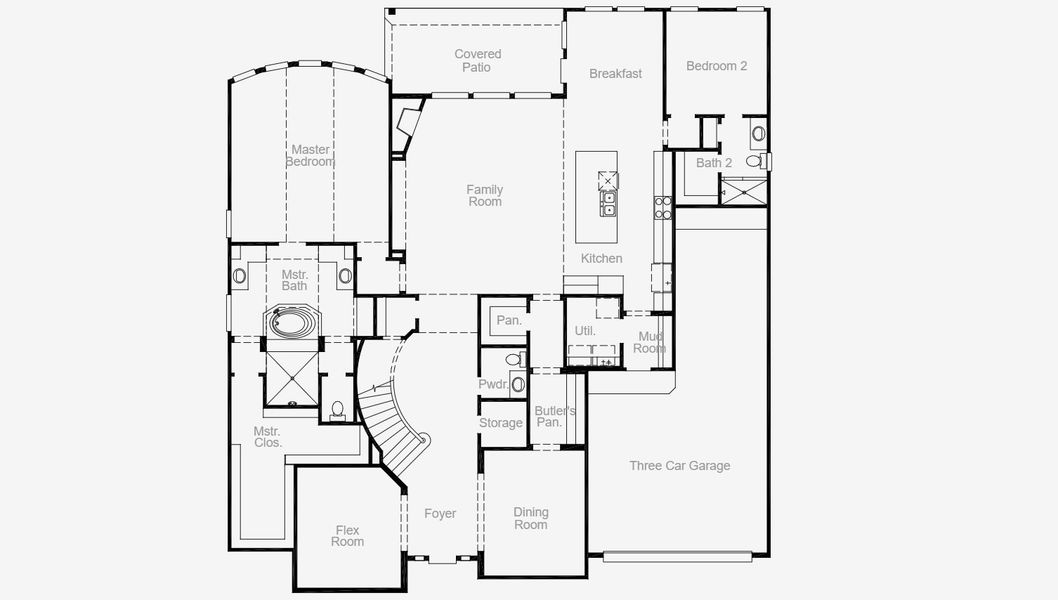
Plan description
May also be listed on the Coventry Homes website
Information last verified by Jome: Today at 2:34 AM (April 22, 2026)
Plan details
- Name:
- Dimmitt
- Property type:
- Floor plan
- Community:
- Valencia
- Builder:
- Coventry Homes
- Collection:
- Valencia 70'
- Lot width (feet):
- 70
- Size:
- 4,587 sqft
- Stories:
- 2
- Beds:
- 5
- Baths:
- 5
- Half baths:
- 1
- Garage spaces:
- 3
Plan features & finishes
- Garage/Parking:
- GarageAttached Garage
- Interior Features:
- Walk-In ClosetFoyerPantry
- Laundry facilities:
- Utility/Laundry Room
- Property amenities:
- PatioPorch
- Rooms:
- Flex RoomPrimary Bedroom On MainKitchenGame RoomMedia RoomDining RoomFamily RoomBreakfast AreaPrimary Bedroom Downstairs
- Upgrade Options:
- BalconyExtended GarageOffice/StudyOutdoor KitchenMedia RoomGarage BayExtra BathroomOutdoor FireplaceSliding DoorsDouble DoorsExtra BedroomExtended Patio

Get a consultation with our New Homes Expert
- See how your home builds wealth
- Plan your home-buying roadmap
- Discover hidden gems
See the full plan layout
Download the floor plan PDF with room dimensions and home design details.

Instant download, no cost

Community details
Valencia at Valencia
by Coventry Homes, Manvel, TX
- 24 homes
- 25 plans
- 2,150 - 4,587 sqft
View Valencia details
Want to know more about what's around here?
The Dimmitt floor plan is part of Valencia, a new home community by Coventry Homes, located in Manvel, TX. Visit the Valencia community page for full neighborhood insights, including nearby schools, shopping, walk & bike-scores, commuting, air quality & natural hazards.

Available homes in Valencia
- Home at address 6422 Seville St, Manvel, TX 77578

Palmhurst
Valencia 70'
$729,990
- 5 bd
- 4.5 ba
- 4,090 sqft
6422 Seville St, Manvel, TX 77578
- Home at address 6422 Seville, Manvel, TX 77578

Home
$729,990
- 5 bd
- 4.5 ba
- 4,090 sqft
6422 Seville, Manvel, TX 77578
- Home at address 6418 Seville St, Manvel, TX 77578

Marfa
Valencia 70'
$734,990
- 5 bd
- 4.5 ba
- 4,264 sqft
6418 Seville St, Manvel, TX 77578
- Home at address 6418 Seville, Manvel, TX 77578

Home
$734,990
- 5 bd
- 4.5 ba
- 4,264 sqft
6418 Seville, Manvel, TX 77578
- Home at address 6414 Seville St, Manvel, TX 77578

Ravenna
Valencia 70'
$769,990
- 5 bd
- 4.5 ba
- 4,520 sqft
6414 Seville St, Manvel, TX 77578
- Home at address 19146 Apple Fritter, Manvel, TX 77578

Home
$1,070,468
- 5 bd
- 4.5 ba
- 4,530 sqft
19146 Apple Fritter, Manvel, TX 77578
More floor plans in Valencia

Considering this plan?
Our expert will guide your tour, in-person or virtual
Need more information?
Text or call (888) 545-5198
Financials
Estimated monthly payment
Let us help you find your dream home
How many bedrooms are you looking for?
Similar homes nearby
Recently added communities in this area
Nearby communities in Manvel
New homes in nearby cities
More New Homes in Manvel, TX
- Jome
- New homes search
- Texas
- Greater Houston Area
- Brazoria County
- Manvel
- Valencia
- Valencia 70'
- 6419 Sparkling Citrus St, Manvel, TX 77578




























