














Book your tour. Save an average of $18,473. We'll handle the rest.
We collect exclusive builder offers, book your tours, and support you from start to housewarming.
- Confirmed tours
- Get matched & compare top deals
- Expert help, no pressure
- No added fees
Estimated value based on Jome data, T&C apply

























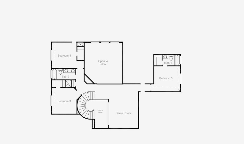
- 5 bd
- 4.5 ba
- 3,824 sqft
Palmhurst plan in Dunham Pointe by Coventry Homes
Visit the community to experience this floor plan
Why tour with Jome?
- No pressure toursTour at your own pace with no sales pressure
- Expert guidanceGet insights from our home buying experts
- Exclusive accessSee homes and deals not available elsewhere
Jome is featured in
Plan description
May also be listed on the Coventry Homes website
Information last verified by Jome: Today at 2:16 AM (February 28, 2026)
Plan details
- Name:
- Palmhurst
- Property status:
- Floor plan
- Collection:
- Dunham Pointe 70'
- Lot width (feet):
- 70
- Size:
- 3,824 sqft
- Stories:
- 2
- Beds:
- 5
- Baths:
- 4
- Half baths:
- 1
- Garage spaces:
- 3
Plan features & finishes
- Garage/Parking:
- GarageAttached Garage
- Interior Features:
- Walk-In ClosetFoyerPantry
- Laundry facilities:
- Utility/Laundry Room
- Property amenities:
- PatioPorch
- Rooms:
- Primary Bedroom On MainKitchenGame RoomOffice/StudyDining RoomFamily RoomBreakfast AreaOpen Concept FloorplanPrimary Bedroom Downstairs
- Upgrade Options:
- Extended GarageOptional Multi-Gen SuiteOutdoor KitchenMedia RoomGarage BayExtended Patio

Get a consultation with our New Homes Expert
- See how your home builds wealth
- Plan your home-buying roadmap
- Discover hidden gems
See the full plan layout
Download the floor plan PDF with room dimensions and home design details.

Instant download, no cost

Community details
Dunham Pointe at Dunham Pointe
by Coventry Homes, Cypress, TX
- 8 homes
- 16 plans
- 2,049 - 4,784 sqft
View Dunham Pointe details
Want to know more about what's around here?
The Palmhurst floor plan is part of Dunham Pointe, a new home community by Coventry Homes, located in Cypress, TX. Visit the Dunham Pointe community page for full neighborhood insights, including nearby schools, shopping, walk & bike-scores, commuting, air quality & natural hazards.

Available homes in Dunham Pointe
- Home at address 14111 Casa Campagna Wy, Cypress, TX 77433

Dimmitt
Dunham Pointe 70'
$924,990
- 5 bd
- 5.5 ba
- 4,553 sqft
14111 Casa Campagna Wy, Cypress, TX 77433
- Home at address 19922 Prairie Spider Wy, Cypress, TX 77433

Pearland (4180-HL-60)
Dunham Pointe 70'
$924,990
- 5 bd
- 4.5 ba
- 4,295 sqft
19922 Prairie Spider Wy, Cypress, TX 77433
- Home at address 14222 La Piazza Wy, Cypress, TX 77433

Madisonville
Dunham Pointe 70'
$949,990
- 5 bd
- 4.5 ba
- 4,405 sqft
14222 La Piazza Wy, Cypress, TX 77433
More floor plans in Dunham Pointe

Considering this plan?
Our expert will guide your tour, in-person or virtual
Need more information?
Text or call (888) 488-9243
Financials
Estimated monthly payment
Let us help you find your dream home
How many bedrooms are you looking for?
Similar homes nearby
Recently added communities in this area
Nearby communities in Cypress
New homes in nearby cities
More New Homes in Cypress, TX
- Jome
- New homes search
- Texas
- Greater Houston Area
- Harris County
- Cypress
- Dunham Pointe
- Dunham Pointe 70'
- 20411 Via Casa Laura Dr, Cypress, TX 77433


























