














Book your tour. Save an average of $18,473. We'll handle the rest.
- Confirmed tours
- Get matched & compare top deals
- Expert help, no pressure
- No added fees
Estimated value based on Jome data, T&C apply












- 3 bd
- 2 ba
- 1,170 sqft
The Magnolia plan in Creekside by Bigelow Homes
Visit the community to experience this floor plan
Why tour with Jome?
- No pressure toursTour at your own pace with no sales pressure
- Expert guidanceGet insights from our home buying experts
- Exclusive accessSee homes and deals not available elsewhere
Jome is featured in
Plan description
May also be listed on the Bigelow Homes website
Information last verified by Jome: Wednesday at 9:03 AM (December 10, 2025)
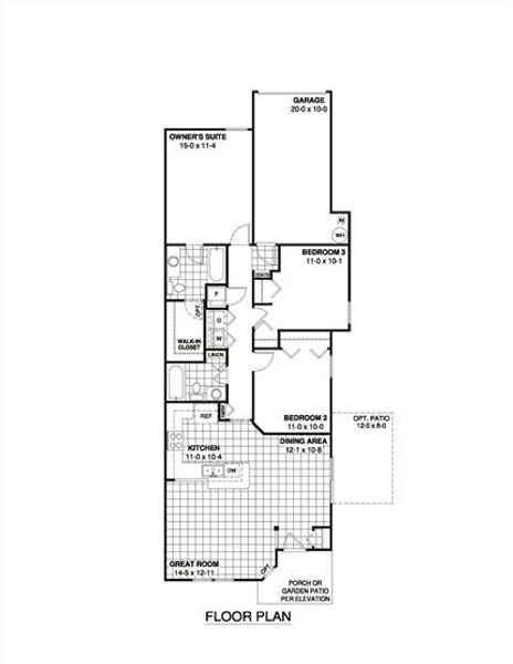
Plan details
- Name:
- The Magnolia
- Property status:
- Floor plan
- Size:
- 1,170 sqft
- Stories:
- 1
- Beds:
- 3
- Baths:
- 2
- Garage spaces:
- 1
Plan features & finishes
- Garage/Parking:
- Garage
- Interior Features:
- Walk-In ClosetPantry
- Laundry facilities:
- Utility/Laundry Room
- Property amenities:
- Porch
- Rooms:
- Primary Bedroom On MainKitchenDining RoomFamily RoomPrimary Bedroom Downstairs
- Upgrade Options:
- Garage Bay

Get a consultation with our New Homes Expert
- See how your home builds wealth
- Plan your home-buying roadmap
- Discover hidden gems
See the full plan layout
Download the floor plan PDF with room dimensions and home design details.

Instant download, no cost

Community details
Creekside
by Bigelow Homes, Kyle, TX
- 18 plans
- 440 - 3,050 sqft
View Creekside details
Want to know more about what's around here?
The The Magnolia floor plan is part of Creekside, a new home community by Bigelow Homes, located in Kyle, TX. Visit the Creekside community page for full neighborhood insights, including nearby schools, shopping, walk & bike-scores, commuting, air quality & natural hazards.

More floor plans in Creekside

Considering this plan?
Our expert will guide your tour, in-person or virtual
Need more information?
Text or call (888) 486-2818
Financials
Estimated monthly payment
Let us help you find your dream home
How many bedrooms are you looking for?
Similar homes nearby
Recently added communities in this area
Nearby communities in Kyle
New homes in nearby cities
More New Homes in Kyle, TX
- Jome
- New homes search
- Texas
- Greater Austin Area
- Hays County
- Kyle
- Creekside
- 332 Ferrule Dr, Kyle, TX 78640

































