














Book your tour. Save an average of $18,473. We'll handle the rest.
- Confirmed tours
- Get matched & compare top deals
- Expert help, no pressure
- No added fees
Estimated value based on Jome data, T&C apply


- 4 bd
- 3.5 ba
- 3,405 sqft
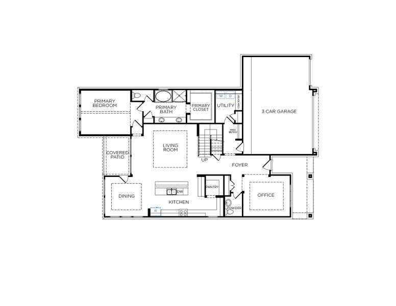
Tuscany plan in Lago Mar 50' & 55' by Tricoast Homes
Visit the community to experience this floor plan
Why tour with Jome?
- No pressure toursTour at your own pace with no sales pressure
- Expert guidanceGet insights from our home buying experts
- Exclusive accessSee homes and deals not available elsewhere
Jome is featured in
Plan description
May also be listed on the Tricoast Homes website
Information last verified by Jome: Today at 12:02 AM (January 14, 2026)
Plan details
- Name:
- Tuscany
- Property status:
- Floor plan
- Size:
- 3,405 sqft
- Stories:
- 2
- Beds:
- 4
- Baths:
- 3
- Half baths:
- 1
- Garage spaces:
- 2
Plan features & finishes
- Garage/Parking:
- GarageAttached Garage
- Interior Features:
- Walk-In ClosetFoyerPantry
- Kitchen:
- Kitchen Island
- Laundry facilities:
- Utility/Laundry Room
- Property amenities:
- Patio
- Rooms:
- Primary Bedroom On MainKitchenGame RoomMedia RoomOffice/StudyDining RoomLiving RoomPrimary Bedroom Downstairs
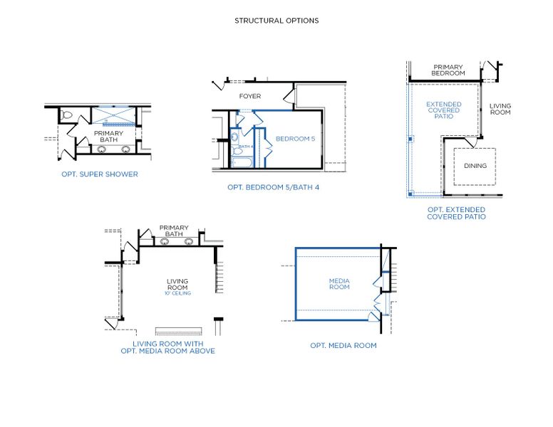
- Upgrade Options:
- Extended GarageSliding Glass DoorsFrench DoorMedia RoomGarage BayExtra BathroomExtra BedroomSuper ShowerFireplaceExtended Patio

Get a consultation with our New Homes Expert
- See how your home builds wealth
- Plan your home-buying roadmap
- Discover hidden gems
See the full plan layout
Download the floor plan PDF with room dimensions and home design details.

Instant download, no cost

Community details
Lago Mar 50' & 55' at Lago Mar
by Tricoast Homes, Texas City, TX
- 5 homes
- 7 plans
- 1,863 - 3,405 sqft
View Lago Mar 50' & 55' details
Want to know more about what's around here?
The Tuscany floor plan is part of Lago Mar 50' & 55', a new home community by Tricoast Homes, located in Texas City, TX. Visit the Lago Mar 50' & 55' community page for full neighborhood insights, including nearby schools, shopping, walk & bike-scores, commuting, air quality & natural hazards.

Available homes in Lago Mar 50' & 55'
- Home at address 2512 Seneca Lk, Texas City, TX 77568

Camden
$433,990
- 4 bd
- 3 ba
- 2,246 sqft
2512 Seneca Lk, Texas City, TX 77568
- Home at address 2512 Seneca Lake Dr, Texas City, TX 77568

Camden
$433,990
- 4 bd
- 3 ba
- 2,246 sqft
2512 Seneca Lake Dr, Texas City, TX 77568
- Home at address 2808 Gran Castillo Dr, Texas City, TX 77568

Monterey
$489,990
- 4 bd
- 3.5 ba
- 3,158 sqft
2808 Gran Castillo Dr, Texas City, TX 77568
More floor plans in Lago Mar 50' & 55'

Considering this plan?
Our expert will guide your tour, in-person or virtual
Need more information?
Text or call (888) 486-2818
Financials
Estimated monthly payment
Let us help you find your dream home
How many bedrooms are you looking for?
Similar homes nearby
Recently added communities in this area
Nearby communities in Texas City
New homes in nearby cities
More New Homes in Texas City, TX
- Jome
- New homes search
- Texas
- Greater Houston Area
- Galveston County
- Texas City
- Lago Mar 50' & 55'
- 13301 Golden Isle Dr, Texas City, TX 77568




























