











Book your tour. Save an average of $18,473. We'll handle the rest.
We collect exclusive builder offers, book your tours, and support you from start to housewarming.
- Confirmed tours
- Get matched & compare top deals
- Expert help, no pressure
- No added fees
Estimated value based on Jome data, T&C apply
- 4 bd
- 3 ba
- 2,661 sqft
Sawgrass plan in Canterra Creek 60' by Tricoast Homes
Visit the community to experience this floor plan
Why tour with Jome?
- No pressure toursTour at your own pace with no sales pressure
- Expert guidanceGet insights from our home buying experts
- Exclusive accessSee homes and deals not available elsewhere
Jome is featured in
Plan description
May also be listed on the Tricoast Homes website
Information last verified by Jome: Today at 12:02 AM (March 2, 2026)
Book your tour. Save an average of $18,473. We'll handle the rest.
We collect exclusive builder offers, book your tours, and support you from start to housewarming.
- Confirmed tours
- Get matched & compare top deals
- Expert help, no pressure
- No added fees
Estimated value based on Jome data, T&C apply
Plan details
- Name:
- Sawgrass
- Property status:
- Floor plan
- Lot width (feet):
- 60
- Size:
- 2,661 sqft
- Stories:
- 1
- Beds:
- 4
- Baths:
- 3
- Garage spaces:
- 2
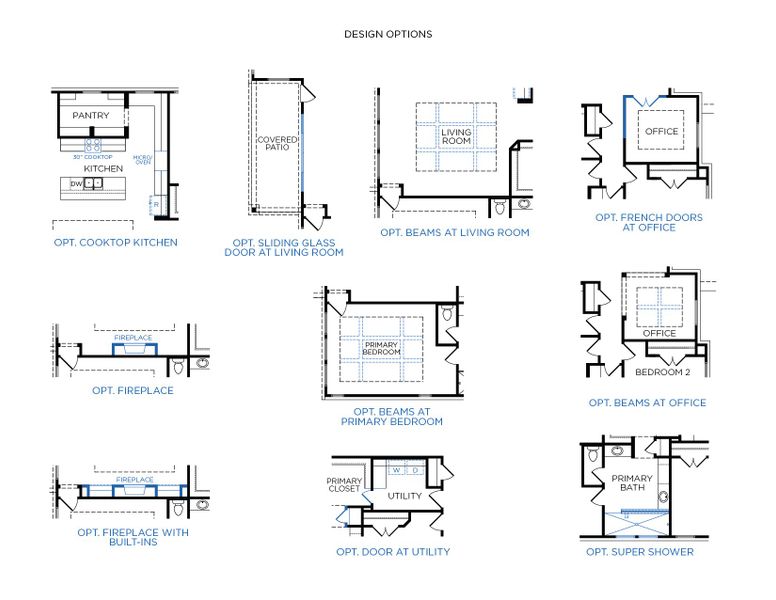
Plan features & finishes
- Garage/Parking:
- GarageAttached Garage
- Interior Features:
- Walk-In ClosetFoyerPantry
- Kitchen:
- Kitchen Island
- Laundry facilities:
- Utility/Laundry Room
- Property amenities:
- Covered Outdoor LivingPatio
- Rooms:
- Primary Bedroom On MainKitchenOffice/StudyDining RoomLiving RoomOpen Concept FloorplanPrimary Bedroom Downstairs

Get a consultation with our New Homes Expert
- See how your home builds wealth
- Plan your home-buying roadmap
- Discover hidden gems

Community details
Canterra Creek 60' at Canterra Creek
by Tricoast Homes, Rosharon, TX
- 7 homes
- 6 plans
- 2,661 - 3,488 sqft
View Canterra Creek 60' details
Want to know more about what's around here?
The Sawgrass floor plan is part of Canterra Creek 60', a new home community by Tricoast Homes, located in Iowa Colony, TX. Visit the Canterra Creek 60' community page for full neighborhood insights, including nearby schools, shopping, walk & bike-scores, commuting, air quality & natural hazards.

Available homes in Canterra Creek 60'
- Home at address 2822 Sapphire Hills Dr, Rosharon, TX 77583

Monterey
$473,990
- 4 bd
- 3.5 ba
- 3,154 sqft
2822 Sapphire Hills Dr, Rosharon, TX 77583
- Home at address 2727 Ametrine Dr, Rosharon, TX 77583

Florence
$481,928
- 4 bd
- 3.5 ba
- 2,902 sqft
2727 Ametrine Dr, Rosharon, TX 77583
- Home at address 2806 Ametrine Dr, Rosharon, TX 77583

Augusta
$499,990
- 4 bd
- 3 ba
- 3,026 sqft
2806 Ametrine Dr, Rosharon, TX 77583
- Home at address 2718 Jasper Oaks Dr, Rosharon, TX 77583

Tuscany
$510,158
- 4 bd
- 3.5 ba
- 3,405 sqft
2718 Jasper Oaks Dr, Rosharon, TX 77583
- Home at address 2830 Ametrine Dr, Rosharon, TX 77583

Monterey
$512,990
- 4 bd
- 3.5 ba
- 3,174 sqft
2830 Ametrine Dr, Rosharon, TX 77583
- Home at address 2827 Obsidian Dr, Rosharon, TX 77583

Pinehurst
$530,990
- 4 bd
- 4 ba
- 3,488 sqft
2827 Obsidian Dr, Rosharon, TX 77583
More floor plans in Canterra Creek 60'

Considering this plan?
Our expert will guide your tour, in-person or virtual
Need more information?
Text or call (888) 488-9243
Financials
Estimated monthly payment
Let us help you find your dream home
How many bedrooms are you looking for?
Similar homes nearby
Recently added communities in this area
Nearby communities in Iowa Colony
New homes in nearby cities
More New Homes in Iowa Colony, TX
- Jome
- New homes search
- Texas
- Greater Houston Area
- Brazoria County
- Iowa Colony
- Canterra Creek 60'
- 8742 Jade Hill Dr, Iowa Colony, TX 77583
































