

















- 3 bd
- 2 ba
- 1,974 sqft
Oxford plan in Sunterra 50s by Tricoast Homes
New Homes for Sale Near 27102 Talora Lake Dr, Katy, TX 77493
About this Plan
May also be listed on the Tricoast Homes website
Information last verified by Jome: Thursday at 12:04 AM (January 22, 2026)
Plan details
- Name:
- Oxford
- Property type:
- Sold
- Community:
- Sunterra 50s
- Builder:
- Tricoast Homes
- Size:
- 1,974 sqft
- Stories:
- 1
- Beds:
- 3
- Baths:
- 2
- Garage spaces:
- 2
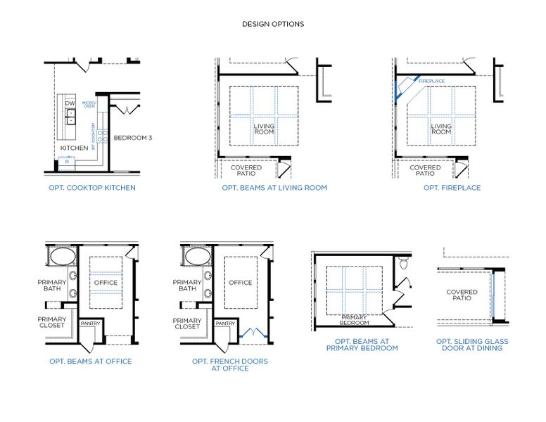
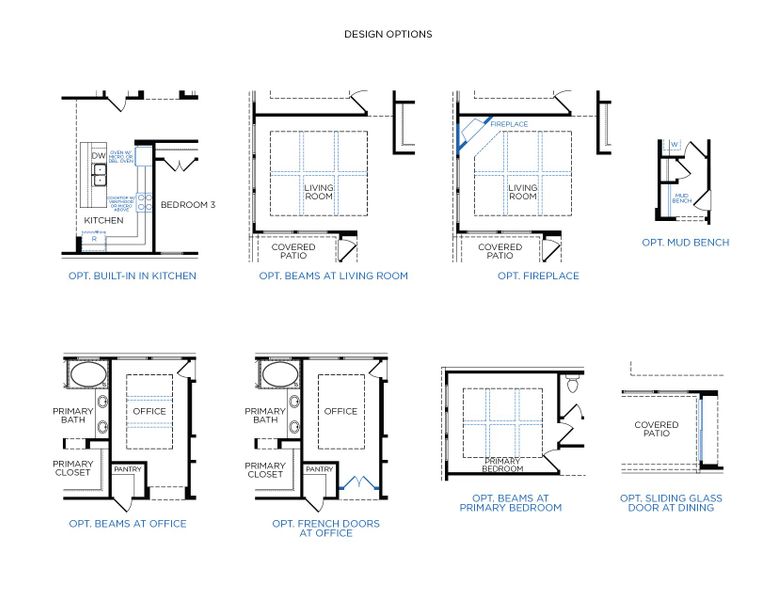
Plan features & finishes
- Garage/Parking:
- GarageAttached Garage
- Interior Features:
- Walk-In Closet
- Laundry facilities:
- Laundry Facilities On Main LevelUtility/Laundry Room
- Property amenities:
- PatioPorch
- Rooms:
- Primary Bedroom On MainKitchenGame RoomOffice/StudyDining RoomFamily RoomLiving RoomOpen Concept FloorplanPrimary Bedroom Downstairs

Community details
Sunterra 50s at Sunterra
by Tricoast Homes, Katy, TX
- 7 homes
- 6 plans
- 2,031 - 3,405 sqft
View Sunterra 50s details
Want to know more about what's around here?
The Oxford floor plan is part of Sunterra 50s, a new home community by Tricoast Homes, located in Katy, TX. Visit the Sunterra 50s community page for full neighborhood insights, including nearby schools, shopping, walk & bike-scores, commuting, air quality & natural hazards.

Homes built from this plan
Available homes in Sunterra 50s
- Home at address 2991 Tantara, Katy, TX 77493

$351,990
Move-in ready- 3 bd
- 2 ba
- 2,031 sqft
2991 Tantara, Katy, TX 77493
- Home at address 2987 Tantara Dr, Katy, TX 77493

$504,829
Under construction- 4 bd
- 3.5 ba
- 2,845 sqft
2987 Tantara Dr, Katy, TX 77493
- Home at address 2916 Apple Rose, Katy, TX 77493

$524,990
Move-in ready- 4 bd
- 3.5 ba
- 3,154 sqft
2916 Apple Rose, Katy, TX 77493
- Home at address 2912 Golden Dust Dr, Katy, TX 77493

$529,923
Move-in ready- 4 bd
- 3.5 ba
- 2,902 sqft
2912 Golden Dust Dr, Katy, TX 77493
- Home at address 2904 Apple Rose, Katy, TX 77493

$549,990
Move-in ready- 4 bd
- 3.5 ba
- 3,405 sqft
2904 Apple Rose, Katy, TX 77493
- Home at address 2920 Aurora Oaks, Katy, TX 77493

Contact for price
Under construction- 4 bd
- 3.5 ba
- 3,405 sqft
2920 Aurora Oaks, Katy, TX 77493
More floor plans in Sunterra 50s
Financials
Nearby communities in Katy
Homes in Katy by Tricoast Homes
Recently added communities in this area
Other Builders in Katy, TX
Nearby sold homes
New homes in nearby cities
More New Homes in Katy, TX
- Jome
- New homes search
- Texas
- Greater Houston Area
- Harris County
- Katy
- Sunterra 50s
- 27102 Talora Lake Dr, Katy, TX 77493







































































