





Book your tour. Save an average of $18,473. We'll handle the rest.
We collect exclusive builder offers, book your tours, and support you from start to housewarming.
- Confirmed tours
- Get matched & compare top deals
- Expert help, no pressure
- No added fees
Estimated value based on Jome data, T&C apply
- 4 bd
- 3.5 ba
- 3,849 sqft
Wiergate plan in Valencia by Coventry Homes
Visit the community to experience this floor plan
Why tour with Jome?
- No pressure toursTour at your own pace with no sales pressure
- Expert guidanceGet insights from our home buying experts
- Exclusive accessSee homes and deals not available elsewhere
Jome is featured in
Plan description
May also be listed on the Coventry Homes website
Information last verified by Jome: Today at 2:16 AM (March 8, 2026)
Plan details
- Name:
- Wiergate
- Property type:
- Floor plan
- Community:
- Valencia
- Builder:
- Coventry Homes
- Collection:
- Valencia 60'
- Lot width (feet):
- 60
- Size:
- 3,849 sqft
- Stories:
- 2
- Beds:
- 4
- Baths:
- 3
- Half baths:
- 1
- Garage spaces:
- 3
Plan features & finishes
- Garage/Parking:
- GarageAttached Garage
- Interior Features:
- Walk-In ClosetFoyerPantry
- Laundry facilities:
- Utility/Laundry Room
- Property amenities:
- PatioPorch
- Rooms:
- Primary Bedroom On MainKitchenGame RoomMedia RoomOffice/StudyDining RoomFamily RoomBreakfast AreaPrimary Bedroom Downstairs
- Upgrade Options:
- Extended GarageOptional Multi-Gen SuitePowder RoomOutdoor KitchenAlternate KitchenGarage BayExtra BathroomExtra BedroomFireplaceExtended Patio

Get a consultation with our New Homes Expert
- See how your home builds wealth
- Plan your home-buying roadmap
- Discover hidden gems
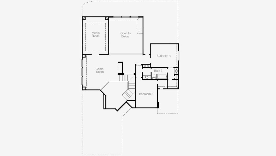
See the full plan layout
Download the floor plan PDF with room dimensions and home design details.

Instant download, no cost

Community details
Valencia at Valencia
by Coventry Homes, Manvel, TX
- 14 homes
- 25 plans
- 2,150 - 4,587 sqft
View Valencia details
Want to know more about what's around here?
The Wiergate floor plan is part of Valencia, a new home community by Coventry Homes, located in Manvel, TX. Visit the Valencia community page for full neighborhood insights, including nearby schools, shopping, walk & bike-scores, commuting, air quality & natural hazards.

Homes built from this plan
Available homes in Valencia
- Home at address 18626 Citrange Bnd, Manvel, TX 77578

Wimberley
Valencia 50'
$442,547
- 4 bd
- 3 ba
- 2,809 sqft
18626 Citrange Bnd, Manvel, TX 77578
- Home at address 18727 Citrange Bnd, Manvel, TX 77578

Justin
Valencia 50'
$500,229
- 4 bd
- 3 ba
- 2,637 sqft
18727 Citrange Bnd, Manvel, TX 77578
- Home at address 18614 Citrange Bnd, Manvel, TX 77578

Ingleside
Valencia 50'
$504,990
- 4 bd
- 3 ba
- 2,952 sqft
18614 Citrange Bnd, Manvel, TX 77578
- Home at address 18714 Windy Orchard St, Manvel, TX 77578

Justin
Valencia 50'
$529,082
- 4 bd
- 3 ba
- 2,707 sqft
18714 Windy Orchard St, Manvel, TX 77578
- Home at address 18607 Citrange Bnd, Manvel, TX 77578

Colleyville
Valencia 50'
$563,264
- 4 bd
- 3 ba
- 2,805 sqft
18607 Citrange Bnd, Manvel, TX 77578
- Home at address 18735 Citrange Bnd, Manvel, TX 77578

Avery
Valencia 50'
$564,257
- 4 bd
- 3 ba
- 2,809 sqft
18735 Citrange Bnd, Manvel, TX 77578
More floor plans in Valencia

Considering this plan?
Our expert will guide your tour, in-person or virtual
Need more information?
Text or call (888) 488-9243
Financials
Estimated monthly payment
Let us help you find your dream home
How many bedrooms are you looking for?
Similar homes nearby
Recently added communities in this area
Nearby communities in Manvel
New homes in nearby cities
More New Homes in Manvel, TX
- Jome
- New homes search
- Texas
- Greater Houston Area
- Brazoria County
- Manvel
- Valencia
- Valencia 60'
- 6419 Sparkling Citrus St, Manvel, TX 77578

































