








Book your tour. Save an average of $18,473. We'll handle the rest.
We collect exclusive builder offers, book your tours, and support you from start to housewarming.
- Confirmed tours
- Get matched & compare top deals
- Expert help, no pressure
- No added fees
Estimated value based on Jome data, T&C apply












- 4 bd
- 3 ba
- 2,430 sqft
Cypress plan in Arbordale Reserve by Eastwood Homes
Visit the community to experience this floor plan
Why tour with Jome?
- No pressure toursTour at your own pace with no sales pressure
- Expert guidanceGet insights from our home buying experts
- Exclusive accessSee homes and deals not available elsewhere
Jome is featured in
Plan description
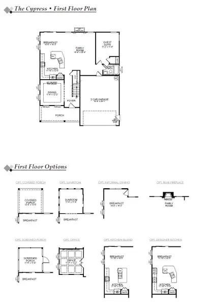
The Cypress is a two-story, four-bedroom, three-bath home with a formal dining room, a first-floor guest suite with a full bath, and a kitchen with an island and pantry. The second floor features the primary bedroom, two additional bedrooms, a hall bath, a convenient upstairs laundry room, and an oversized loft area.
Options available to personalize your home include a sunroom, screen porch, or covered porch, a first-floor study with French doors, an expanded informal dining area, a sitting room off the primary bedroom, an additional bedroom upstairs, and an optional third-floor with bonus room or bedroom and full bath.
May also be listed on the Eastwood Homes website
Information last verified by Jome: Today at 7:36 AM (April 11, 2026)
Book your tour. Save an average of $18,473. We'll handle the rest.
We collect exclusive builder offers, book your tours, and support you from start to housewarming.
- Confirmed tours
- Get matched & compare top deals
- Expert help, no pressure
- No added fees
Estimated value based on Jome data, T&C apply
Plan details
- Name:
- Cypress
- Property type:
- Floor plan
- Community:
- Arbordale Reserve
- Builder:
- Eastwood Homes
- Size:
- 2,430 sqft
- Stories:
- 2
- Beds:
- 4
- Baths:
- 3
- Garage spaces:
- 2
Plan features & finishes
- Garage/Parking:
- Garage
- Interior Features:
- Loft
- Rooms:
- Guest SuiteGuest RoomDining Room
- Upgrade Options:
- Extra Bedroom

Get a consultation with our New Homes Expert
- See how your home builds wealth
- Plan your home-buying roadmap
- Discover hidden gems

Community details
Arbordale Reserve
by Eastwood Homes, Blythewood, SC
- 10 plans
- 2,160 - 3,738 sqft
View Arbordale Reserve details
Want to know more about what's around here?
The Cypress floor plan is part of Arbordale Reserve, a new home community by Eastwood Homes, located in Blythewood, SC. Visit the Arbordale Reserve community page for full neighborhood insights, including nearby schools, shopping, walk & bike-scores, commuting, air quality & natural hazards.

More floor plans in Arbordale Reserve

Considering this plan?
Our expert will guide your tour, in-person or virtual
Need more information?
Text or call (888) 545-5198
Financials
Let us help you find your dream home
How many bedrooms are you looking for?
Similar homes nearby
Recently added communities in this area
Nearby communities in Blythewood
New homes in nearby cities
More New Homes in Blythewood, SC
- Jome
- New homes search
- South Carolina
- Richland County
- Blythewood
- Arbordale Reserve
- Blythewood, SC 29016
































