








Book your tour. Save an average of $18,473. We'll handle the rest.
We collect exclusive builder offers, book your tours, and support you from start to housewarming.
- Confirmed tours
- Get matched & compare top deals
- Expert help, no pressure
- No added fees
Estimated value based on Jome data, T&C apply

















- 3 bd
- 2.5 ba
- 1,674 sqft
Nassau Cove plan in Arden Woods by Ryan Homes
Visit the community to experience this floor plan
Why tour with Jome?
- No pressure toursTour at your own pace with no sales pressure
- Expert guidanceGet insights from our home buying experts
- Exclusive accessSee homes and deals not available elsewhere
Jome is featured in
Plan description
May also be listed on the Ryan Homes website
Information last verified by Jome: Today at 1:32 AM (April 20, 2026)
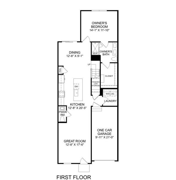
Plan details
- Name:
- Nassau Cove
- Property type:
- Floor plan
- Community:
- Arden Woods
- Builder:
- Ryan Homes
- Collection:
- Arden Woods Villas
- Size:
- 1,674 sqft
- Stories:
- 2
- Beds:
- 3
- Baths:
- 2
- Half baths:
- 1
- Garage spaces:
- 1
Plan features & finishes
- Garage/Parking:
- GarageAttached Garage
- Interior Features:
- Walk-In ClosetPantryStorage
- Laundry facilities:
- Utility/Laundry Room
- Rooms:
- AtticGreat RoomKitchenPowder RoomDining RoomOpen Concept FloorplanPrimary Bedroom Downstairs
- Upgrade Options:
- Covered Porch

Get a consultation with our New Homes Expert
- See how your home builds wealth
- Plan your home-buying roadmap
- Discover hidden gems
See the full plan layout
Download the floor plan PDF with room dimensions and home design details.

Instant download, no cost

Community details
Arden Woods
by Ryan Homes, Greenville, SC
- 2 plans
- 1,442 - 1,674 sqft
View Arden Woods details
Want to know more about what's around here?
The Nassau Cove floor plan is part of Arden Woods, a new home community by Ryan Homes, located in Greenville, SC. Visit the Arden Woods community page for full neighborhood insights, including nearby schools, shopping, walk & bike-scores, commuting, air quality & natural hazards.

Homes built from this plan
More floor plans in Arden Woods

Considering this plan?
Our expert will guide your tour, in-person or virtual
Need more information?
Text or call (888) 545-5198
Financials
Estimated monthly payment
Let us help you find your dream home
How many bedrooms are you looking for?
Similar homes nearby
Recently added communities in this area
Nearby communities in Greenville
New homes in nearby cities
More New Homes in Greenville, SC
- Jome
- New homes search
- South Carolina
- Greenville County
- Greenville
- Arden Woods
- Arden Woods Villas
- 100 Tassin St, Greenville, SC 29605

























