


























- 3 bd
- 2.5 ba
- 1,843 sqft
TA1800 plan in Morrow Brook by True Homes
New Homes for Sale Near 2332 E Main St, Albemarle, NC 28001
About this Plan
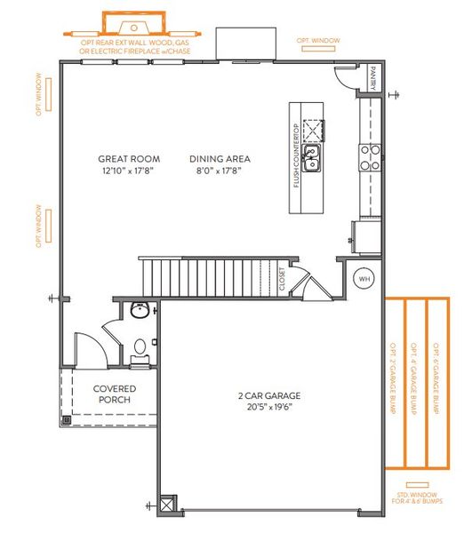
Welcome to the TA 1800, a dynamic and efficient layout offering 1,843 square feet of living space with 3 Bedrooms and 2.5 Bathrooms. Designed for those who value openness and light, this floorplan centers around a continuous Great Room and Dining Area that stretches nearly 36 feet in length, creating the ideal flow for entertaining and everyday living. The First Floor features a generous Covered Porch, a large 2-Car Garage, and options like a Screened Porch, Rear Wall Fireplace, and window enhancements to fill the space with natural light. The Kitchen includes a walk-in Pantry, flush countertop options, and practical storage throughout.
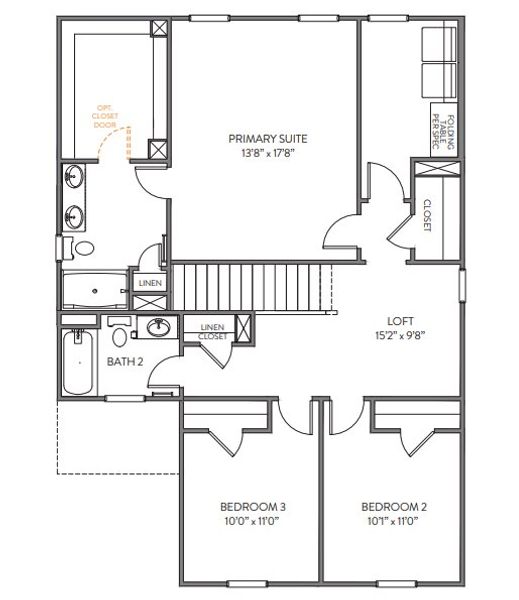
On the Second Floor, you’ll find a spacious Loft, ideal for a play area or home office, flanked by two Secondary Bedrooms and a full Bath. The luxurious Primary Suite includes a spacious Bath with multiple layout choices—such as a Luxury Shower, Garden Tub, or Shower/Tub combo—to suit your personal preferences.
With its balance of function and flexibility, the TA 1800 allows you to customize your ideal home environment, perfect for smaller or growing households.
May also be listed on the True Homes website
Information last verified by Jome: Saturday at 2:37 PM (July 26, 2025)
Plan details
- Name:
- TA1800
- Property status:
- Sold
- Size:
- 1,843 sqft
- Stories:
- 2
- Beds:
- 3
- Baths:
- 2.5
- Garage spaces:
- 2
Plan features & finishes
- Garage/Parking:
- GarageAttached Garage
- Interior Features:
- Walk-In ClosetFoyerPantryLoft
- Laundry facilities:
- Utility/Laundry Room
- Property amenities:
- Porch
- Rooms:
- KitchenPowder RoomDining RoomFamily RoomOpen Concept FloorplanPrimary Bedroom Upstairs
- Upgrade Options:
- Fireplace
See the full plan layout
Download the floor plan PDF with room dimensions and home design details.

Instant download, no cost

Community details
Morrow Brook
by True Homes, Albemarle, NC
- 8 homes
- 14 plans
- 1,680 - 3,992 sqft
View Morrow Brook details
Want to know more about what's around here?
The TA1800 floor plan is part of Morrow Brook, a new home community by True Homes, located in Albemarle, NC. Visit the Morrow Brook community page for full neighborhood insights, including nearby schools, shopping, walk & bike-scores, commuting, air quality & natural hazards.

Available homes in Morrow Brook
More floor plans in Morrow Brook
Financials
Nearby communities in Albemarle
Homes in Albemarle by True Homes
Recently added communities in this area
Other Builders in Albemarle, NC
Nearby sold homes
New homes in nearby cities
More New Homes in Albemarle, NC
- Jome
- New homes search
- North Carolina
- Charlotte Metropolitan Area
- Stanly County
- Albemarle
- Morrow Brook
- 2332 E Main St, Albemarle, NC 28001
















































































