



- 3 bd
- 2 ba
- 1,572 sqft
Durell plan in Morrow Brook by True Homes
New Homes for Sale Near 2332 E Main St, Albemarle, NC 28001
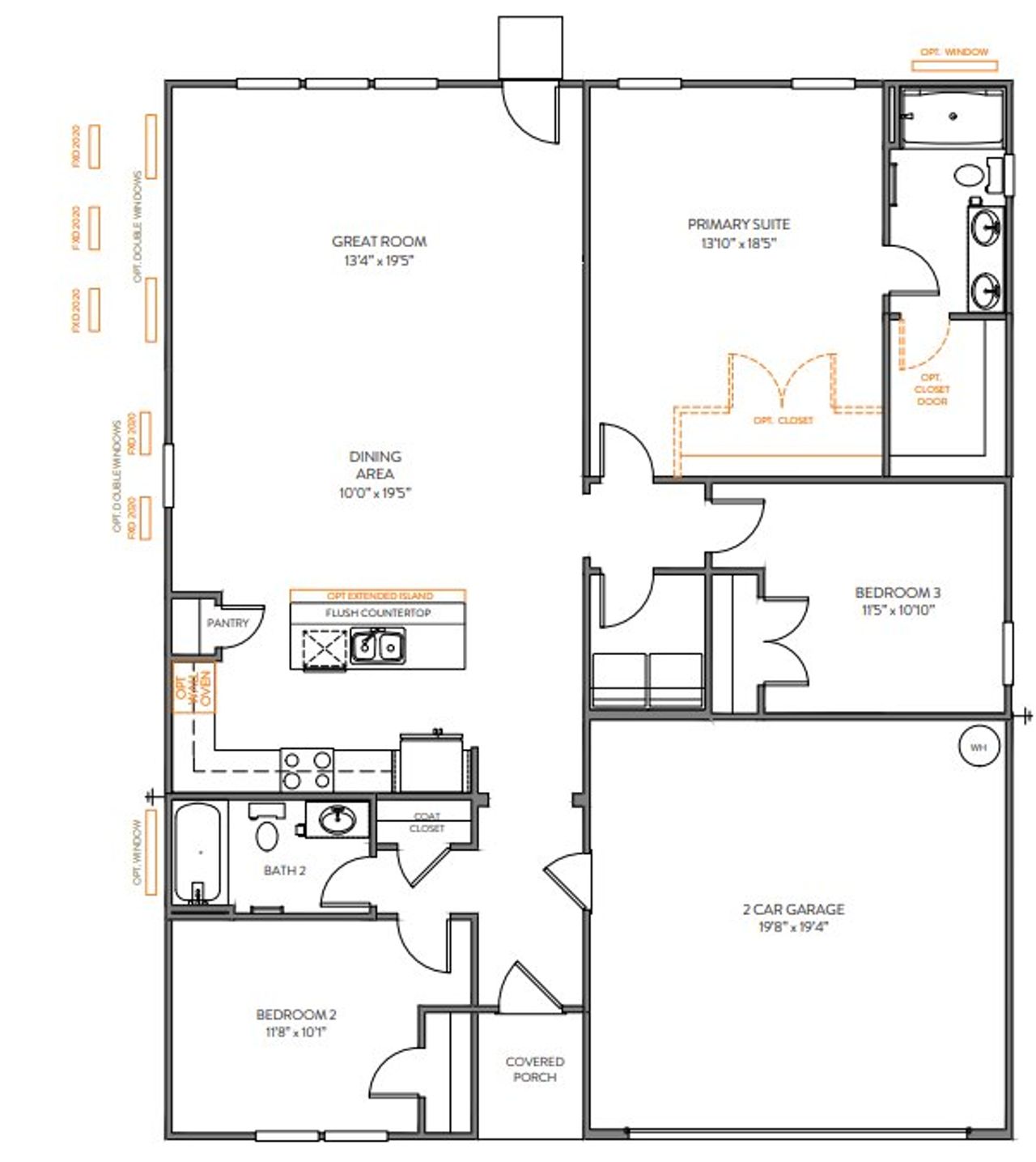
About this Plan
Discover the Durell, a versatile floorplan ranging in size from 1,572-2,320 square feet, offering 3-5 Bedrooms and 2-4 Bathrooms to accommodate diverse family needs. This floorplan provides ample space for comfortable living, catering to smaller or larger families alike. On the first floor, you'll find an Open floorplan perfect for modern living and entertaining, seamlessly connecting the Kitchen, Great Room, and Dining Area. The property also includes a convenient 2-car garage. The Durell's design is highly adaptable, with various customization options to align with your personal preferences. Create a home that suits your lifestyle and family dynamics, tailoring it with the features you desire, making the Durell your perfect space to call home.
May also be listed on the True Homes website
Information last verified by Jome: Wednesday at 2:35 PM (July 30, 2025)
Plan details
- Name:
- Durell
- Property status:
- Sold
- Size from:
- 1,572 sqft
- Size to:
- 2,320 sqft
- Stories:
- 1
- Beds from:
- 3
- Beds to:
- 5
- Baths from:
- 2
- Baths to:
- 4
- Garage spaces:
- 2
Plan features & finishes
- Garage/Parking:
- GarageAttached Garage
- Interior Features:
- Walk-In ClosetFoyerPantry
- Laundry facilities:
- Utility/Laundry Room
- Property amenities:
- Porch
- Rooms:
- Primary Bedroom On MainKitchenDining RoomFamily RoomOpen Concept FloorplanPrimary Bedroom Downstairs
- Upgrade Options:
- Bonus RoomOffice/StudyGarden TubSitting RoomScreened PorchCovered PorchDouble VanityShower
See the full plan layout
Download the floor plan PDF with room dimensions and home design details.

Instant download, no cost

Community details
Morrow Brook
by True Homes, Albemarle, NC
- 7 homes
- 14 plans
- 1,680 - 3,992 sqft
View Morrow Brook details
Want to know more about what's around here?
The Durell floor plan is part of Morrow Brook, a new home community by True Homes, located in Albemarle, NC. Visit the Morrow Brook community page for full neighborhood insights, including nearby schools, shopping, walk & bike-scores, commuting, air quality & natural hazards.

Available homes in Morrow Brook
More floor plans in Morrow Brook
Financials
Nearby communities in Albemarle
Homes in Albemarle by True Homes
Recently added communities in this area
Other Builders in Albemarle, NC
Nearby sold homes
New homes in nearby cities
More New Homes in Albemarle, NC
- Jome
- New homes search
- North Carolina
- Charlotte Metropolitan Area
- Stanly County
- Albemarle
- Morrow Brook
- 2332 E Main St, Albemarle, NC 28001
















































































