







Book your tour. Save an average of $18,473. We'll handle the rest.
We collect exclusive builder offers, book your tours, and support you from start to housewarming.
- Confirmed tours
- Get matched & compare top deals
- Expert help, no pressure
- No added fees
Estimated value based on Jome data, T&C apply












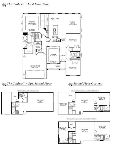
- 3 bd
- 2 ba
- 2,071 sqft
Caldwell plan in Chasewood by Eastwood Homes
Visit the community to experience this floor plan
Why tour with Jome?
- No pressure toursTour at your own pace with no sales pressure
- Expert guidanceGet insights from our home buying experts
- Exclusive accessSee homes and deals not available elsewhere
Jome is featured in
Plan description
May also be listed on the Eastwood Homes website
Information last verified by Jome: Today at 6:31 AM (April 14, 2026)
Book your tour. Save an average of $18,473. We'll handle the rest.
We collect exclusive builder offers, book your tours, and support you from start to housewarming.
- Confirmed tours
- Get matched & compare top deals
- Expert help, no pressure
- No added fees
Estimated value based on Jome data, T&C apply
Plan details
- Name:
- Caldwell
- Property type:
- Floor plan
- Community:
- Chasewood
- Builder:
- Eastwood Homes
- Size:
- 2,071 sqft
- Stories:
- 1
- Beds:
- 3
- Baths:
- 2
- Garage spaces:
- 2
Plan features & finishes
- Garage/Parking:
- GarageAttached Garage
- Interior Features:
- Walk-In ClosetFoyerPantry
- Laundry facilities:
- Utility/Laundry Room
- Property amenities:
- PoolPocket Office
- Rooms:
- Primary Bedroom On MainKitchenPowder RoomDining RoomFamily RoomLiving RoomPrimary Bedroom Downstairs
- Upgrade Options:
- Extra Bedroom

Get a consultation with our New Homes Expert
- See how your home builds wealth
- Plan your home-buying roadmap
- Discover hidden gems

Community details
Chasewood
by Eastwood Homes, Charlotte, NC
- 3 homes
- 10 plans
- 1,738 - 3,796 sqft
View Chasewood details
Want to know more about what's around here?
The Caldwell floor plan is part of Chasewood, a new home community by Eastwood Homes, located in Charlotte, NC. Visit the Chasewood community page for full neighborhood insights, including nearby schools, shopping, walk & bike-scores, commuting, air quality & natural hazards.

Homes built from this plan
Available homes in Chasewood
- Home at address 10818 Coble Rd, Mint Hill, NC 28227

Davidson
Savings$679,000
- 4 bd
- 3 ba
- 3,468 sqft
10818 Coble Rd, Mint Hill, NC 28227
- Home at address 10800 Coble Rd, Mint Hill, NC 28227

Charleston
Savings$711,400
- 5 bd
- 4 ba
- 3,796 sqft
10800 Coble Rd, Mint Hill, NC 28227
More floor plans in Chasewood

Considering this plan?
Our expert will guide your tour, in-person or virtual
Need more information?
Text or call (888) 545-5198
Financials
Estimated monthly payment
Let us help you find your dream home
How many bedrooms are you looking for?
Similar homes nearby
Recently added communities in this area
Nearby communities in Charlotte
New homes in nearby cities
More New Homes in Charlotte, NC
- Jome
- New homes search
- North Carolina
- Charlotte Metropolitan Area
- Mecklenburg County
- Charlotte
- Chasewood
- 10824 Coble Rd, Charlotte, NC 28227

































