














Book your tour. Save an average of $18,473. We'll handle the rest.
We collect exclusive builder offers, book your tours, and support you from start to housewarming.
- Confirmed tours
- Get matched & compare top deals
- Expert help, no pressure
- No added fees
Estimated value based on Jome data, T&C apply








































- 4 bd
- 3.5 ba
- 3,346 sqft
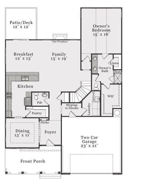
Clark plan in Holston by McKee Homes
Visit the community to experience this floor plan
Why tour with Jome?
- No pressure toursTour at your own pace with no sales pressure
- Expert guidanceGet insights from our home buying experts
- Exclusive accessSee homes and deals not available elsewhere
Jome is featured in
Plan description
May also be listed on the McKee Homes website
Information last verified by Jome: Monday at 2:34 PM (February 2, 2026)
Plan details
- Name:
- Clark
- Property status:
- Floor plan
- Size from:
- 3,346 sqft
- Size to:
- 3,707 sqft
- Stories:
- 2
- Beds from:
- 4
- Beds to:
- 5
- Baths from:
- 3
- Baths to:
- 4
- Half baths:
- 1
- Garage spaces:
- 2
Plan features & finishes
- Garage/Parking:
- GarageAttached Garage
- Interior Features:
- Walk-In ClosetFoyerPantry
- Laundry facilities:
- Utility/Laundry Room
- Property amenities:
- PatioPorch
- Rooms:
- Primary Bedroom On MainKitchenMedia RoomDining RoomFamily RoomBreakfast AreaOpen Concept FloorplanPrimary Bedroom Downstairs
- Upgrade Options:
- Sun RoomCovered PatioOptional Multi-Gen SuiteFireplace

Get a consultation with our New Homes Expert
- See how your home builds wealth
- Plan your home-buying roadmap
- Discover hidden gems
See the full plan layout
Download the floor plan PDF with room dimensions and home design details.

Instant download, no cost

Community details
Holston
by McKee Homes, Fuquay Varina, NC
- 7 homes
- 8 plans
- 1,502 - 3,346 sqft
View Holston details
Want to know more about what's around here?
The Clark floor plan is part of Holston, a new home community by McKee Homes, located in Fuquay Varina, NC. Visit the Holston community page for full neighborhood insights, including nearby schools, shopping, walk & bike-scores, commuting, air quality & natural hazards.

Homes built from this plan
Available homes in Holston
- Home at address 2341 Fleming Rd, Fuquay Varina, NC 27526

Nelson
$544,990
- 4 bd
- 2.5 ba
- 2,374 sqft
2341 Fleming Rd, Fuquay Varina, NC 27526
- Home at address 2340 Fleming Rd, Fuquay Varina, NC 27526

Brooks
$569,990
- 4 bd
- 3 ba
- 2,935 sqft
2340 Fleming Rd, Fuquay Varina, NC 27526
- Home at address 309 Brindle Dr, Fuquay Varina, NC 27526

Watauga
$574,000
- 4 bd
- 2.5 ba
- 2,756 sqft
309 Brindle Dr, Fuquay Varina, NC 27526
More floor plans in Holston

Considering this plan?
Our expert will guide your tour, in-person or virtual
Need more information?
Text or call (888) 488-9243
Financials
Estimated monthly payment
Let us help you find your dream home
How many bedrooms are you looking for?
Similar homes nearby
Recently added communities in this area
Nearby communities in Fuquay Varina
New homes in nearby cities
More New Homes in Fuquay Varina, NC
- Jome
- New homes search
- North Carolina
- Raleigh-Durham Area
- Wake County
- Fuquay Varina
- Holston
- 1319 Richfield Oaks Dr, Fuquay Varina, NC 27526






























