



Book your tour. Save an average of $18,473. We'll handle the rest.
- Confirmed tours
- Get matched & compare top deals
- Expert help, no pressure
- No added fees
Estimated value based on Jome data, T&C apply
- 3 bd
- 2.5 ba
- 2,012 sqft
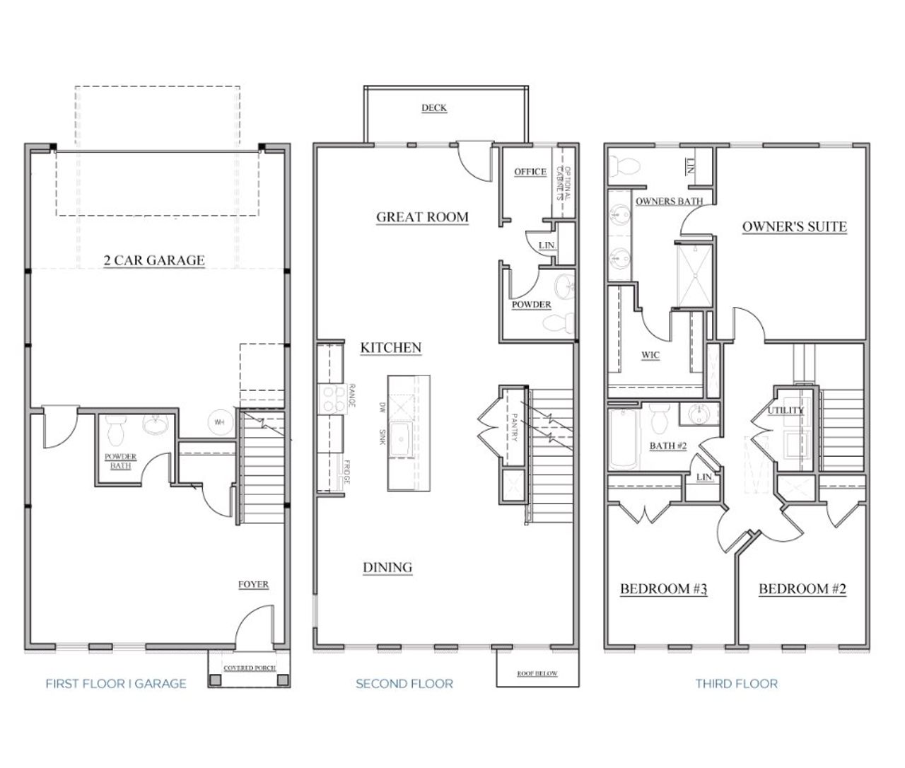
Anchor Three-Story plan in Vanguard at Vermillion by Brookline Homes
Visit the community to experience this floor plan
Why tour with Jome?
- No pressure toursTour at your own pace with no sales pressure
- Expert guidanceGet insights from our home buying experts
- Exclusive accessSee homes and deals not available elsewhere
Jome is featured in
Plan description
May also be listed on the Brookline Homes website
Information last verified by Jome: Tuesday at 8:30 AM (December 30, 2025)
Plan details
- Name:
- Anchor Three-Story
- Property status:
- Floor plan
- Size:
- 2,012 sqft
- Stories:
- 3+
- Beds:
- 3
- Baths:
- 2.5
- Garage spaces:
- 2
Plan features & finishes
- Garage/Parking:
- GarageAttached Garage
- Interior Features:
- Walk-In ClosetFoyerPantryLoft
- Laundry facilities:
- Utility/Laundry Room
- Property amenities:
- DeckPorch
- Rooms:
- Flex RoomGreat RoomKitchenEntry HallPowder RoomOffice/StudyDining RoomFamily RoomOpen Concept FloorplanPrimary Bedroom Upstairs

Get a consultation with our New Homes Expert
- See how your home builds wealth
- Plan your home-buying roadmap
- Discover hidden gems
See the full plan layout
Download the floor plan PDF with room dimensions and home design details.

Instant download, no cost

Community details
Vanguard at Vermillion
by Brookline Homes, Huntersville, NC
- 2 homes
- 7 plans
- 1,763 - 2,035 sqft
View Vanguard at Vermillion details
Want to know more about what's around here?
The Anchor Three-Story floor plan is part of Vanguard at Vermillion, a new home community by Brookline Homes, located in Huntersville, NC. Visit the Vanguard at Vermillion community page for full neighborhood insights, including nearby schools, shopping, walk & bike-scores, commuting, air quality & natural hazards.

Available homes in Vanguard at Vermillion
- 11017 Warfield Ave, Unit 4, Huntersville, NC 28078

Home
$427,520
- 3 bd
- 2.5 ba
- 2,035 sqft
11017 Warfield Ave, Unit 4, Huntersville, NC 28078
- 11021 Warfield Ave, Unit 03, Huntersville, NC 28078

Home
$429,200
- 3 bd
- 2.5 ba
- 2,012 sqft
11021 Warfield Ave, Unit 03, Huntersville, NC 28078
More floor plans in Vanguard at Vermillion

Considering this plan?
Our expert will guide your tour, in-person or virtual
Need more information?
Text or call (888) 486-2818
Financials
Let us help you find your dream home
How many bedrooms are you looking for?































