









Book your tour. Save an average of $18,473. We'll handle the rest.
We collect exclusive builder offers, book your tours, and support you from start to housewarming.
- Confirmed tours
- Get matched & compare top deals
- Expert help, no pressure
- No added fees
Estimated value based on Jome data, T&C apply






- 3 bd
- 2.5 ba
- 2,611 sqft
Edgefield plan in The Enclave at Laurelbrook by Eastwood Homes
Visit the community to experience this floor plan
Why tour with Jome?
- No pressure toursTour at your own pace with no sales pressure
- Expert guidanceGet insights from our home buying experts
- Exclusive accessSee homes and deals not available elsewhere
Jome is featured in
Plan description
May also be listed on the Eastwood Homes website
Information last verified by Jome: Today at 6:28 AM (May 20, 2026)
Book your tour. Save an average of $18,473. We'll handle the rest.
We collect exclusive builder offers, book your tours, and support you from start to housewarming.
- Confirmed tours
- Get matched & compare top deals
- Expert help, no pressure
- No added fees
Estimated value based on Jome data, T&C apply
Plan details
- Name:
- Edgefield
- Property type:
- Floor plan
- Community:
- The Enclave at Laurelbrook
- Builder:
- Eastwood Homes
- Size:
- 2,611 sqft
- Stories:
- 1
- Beds:
- 3
- Baths:
- 2
- Half baths:
- 1
- Garage spaces:
- 2
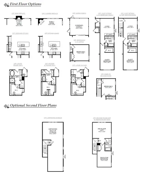
Plan features & finishes
- Garage/Parking:
- GarageAttached Garage
- Interior Features:
- Walk-In ClosetFoyerPantry
- Laundry facilities:
- Utility/Laundry Room
- Property amenities:
- BasementPatioPorch
- Rooms:
- Primary Bedroom On MainKitchenPowder RoomOffice/StudyDining RoomFamily RoomBreakfast AreaOpen Concept FloorplanPrimary Bedroom Downstairs
- Upgrade Options:
- Extra Bedroom

Get a consultation with our New Homes Expert
- See how your home builds wealth
- Plan your home-buying roadmap
- Discover hidden gems

Community details
The Enclave at Laurelbrook at Laurelbrook
by Eastwood Homes, Sherrills Ford, NC
- 3 homes
- 11 plans
- 1,738 - 3,688 sqft
View The Enclave at Laurelbrook details
Want to know more about what's around here?
The Edgefield floor plan is part of The Enclave at Laurelbrook, a new home community by Eastwood Homes, located in Catawba, NC. Visit the The Enclave at Laurelbrook community page for full neighborhood insights, including nearby schools, shopping, walk & bike-scores, commuting, air quality & natural hazards.

Homes built from this plan
Available homes in The Enclave at Laurelbrook
- Home at address 8684 Acadia Pkwy, Sherrills Ford, NC 28673

Wescott
$548,900
- 3 bd
- 3 ba
- 2,678 sqft
8684 Acadia Pkwy, Sherrills Ford, NC 28673
- Home at address 2229 Tabor Rd, Sherrills Ford, NC 28673

Davidson
$569,900
- 5 bd
- 3 ba
- 3,098 sqft
2229 Tabor Rd, Sherrills Ford, NC 28673
- Home at address 2215 Tabor Rd, Sherrills Ford, NC 28673

Colfax
$585,900
- 5 bd
- 4.5 ba
- 3,688 sqft
2215 Tabor Rd, Sherrills Ford, NC 28673
More floor plans in The Enclave at Laurelbrook

Considering this plan?
Our expert will guide your tour, in-person or virtual
Need more information?
Text or call (888) 545-5198
Financials
Estimated monthly payment
Let us help you find your dream home
How many bedrooms are you looking for?
Similar homes nearby
Recently added communities in this area
Nearby communities in Catawba
New homes in nearby cities
More New Homes in Catawba, NC
- Jome
- New homes search
- North Carolina
- Charlotte Metropolitan Area
- Catawba County
- Catawba
- The Enclave at Laurelbrook
- 8784 Acadia Pkwy, Catawba, NC 28609


































