



Book your tour. Save an average of $18,473. We'll handle the rest.
We collect exclusive builder offers, book your tours, and support you from start to housewarming.
- Confirmed tours
- Get matched & compare top deals
- Expert help, no pressure
- No added fees
Estimated value based on Jome data, T&C apply


- 3 bd
- 2.5 ba
- 1,888 sqft
Kenna plan in Weatherfield by Taylor Morrison
Visit the community to experience this floor plan
Why tour with Jome?
- No pressure toursTour at your own pace with no sales pressure
- Expert guidanceGet insights from our home buying experts
- Exclusive accessSee homes and deals not available elsewhere
Jome is featured in
Plan description
May also be listed on the Taylor Morrison website
Information last verified by Jome: Today at 12:34 AM (April 22, 2026)
Plan details
- Name:
- Kenna
- Property type:
- Floor plan
- Community:
- Weatherfield
- Builder:
- Taylor Morrison
- Collection:
- Weatherfield Townhomes
- Size:
- 1,888 sqft
- Stories:
- 2
- Beds:
- 3
- Baths:
- 2.5
- Garage spaces:
- 2
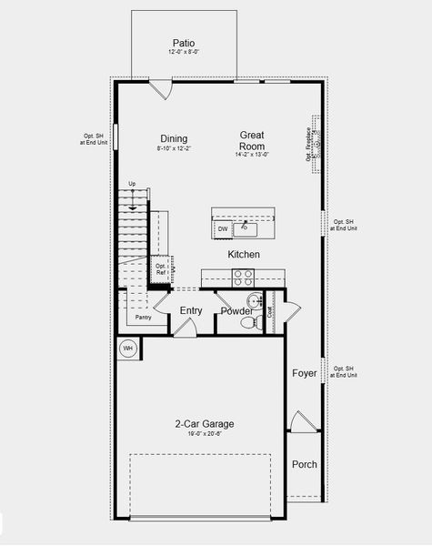
Plan features & finishes
- Garage/Parking:
- GarageAttached Garage
- Interior Features:
- Walk-In ClosetFoyerPantryLoft
- Laundry facilities:
- Utility/Laundry Room
- Property amenities:
- PatioPorch
- Rooms:
- Great RoomKitchenPowder RoomDining RoomPrimary Bedroom Upstairs
- Upgrade Options:
- Extra BedroomFireplace

Get a consultation with our New Homes Expert
- See how your home builds wealth
- Plan your home-buying roadmap
- Discover hidden gems
See the full plan layout
Download the floor plan PDF with room dimensions and home design details.

Instant download, no cost

Community details
Weatherfield
by Taylor Morrison, Buford, GA
- 8 plans
- 1,655 - 3,319 sqft
View Weatherfield details
Want to know more about what's around here?
The Kenna floor plan is part of Weatherfield, a new home community by Taylor Morrison, located in Buford, GA. Visit the Weatherfield community page for full neighborhood insights, including nearby schools, shopping, walk & bike-scores, commuting, air quality & natural hazards.

More floor plans in Weatherfield

Considering this plan?
Our expert will guide your tour, in-person or virtual
Need more information?
Text or call (888) 545-5198
Financials
Let us help you find your dream home
How many bedrooms are you looking for?


























