








Book your tour. Save an average of $18,473. We'll handle the rest.
We collect exclusive builder offers, book your tours, and support you from start to housewarming.
- Confirmed tours
- Get matched & compare top deals
- Expert help, no pressure
- No added fees
Estimated value based on Jome data, T&C apply











- 3 bd
- 2 ba
- 1,824 sqft
The Newcomb plan in Croftside Single Family Homes by Stanley Martin Homes
Visit the community to experience this floor plan
Why tour with Jome?
- No pressure toursTour at your own pace with no sales pressure
- Expert guidanceGet insights from our home buying experts
- Exclusive accessSee homes and deals not available elsewhere
Jome is featured in
Plan description
May also be listed on the Stanley Martin Homes website
Information last verified by Jome: Today at 9:16 AM (April 22, 2026)
Plan details
- Name:
- The Newcomb
- Property type:
- Floor plan
- Community:
- Croftside Single Family Homes
- Builder:
- Stanley Martin Homes
- Size:
- 1,824 sqft
- Stories:
- 2
- Beds:
- 3
- Baths:
- 2
- Half baths:
- 1
- Garage spaces:
- 2
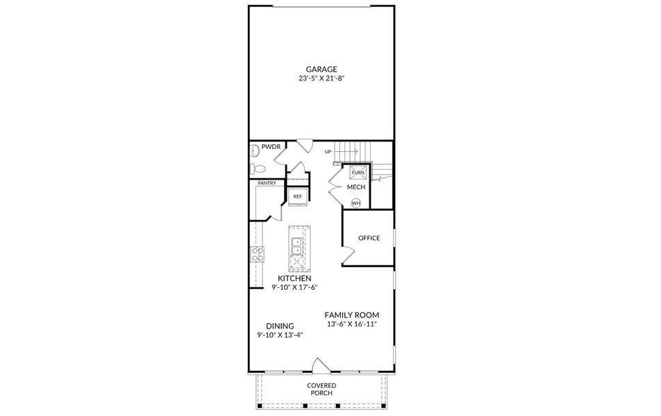
Plan features & finishes
- Garage/Parking:
- GarageAttached Garage
- Interior Features:
- Walk-In ClosetFoyerPantryLoftDouble Vanity
- Kitchen:
- Kitchen Island
- Laundry facilities:
- Utility/Laundry Room
- Property amenities:
- Covered PatioCovered PorchTech SpacePorch
- Rooms:
- Flex RoomKitchenPowder RoomOffice/StudyDining RoomFamily RoomOpen Concept FloorplanPrimary Bedroom Upstairs

Get a consultation with our New Homes Expert
- See how your home builds wealth
- Plan your home-buying roadmap
- Discover hidden gems
See the full plan layout
Download the floor plan PDF with room dimensions and home design details.

Instant download, no cost

Community details
Croftside Single Family Homes
by Stanley Martin Homes, Powder Springs, GA
- 5 homes
- 7 plans
- 1,824 - 3,241 sqft
View Croftside Single Family Homes details
Want to know more about what's around here?
The The Newcomb floor plan is part of Croftside Single Family Homes, a new home community by Stanley Martin Homes, located in Powder Springs, GA. Visit the Croftside Single Family Homes community page for full neighborhood insights, including nearby schools, shopping, walk & bike-scores, commuting, air quality & natural hazards.

Homes built from this plan
Available homes in Croftside Single Family Homes
- Home at address 3280 Croftside Cmns, Powder Springs, GA 30127

The Yarmouth
$449,990
- 4 bd
- 2.5 ba
- 2,505 sqft
3280 Croftside Cmns, Powder Springs, GA 30127
- Home at address 3210 Croftside Cmns, Powder Springs, GA 30127

The Maisie II
$496,940
- 5 bd
- 3 ba
- 2,729 sqft
3210 Croftside Cmns, Powder Springs, GA 30127
- Home at address 3300 Croftside Cmns, Powder Springs, GA 30127

The Mathis
$529,990
- 5 bd
- 3.5 ba
- 3,241 sqft
3300 Croftside Cmns, Powder Springs, GA 30127
- Home at address 3230 Croftside Cmns, Powder Springs, GA 30127

The Mathis
$536,890
- 5 bd
- 3.5 ba
- 3,241 sqft
3230 Croftside Cmns, Powder Springs, GA 30127
More floor plans in Croftside Single Family Homes

Considering this plan?
Our expert will guide your tour, in-person or virtual
Need more information?
Text or call (888) 545-5198
Financials
Let us help you find your dream home
How many bedrooms are you looking for?
Similar homes nearby
Recently added communities in this area
Nearby communities in Powder Springs
New homes in nearby cities
More New Homes in Powder Springs, GA
- Jome
- New homes search
- Georgia
- Atlanta Metropolitan Area
- Cobb County
- Powder Springs
- Croftside Single Family Homes
- 2820 Macedonia Rd, Powder Springs, GA 30127
































