








Book your tour. Save an average of $18,473. We'll handle the rest.
We collect exclusive builder offers, book your tours, and support you from start to housewarming.
- Confirmed tours
- Get matched & compare top deals
- Expert help, no pressure
- No added fees
Estimated value based on Jome data, T&C apply






- 4 bd
- 2.5 ba
- 1,817 sqft
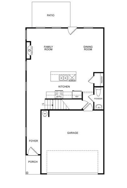
The Lenox II plan in Creekside Village by Direct Residential Communities
Visit the community to experience this floor plan
Why tour with Jome?
- No pressure toursTour at your own pace with no sales pressure
- Expert guidanceGet insights from our home buying experts
- Exclusive accessSee homes and deals not available elsewhere
Jome is featured in
Plan description
May also be listed on the Direct Residential Communities website
Information last verified by Jome: Tuesday at 1:48 PM (March 17, 2026)
Plan details
- Name:
- The Lenox II
- Property type:
- Floor plan
- Community:
- Creekside Village
- Builder:
- Direct Residential Communities
- Size:
- 1,817 sqft
- Stories:
- 2
- Beds:
- 4
- Baths:
- 2.5
- Garage spaces:
- 2
Plan features & finishes
- Garage/Parking:
- GarageAttached Garage
- Interior Features:
- Walk-In Closet
- Laundry facilities:
- Utility/Laundry Room
- Property amenities:
- PatioFireplacePorch
- Rooms:
- Powder RoomDining RoomFamily RoomPrimary Bedroom Upstairs
- Upgrade Options:
- Sitting RoomFireplace

Get a consultation with our New Homes Expert
- See how your home builds wealth
- Plan your home-buying roadmap
- Discover hidden gems
See the full plan layout
Download the floor plan PDF with room dimensions and home design details.

Instant download, no cost

Community details
Creekside Village
by Direct Residential Communities, Lithonia, GA
- 6 homes
- 2 plans
- 1,817 - 1,817 sqft
View Creekside Village details
Want to know more about what's around here?
The The Lenox II floor plan is part of Creekside Village, a new home community by Direct Residential Communities, located in Lithonia, GA. Visit the Creekside Village community page for full neighborhood insights, including nearby schools, shopping, walk & bike-scores, commuting, air quality & natural hazards.

Homes built from this plan
Available homes in Creekside Village
- Home at address 1711 Hillview Ln, Lithonia, GA 30058

The Lenox II
Savings$316,900
- 4 bd
- 2.5 ba
- 1,817 sqft
1711 Hillview Ln, Lithonia, GA 30058
- Home at address 1713 Hillview Ln, Lithonia, GA 30058

The Lenox II
Savings$316,900
- 4 bd
- 2.5 ba
- 1,817 sqft
1713 Hillview Ln, Lithonia, GA 30058
- Home at address 1709 Hillview Ln, Lithonia, GA 30058

The Lenox II
Savings$328,900
- 4 bd
- 2.5 ba
- 1,817 sqft
1709 Hillview Ln, Lithonia, GA 30058
More floor plans in Creekside Village

Considering this plan?
Our expert will guide your tour, in-person or virtual
Need more information?
Text or call (888) 545-5198
Financials
Let us help you find your dream home
How many bedrooms are you looking for?
Similar homes nearby
Recently added communities in this area
Nearby communities in Lithonia
New homes in nearby cities
More New Homes in Lithonia, GA
- Jome
- New homes search
- Georgia
- Atlanta Metropolitan Area
- Lithonia
- Creekside Village
- 7480 Rock Chapel Rd, Lithonia, GA 30058





























