




Book your tour. Save an average of $18,473. We'll handle the rest.
- Confirmed tours
- Get matched & compare top deals
- Expert help, no pressure
- No added fees
Estimated value based on Jome data, T&C apply
- 5 bd
- 5.5 ba
- 4,035 sqft
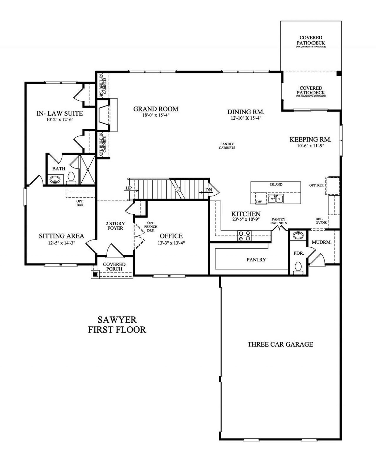
Sawyer plan in White Post on Lake Lanier by Peachtree Residential
Visit the community to experience this floor plan
Why tour with Jome?
- No pressure toursTour at your own pace with no sales pressure
- Expert guidanceGet insights from our home buying experts
- Exclusive accessSee homes and deals not available elsewhere
Jome is featured in
Plan description
May also be listed on the Peachtree Residential website
Information last verified by Jome: Tuesday at 8:42 AM (December 16, 2025)
Plan highlights
Plan details
- Name:
- Sawyer
- Property status:
- Floor plan
- Size:
- 4,035 sqft
- Stories:
- 2
- Beds:
- 5
- Baths:
- 5
- Half baths:
- 1
- Garage spaces:
- 3
Plan features & finishes
- Garage/Parking:
- GarageAttached Garage
- Interior Features:
- Walk-In ClosetFoyerPantry
- Laundry facilities:
- Laundry Facilities On Upper LevelUtility/Laundry Room
- Property amenities:
- Covered PatioCovered Porch
- Rooms:
- Flex RoomGreat RoomSitting AreaKitchenPowder RoomOffice/StudyMudroomDining RoomOpen Concept FloorplanPrimary Bedroom Upstairs
- Upgrade Options:
- Tray CeilingLaundry SinkFrench Door

Get a consultation with our New Homes Expert
- See how your home builds wealth
- Plan your home-buying roadmap
- Discover hidden gems
See the full plan layout
Download the floor plan PDF with room dimensions and home design details.

Instant download, no cost

Community details
White Post on Lake Lanier
by Peachtree Residential, Gainesville, GA
- 4 homes
- 6 plans
- 3,054 - 4,269 sqft
View White Post on Lake Lanier details
Want to know more about what's around here?
The Sawyer floor plan is part of White Post on Lake Lanier, a new home community by Peachtree Residential, located in Gainesville, GA. Visit the White Post on Lake Lanier community page for full neighborhood insights, including nearby schools, shopping, walk & bike-scores, commuting, air quality & natural hazards.

Available homes in White Post on Lake Lanier
More floor plans in White Post on Lake Lanier

Considering this plan?
Our expert will guide your tour, in-person or virtual
Need more information?
Text or call (888) 486-2818
Financials
Estimated monthly payment
Let us help you find your dream home
How many bedrooms are you looking for?





























