








Book your tour. Save an average of $18,473. We'll handle the rest.
We collect exclusive builder offers, book your tours, and support you from start to housewarming.
- Confirmed tours
- Get matched & compare top deals
- Expert help, no pressure
- No added fees
Estimated value based on Jome data, T&C apply












































- 5 bd
- 3 ba
- 2,350 sqft
Jodeco 2 Story Bay - Single Family Homes plan in Jones Crossing by Dream Finders Homes
Visit the community to experience this floor plan
Why tour with Jome?
- No pressure toursTour at your own pace with no sales pressure
- Expert guidanceGet insights from our home buying experts
- Exclusive accessSee homes and deals not available elsewhere
Jome is featured in
Plan description
May also be listed on the Dream Finders Homes website
Information last verified by Jome: Today at 5:20 AM (April 1, 2026)
Plan details
- Name:
- Jodeco 2 Story Bay - Single Family Homes
- Property type:
- Floor plan
- Community:
- Jones Crossing
- Builder:
- Dream Finders Homes
- Size:
- 2,350 sqft
- Stories:
- 2
- Beds:
- 5
- Baths:
- 3
- Garage spaces:
- 2
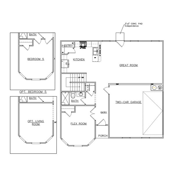
Plan features & finishes
- Garage/Parking:
- GarageAttached Garage
- Interior Features:
- Walk-In ClosetPantry
- Laundry facilities:
- Utility/Laundry Room
- Property amenities:
- Porch
- Rooms:
- Flex RoomGreat RoomKitchenOpen Concept FloorplanPrimary Bedroom Upstairs
- Upgrade Options:
- Gourmet KitchenLoft

Get a consultation with our New Homes Expert
- See how your home builds wealth
- Plan your home-buying roadmap
- Discover hidden gems
See the full plan layout
Download the floor plan PDF with room dimensions and home design details.

Instant download, no cost

Community details
Jones Crossing
by Dream Finders Homes, Hogansville, GA
- 10 homes
- 11 plans
- 1,450 - 2,350 sqft
View Jones Crossing details
Want to know more about what's around here?
The Jodeco 2 Story Bay - Single Family Homes floor plan is part of Jones Crossing, a new home community by Dream Finders Homes, located in Hogansville, GA. Visit the Jones Crossing community page for full neighborhood insights, including nearby schools, shopping, walk & bike-scores, commuting, air quality & natural hazards.

Available homes in Jones Crossing
- Home at address 129 Percheron Rd, Hogansville, GA 30230

Jodeco Front Porch
$324,990
- 4 bd
- 3 ba
- 2,316 sqft
129 Percheron Rd, Hogansville, GA 30230
- Home at address 712 Lipizzan Trce, Hogansville, GA 30230

Tucker
$339,990
- 4 bd
- 2.5 ba
- 2,300 sqft
712 Lipizzan Trce, Hogansville, GA 30230
- Home at address 718 Lipizzan Trce, Hogansville, GA 30230

Tucker
$343,490
- 4 bd
- 2.5 ba
- 2,300 sqft
718 Lipizzan Trce, Hogansville, GA 30230
- Home at address 704 Lipizzan Trce, Hogansville, GA 30230

Tucker
$343,490
- 4 bd
- 2.5 ba
- 2,300 sqft
704 Lipizzan Trce, Hogansville, GA 30230
- Home at address 716 Lipizzan Trce, Hogansville, GA 30230

Maple
$347,865
- 4 bd
- 3.5 ba
- 2,345 sqft
716 Lipizzan Trce, Hogansville, GA 30230
- Home at address 708 Lipizzan Trce, Hogansville, GA 30230

Maple
$347,865
- 4 bd
- 3.5 ba
- 2,345 sqft
708 Lipizzan Trce, Hogansville, GA 30230
More floor plans in Jones Crossing
- View details for Jodeco Front Porch - Single Family Homes

Jodeco Front Porch - Single Family Homes
$330,490+- 5 bd
- 3 ba
- 2,315 sqft

Considering this plan?
Our expert will guide your tour, in-person or virtual
Need more information?
Text or call (888) 545-5198
Financials
Estimated monthly payment
Let us help you find your dream home
How many bedrooms are you looking for?
Similar homes nearby
Recently added communities in this area
Nearby communities in Hogansville
New homes in nearby cities
More New Homes in Hogansville, GA
- Jome
- New homes search
- Georgia
- Troup County
- Hogansville
- Jones Crossing
- 201 Friesian Wy, Hogansville, GA 30230



















