









Book your tour. Save an average of $18,473. We'll handle the rest.
We collect exclusive builder offers, book your tours, and support you from start to housewarming.
- Confirmed tours
- Get matched & compare top deals
- Expert help, no pressure
- No added fees
Estimated value based on Jome data, T&C apply
- 3 bd
- 2.5 ba
- 2,093 sqft
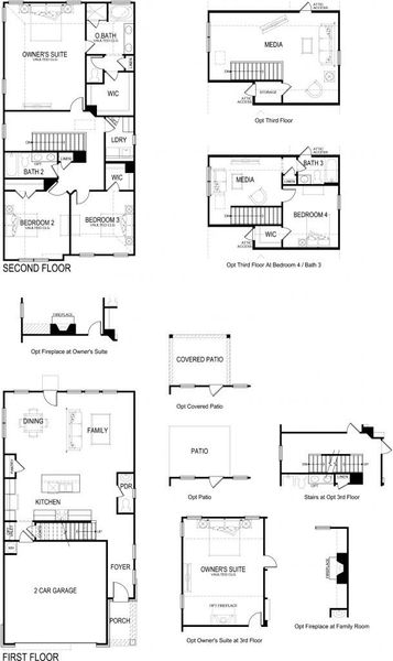
Waverly plan in Walden Park - The Retreat by Rockhaven Homes
Visit the community to experience this floor plan
Why tour with Jome?
- No pressure toursTour at your own pace with no sales pressure
- Expert guidanceGet insights from our home buying experts
- Exclusive accessSee homes and deals not available elsewhere
Jome is featured in
Plan description
May also be listed on the Rockhaven Homes website
Information last verified by Jome: Friday at 10:05 AM (January 30, 2026)
Plan details
- Name:
- Waverly
- Property status:
- Floor plan
- Size:
- 2,093 sqft
- Stories:
- 2
- Beds:
- 3
- Baths:
- 2
- Half baths:
- 1
- Garage spaces:
- 2
Plan features & finishes
- Garage/Parking:
- GarageAttached Garage
- Interior Features:
- Walk-In ClosetFoyerPantry
- Laundry facilities:
- Utility/Laundry Room
- Property amenities:
- Porch
- Rooms:
- KitchenPowder RoomDining RoomFamily RoomPrimary Bedroom Upstairs
- Upgrade Options:
- Covered PatioPatioMedia RoomFireplace

Get a consultation with our New Homes Expert
- See how your home builds wealth
- Plan your home-buying roadmap
- Discover hidden gems
See the full plan layout
Download the floor plan PDF with room dimensions and home design details.

Instant download, no cost

Community details
Walden Park - The Retreat
by Rockhaven Homes, Jonesboro, GA
- 8 homes
- 4 plans
- 1,677 - 2,093 sqft
View Walden Park - The Retreat details
Want to know more about what's around here?
The Waverly floor plan is part of Walden Park - The Retreat, a new home community by Rockhaven Homes, located in Jonesboro, GA. Visit the Walden Park - The Retreat community page for full neighborhood insights, including nearby schools, shopping, walk & bike-scores, commuting, air quality & natural hazards.

Homes built from this plan
Available homes in Walden Park - The Retreat
- Home at address 1256 Meadowbrook Dr, Jonesboro, GA 30238

Charleston
$314,990
- 3 bd
- 2.5 ba
- 1,677 sqft
1256 Meadowbrook Dr, Jonesboro, GA 30238
- Home at address 1290 Harmony Ridge Ct, Lithonia, GA 30238

Charleston
$316,990
- 3 bd
- 2.5 ba
1290 Harmony Ridge Ct, Lithonia, GA 30238
- Home at address 1264 Meadowbrook Dr, Jonesboro, GA 30238

Charleston
$318,990
- 3 bd
- 2.5 ba
- 1,677 sqft
1264 Meadowbrook Dr, Jonesboro, GA 30238
- Home at address 1252 Riverstone Rd, Jonesboro, GA 30238

Charleston
$324,990
- 3 bd
- 2.5 ba
- 1,677 sqft
1252 Riverstone Rd, Jonesboro, GA 30238
- Home at address 1253 Meadowbrook Dr, Jonesboro, GA 30238

Home
$333,990
- 3 bd
- 2.5 ba
1253 Meadowbrook Dr, Jonesboro, GA 30238
- Home at address 1260 Riverstone Rd, Jonesboro, GA 30238

Brixton
$348,990
- 3 bd
- 2.5 ba
- 1,991 sqft
1260 Riverstone Rd, Jonesboro, GA 30238
More floor plans in Walden Park - The Retreat

Considering this plan?
Our expert will guide your tour, in-person or virtual
Need more information?
Text or call (888) 486-2818
Financials
Let us help you find your dream home
How many bedrooms are you looking for?






























