



Book your tour. Save an average of $18,473. We'll handle the rest.
We collect exclusive builder offers, book your tours, and support you from start to housewarming.
- Confirmed tours
- Get matched & compare top deals
- Expert help, no pressure
- No added fees
Estimated value based on Jome data, T&C apply

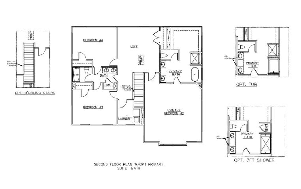
- 4 bd
- 3.5 ba
- 2,860 sqft
Mira II - Single Family Homes plan in The Woodlands Preserve by Dream Finders Homes
Visit the community to experience this floor plan
Why tour with Jome?
- No pressure toursTour at your own pace with no sales pressure
- Expert guidanceGet insights from our home buying experts
- Exclusive accessSee homes and deals not available elsewhere
Jome is featured in
Plan description
May also be listed on the Dream Finders Homes website
Information last verified by Jome: Today at 5:06 AM (April 21, 2026)
Plan details
- Name:
- Mira II - Single Family Homes
- Property type:
- Floor plan
- Community:
- The Woodlands Preserve
- Builder:
- Dream Finders Homes
- Size:
- 2,860 sqft
- Stories:
- 2
- Beds:
- 4
- Baths:
- 3
- Half baths:
- 1
- Garage spaces:
- 2
Plan features & finishes
- Garage/Parking:
- GarageAttached Garage
- Interior Features:
- Walk-In ClosetFoyerPantryLoft
- Laundry facilities:
- Utility/Laundry Room
- Property amenities:
- Porch
- Rooms:
- Primary Bedroom On MainKitchenPowder RoomDining RoomFamily RoomOpen Concept FloorplanPrimary Bedroom DownstairsPrimary Bedroom Upstairs
- Upgrade Options:
- Office/Study

Get a consultation with our New Homes Expert
- See how your home builds wealth
- Plan your home-buying roadmap
- Discover hidden gems
See the full plan layout
Download the floor plan PDF with room dimensions and home design details.

Instant download, no cost

Community details
The Woodlands Preserve
by Dream Finders Homes, Jackson, GA
- 4 homes
- 8 plans
- 2,000 - 3,300 sqft
View The Woodlands Preserve details
Want to know more about what's around here?
The Mira II - Single Family Homes floor plan is part of The Woodlands Preserve, a new home community by Dream Finders Homes, located in Jackson, GA. Visit the The Woodlands Preserve community page for full neighborhood insights, including nearby schools, shopping, walk & bike-scores, commuting, air quality & natural hazards.

Available homes in The Woodlands Preserve
- Home at address 136 Post Oak Dr, Jackson, GA 30233

Adrian
Savings$409,990
- 4 bd
- 3 ba
- 2,550 sqft
136 Post Oak Dr, Jackson, GA 30233
- Home at address 138 Post Oak Dr, Jackson, GA 30233

Harding
Savings$418,290
- 4 bd
- 3 ba
- 2,700 sqft
138 Post Oak Dr, Jackson, GA 30233
- Home at address 140 Post Oak Dr, Jackson, GA 30233

Hemingway
Savings$422,290
- 4 bd
- 3 ba
- 2,500 sqft
140 Post Oak Dr, Jackson, GA 30233
- Home at address 304 Hudson Ct, Jackson, GA 30233

Harding
Savings$427,435
- 4 bd
- 3 ba
- 2,700 sqft
304 Hudson Ct, Jackson, GA 30233
More floor plans in The Woodlands Preserve
- View details for Shiloh - Single Family Homes

Shiloh - Single Family Homes
Savings$416,990+- 4 bd
- 3 ba
- 2,000 sqft
- View details for Hemingway - Single Family Homes

Hemingway - Single Family Homes
Savings$429,990+- 4 bd
- 3 ba
- 2,500 sqft

Considering this plan?
Our expert will guide your tour, in-person or virtual
Need more information?
Text or call (888) 545-5198
Financials
Estimated monthly payment
Let us help you find your dream home
How many bedrooms are you looking for?
Similar homes nearby
Recently added communities in this area
Nearby communities in Jackson
New homes in nearby cities
More New Homes in Jackson, GA
- Jome
- New homes search
- Georgia
- Atlanta Metropolitan Area
- Butts County
- Jackson
- The Woodlands Preserve
- 183 Woodlands Dr, Jackson, GA 30233































